8.2
Смотреть все фото
БЕЗ КОМИССИИ ID: 1380493 Рейтинг8.7 КлассА

Москва, Космодамианская набережная, 52 с11

Павелецкая → 746 м
~ 7 мин
Арендная плата в месяц 8 141 500 ₽ 68 300 ₽/м² в год С учётом НДС

Презентация по предложению

Собираете информацию? Получите подробную презентацию в удобном формате!

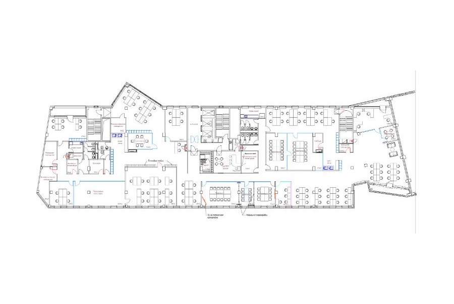
Площадь 1 430 м²
Состояние Готово к въезду
Планировка Смешанная
Этаж 4

Описание

Преимущества
  • Класс А
  • Пешком от метро
  • Кондиционирование и вентиляция
  • Свой паркинг
  • Несколько провайдеров связи
Сдается в долгосрочную аренду офисный блок класса А площадью 1430 квадр. метров в бизнес-центре "Риверсайд Тауэрс".

Москва, ЦАО, Космодамианская набережная, 52 с11

Удобная локация здания:
- Автомобиль: близость транспортных магистралей, таких как Садовое Кольцо и других.
- Возможность аренды парковочных мест.
- Ближайшее метро: от метро "Павелецкая" всего 7 мин пешком

Офис класса А:
- Помещение готово к въезду
- Вентиляция: Приточно-вытяжная вентиляция
- Кондиционирование: центральное
- Презентабельный центральный ресепшн
- Круглосуточная охрана и видеонаблюдение


Если предложение предварительно Вам подходит:

1. Мы отправим Вам подробную презентацию с планировкой и фотографиями в течение 10 минут после звонка, чтобы Вы могли поделиться информацией с руководством или с коллегами.
2. Ответим на любые Ваши вопросы, готовы обсуждать любые предложения по коммерческим условиям аренды помещения.
3. Покажем помещение в удобное для Вас время с менеджером в здании, при необходимости подготовим виртуальный тур.

Вы можете позвонить нам в любое время. Мы ответим на Ваши вопросы по будням до 19:00, а поздно вечером или в выходные зафиксируем Ваш контакт и перезвоним в рабочее время.

Коммерческие условия

Арендная плата 8 141 470 ₽
Ставка арендной платы 44 000 ₽ м²/год
Эксплуатационные расходы 12 000 ₽
Налоги Без НДС
Тип договора Прямая аренда
Срок договора Долгосрочный
Размер платежей 1 месяц
Обеспечительный платеж 3 месяц
Статус Свободен

О бизнес-центре

Класс А
Этажность 25
Лифты Есть
Общая площадь 60 000 м²
Год постройки 1998
Паркинг Подземный
Вентиляция приточно-вытяжная
Кондиционирование центральное
Телекоммуникации Интернет/Телефония

Расположение

Подробная презентацию по предложению

Собираете информацию? Получите подробную презентацию в удобном формате, чтобы обсудить вариант с коллегами или переслать руководству!

Похожие предложения в других зданиях

БЕЗ КОМИССИИ ID: 272768 Рейтинг6.8 КлассB+

Москва, Шлюзовая набережная, 8 с1

Павелецкая → 793 м
~ 8 мин
Арендная плата в месяц 4 787 500 ₽ 38 300 ₽/м² в год С учётом НДС
Характеристики 1 500 м² 4 - 6 этаж Готово к въезду
Преимущества
  • Класс B+
  • Пешком от метро
  • Кондиционирование и вентиляция
  • Свой паркинг

Собственник сдает в прямую аренду офисный блок класса B+ общей площадью 1500 квадр. метров в бизнес-центре... подробнее

Презентация по предложению

Собираете информацию? Получите подробную презентацию в удобном формате!

БЕЗ КОМИССИИ ID: 1138894 Рейтинг6.8 КлассB+

Москва, Шлюзовая набережная, 8 с1

Павелецкая → 793 м
~ 8 мин
Арендная плата в месяц 4 280 025 ₽ 38 300 ₽/м² в год С учётом НДС
Характеристики 1 341 м² 4 этаж Готово к въезду
Преимущества
  • Класс B+
  • Пешком от метро
  • Кондиционирование и вентиляция
  • Свой паркинг

Предлагаем в долгосрочную прямую аренду помещение под офис класса B+ площадью 1341 квадратных метров в бизнес-центре... подробнее

Презентация по предложению

Собираете информацию? Получите подробную презентацию в удобном формате!

ВОЗМОЖНО ОСВОБОЖДЕНИЕ ID: 150718 Рейтинг9.5 КлассА

Москва, Садовническая улица, 82

Павелецкая → 680 м
~ 7 мин
Арендная плата в месяц 5 573 333 ₽ 41 800 ₽/м² в год С учётом НДС
Характеристики 1 600 м² 10 этаж Готово к въезду
Преимущества
  • Класс А
  • Пешком от метро
  • Кондиционирование и вентиляция
  • Свой паркинг
  • Несколько провайдеров связи

Сдаем в долгосрочную прямую аренду офис класса А общей площадью 1600 кв.м в бизнес-центре "Аврора Бизнес Парк 3"... подробнее

Презентация по предложению

Собираете информацию? Получите подробную презентацию в удобном формате!

БЕЗ КОМИССИИ ID: 1253142 Рейтинг9.5 КлассА

Москва, Садовническая улица, 82

Павелецкая → 680 м
~ 7 мин
Арендная плата в месяц 4 396 667 ₽ 40 000 ₽/м² в год С учётом НДС
Характеристики 1 319 м² 4 этаж Готово к въезду
Преимущества
  • Класс А
  • Пешком от метро
  • Кондиционирование и вентиляция
  • Свой паркинг
  • Несколько провайдеров связи

Сдается в долгосрочную прямую аренду офисный блок класса А площадью 1319 кв.м в бизнес-центре "Аврора Бизнес Парк 3"... подробнее

Презентация по предложению

Собираете информацию? Получите подробную презентацию в удобном формате!

ВОЗМОЖНО ОСВОБОЖДЕНИЕ ID: 161785 Рейтинг8.5 КлассА

Москва, Садовническая улица, 82 с2

Павелецкая → 612 м
~ 6 мин
Арендная плата в месяц 5 573 333 ₽ 41 800 ₽/м² в год С учётом НДС
Характеристики 1 600 м² 10 этаж Готово к въезду
Преимущества
  • Класс А
  • Пешком от метро
  • Кондиционирование и вентиляция
  • Свой паркинг
  • Развитая инфраструктура

Предлагаем в долгосрочную прямую аренду помещение под офис класса А площадью 1600 кв. метров в бизнес-центре "Аврора Бизнес Парк"... подробнее

Презентация по предложению

Собираете информацию? Получите подробную презентацию в удобном формате!

Посмотреть все похожие предложения
Отнеситесь рационально к процессу поиска нового офиса!

Просто ответьте на 3 вопроса, и наши специалисты сами предложат оптимальные варианты под ваш бюджет

.