8.2
Смотреть все фото
БЕЗ КОМИССИИ ID: 1374066 Рейтинг6.0 КлассB
Жилой дом «Романов 3 с1»

Аренда офиса 135 м²

Москва, Романов переулок, 3 с1

Александровский сад → 236 м
~ 3 мин
Арендная плата в месяц 830 000 ₽ 73 800 ₽/м² в год С учётом НДС

Презентация по предложению

Собираете информацию? Получите подробную презентацию в удобном формате!

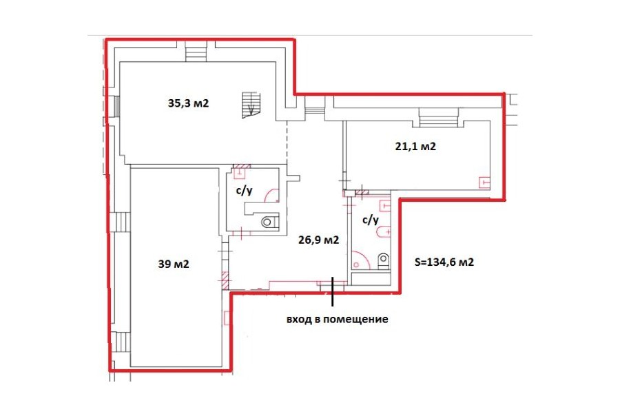
Площадь 135 м²
Состояние Отделка под арендатора
Планировка Кабинетная
Этаж 6

Описание

Преимущества
  • Класс B
  • Пешком от метро
  • Кондиционирование и вентиляция
Предлагается в долгосрочную аренду офис класса B общей площадью 135 квадратных метров в жилом комплексе.

Москва, ЦАО, Романов переулок, 3 с1

Удобное расположение в пределах Садового кольца:
- Ближайшее метро: буквально 3 мин пешком от метро "Александровский сад"

Офис класса B:
- Возможность ремонта по предпочтениям арендатора
- Кондиционирование: сплит-системы


Что еще можно узнать о предложении:

1. Получите презентацию в течение 10 минут в Whatsapp или на почту с фотографиями и планировкой, чтобы обсудить данный вариант с коллегами или переслать руководству. Для этого позвоните по телефону, указанному в объявлении.
2. Ответим на любые Ваши вопросы, готовы обсуждать любые предложения по коммерческим условиям аренды помещения.
3. Оперативно организуем просмотр помещения с менеджерами на объекте или подготовим виртуальный тур.

Вы можете позвонить нам в любое время. Мы ответим на Ваши вопросы по будням до 19:00, а поздно вечером или в выходные зафиксируем Ваш контакт и перезвоним в рабочее время.

Коммерческие условия

Арендная плата 830 000 ₽
Ставка арендной платы 73 800 ₽ м²/год
Эксплуатационные расходы Включены в ставку
Налоги С учётом НДС
Тип договора Прямая аренда
Срок договора Долгосрочный
Размер платежей 1 месяц
Обеспечительный платеж 1 месяц
Статус Свободен

О бизнес-центре

Класс B
Этажность 6
Лифты Нет
Общая площадь 1 000 м²
Паркинг Стихийный
Вентиляция приточно-вытяжная
Кондиционирование сплит-системы
Телекоммуникации Интернет/Телефония

Расположение

Подробная презентацию по предложению

Собираете информацию? Получите подробную презентацию в удобном формате, чтобы обсудить вариант с коллегами или переслать руководству!

Похожие предложения в других зданиях

БЕЗ КОМИССИИ ID: 1374766 Рейтинг8.4 КлассB

Москва, Никитский переулок, 4 с1

Охотный Ряд → 321 м
~ 3 мин
Арендная плата в месяц 788 667 ₽ 67 600 ₽/м² в год С учётом НДС
Характеристики 140 м² 1 этаж Готово к въезду
Преимущества
  • Класс B
  • Пешком от метро
  • Кондиционирование и вентиляция
  • Свой паркинг

Предлагается в долгосрочную прямую аренду офисный блок класса B площадью 140 кв.м в бизнес-центре... подробнее

Презентация по предложению

Собираете информацию? Получите подробную презентацию в удобном формате!

БЕЗ КОМИССИИ ID: 272275 Рейтинг9.9 КлассА

Москва, улица Охотный Ряд, 2

Театральная → 122 м
~ 1 мин
Арендная плата в месяц 805 000 ₽ 80 500 ₽/м² в год С учётом НДС
Характеристики 120 м² 5 этаж Готово к въезду
Преимущества
  • Класс А
  • Пешком от метро
  • Кондиционирование и вентиляция
  • Свой паркинг
  • Развитая инфраструктура

Предлагаем в долгосрочную аренду офис класса А общей площадью 120 квадратных метров в бизнес-центре "Москва"... подробнее

Презентация по предложению

Собираете информацию? Получите подробную презентацию в удобном формате!

БЕЗ КОМИССИИ ID: 1319065 Рейтинг6.5 КлассB

Москва, улица Кузнецкий Мост, 3 с2

Охотный Ряд → 485 м
~ 5 мин
Арендная плата в месяц 829 495 ₽ 64 600 ₽/м² в год С учётом НДС
Характеристики 154 м² -1 этаж Готово к въезду
Преимущества
  • Класс B
  • Пешком от метро
  • Кондиционирование и вентиляция

Предлагаем в долгосрочную аренду офисный блок класса B общей площадью 154 кв.м в бизнес-центре... подробнее

Презентация по предложению

Собираете информацию? Получите подробную презентацию в удобном формате!

БЕЗ КОМИССИИ ID: 1299809 Рейтинг9.6 КлассА

Москва, улица Петровка, 5

Кузнецкий Мост → 526 м
~ 5 мин
Арендная плата в месяц 915 915 ₽ 84 500 ₽/м² в год С учётом НДС
Характеристики 130 м² 3 этаж Готово к въезду
Преимущества
  • Класс А
  • Пешком от метро
  • Кондиционирование и вентиляция
  • Свой паркинг
  • Несколько провайдеров связи

Предлагается в долгосрочную аренду помещение под офис класса А общей площадью 130 кв.м в бизнес-центре "Берлинский Дом"... подробнее

>

Виртуальный тур

Презентация по предложению

Собираете информацию? Получите подробную презентацию в удобном формате!

БЕЗ КОМИССИИ ID: 6070 Рейтинг8.5 КлассB+

Москва, Пречистенский переулок, 14 с1

Кропоткинская → 690 м
~ 7 мин
Арендная плата в месяц 863 750 ₽ 69 100 ₽/м² в год С учётом НДС
Характеристики 150 м² 1 этаж Готово к въезду
Преимущества
  • Класс B+
  • Пешком от метро
  • Кондиционирование и вентиляция
  • Свой паркинг

Собственник сдает в долгосрочную прямую аренду офисный блок класса B+ площадью 150 квадратных метров в бизнес-центре "Амбассадор"... подробнее

Презентация по предложению

Собираете информацию? Получите подробную презентацию в удобном формате!

Посмотреть все похожие предложения
Отнеситесь рационально к процессу поиска нового офиса!

Просто ответьте на 3 вопроса, и наши специалисты сами предложат оптимальные варианты под ваш бюджет

.