8.2

Виртуальный тур

Смотреть все фото
БЕЗ КОМИССИИ ID: 306565 Рейтинг7.4 КлассА

Москва, Микрорайон Северное Чертаново, 1А

Чертановская → 604 м
~ 8 мин
Арендная плата в месяц 6 451 700 ₽ 20 000 ₽/м² в год С учётом НДС

Презентация по предложению

Собираете информацию? Получите подробную презентацию в удобном формате!

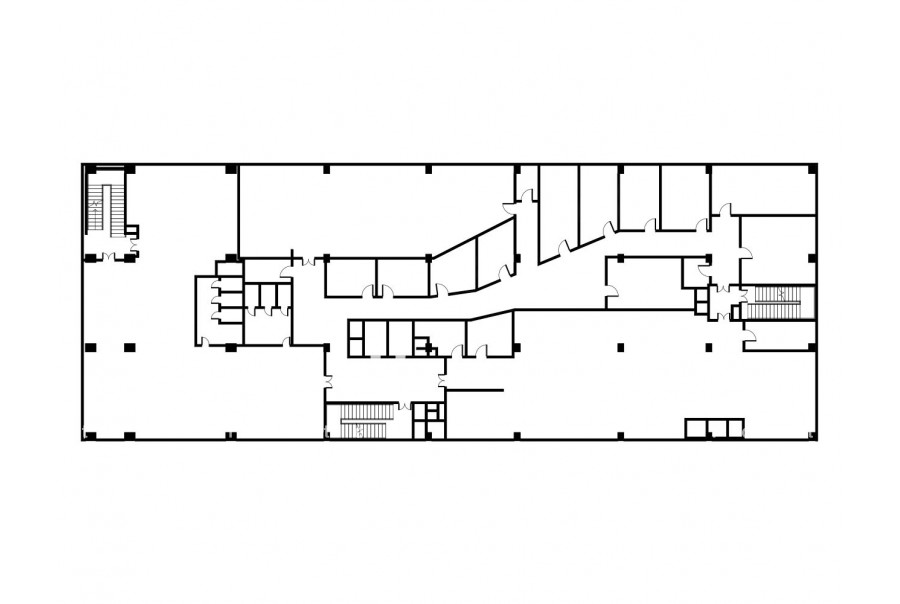
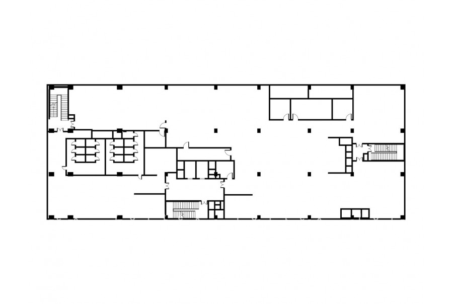
Площадь 3 871 м²
Состояние Готово к въезду
Планировка Смешанная
Этаж 4 - 6

Описание

Преимущества
  • Класс А
  • Пешком от метро
  • Кондиционирование и вентиляция
  • Свой паркинг
  • Развитая инфраструктура
Предлагается в долгосрочную прямую аренду офис класса А общей площадью 3871 кв. метров в бизнес-центре "РТС Чертановская".

Москва, ЮАО, Микрорайон Северное Чертаново, 1А

Удобная локация здания:
- Автомобиль: близость транспортных магистралей, таких как Варшавское шоссе и других.
- Возможность аренды парковочных мест.
- Ближайшее метро: от метро "Чертановская" всего 8 мин пешком

Офис класса А:
- Помещение с отделкой, готово к въезду
- Вентиляция: Приточно-вытяжная вентиляция
- Кондиционирование: центральное
- Развитая инфраструктура внутри здания

Возможность заключения контракта в соответствии с 44ФЗ по госзакупкам.

Что еще можно узнать о предложении:

1. Мы подготовили презентацию с информацией о помещении, фотографиями и планировкой, чтобы Вы могли поделиться ей с коллегами или руководством. Попросите об этом нашего менеджера по телефону в объявлении.
2. Задайте любые вопросы менеджеру по телефону, готовы обсуждать любые предложения по финансовым условиям договора аренды.
3.

Звоните нам в любое время. По будням мы сможем ответить на Ваши вопросы до 19:00. В выходные или вечернее время мы передадим Ваш контакт нашему менеджеру по аренде.

Коммерческие условия

Арендная плата 6 451 670 ₽
Ставка арендной платы 20 000 ₽ м²/год
Эксплуатационные расходы Включены в ставку
Налоги С учётом НДС
Тип договора Прямая аренда
Срок договора от 11 месяцев
Размер платежей 1 месяц
Обеспечительный платеж 1 месяц
Статус Сдан

О бизнес-центре

Класс А
Этажность 8
Лифты Есть
Общая площадь 8 930 м²
Год постройки 2008
Паркинг Подземный
Вентиляция приточно-вытяжная
Кондиционирование центральное
Телекоммуникации Интернет/Телефония

Расположение

Подробная презентацию по предложению

Собираете информацию? Получите подробную презентацию в удобном формате, чтобы обсудить вариант с коллегами или переслать руководству!

Похожие предложения в других зданиях

БЕЗ КОМИССИИ ID: 893186 Рейтинг8.0 КлассB+

Москва, улица Обручева, 52 с3

Зюзино → 1.46 км
~ 15 мин
Арендная плата в месяц 6 095 833 ₽ 20 900 ₽/м² в год С учётом НДС
Характеристики 3 500 м² 2 этаж Готово к въезду
Преимущества
  • Класс B+
  • Пешком от метро
  • Кондиционирование и вентиляция
  • Свой паркинг

Предлагаем в долгосрочную аренду офис класса B+ общей площадью 3500 кв. метров в бизнес-центре "РТС Обручева"... подробнее

>

Виртуальный тур

Презентация по предложению

Собираете информацию? Получите подробную презентацию в удобном формате!

БЕЗ КОМИССИИ ID: 122780 Рейтинг7.7 КлассB+

Москва, Варшавское шоссе, 47 к4

Нагатинская → 936 м
~ 12 мин
Арендная плата в месяц 6 166 667 ₽ 18 500 ₽/м² в год С учётом НДС
Характеристики 4 000 м² 12 - 13 этаж Готово к въезду
Преимущества
  • Класс B+
  • Пешком от метро
  • Кондиционирование и вентиляция
  • Свой паркинг
  • Развитая инфраструктура

Сдаем в долгосрочную аренду офисное помещение класса B+ площадью 4000 кв.м в бизнес-центре "Навигатор"... подробнее

Презентация по предложению

Собираете информацию? Получите подробную презентацию в удобном формате!

Посмотреть все похожие предложения
Отнеситесь рационально к процессу поиска нового офиса!

Просто ответьте на 3 вопроса, и наши специалисты сами предложат оптимальные варианты под ваш бюджет

.