8.2
Смотреть все фото
БЕЗ КОМИССИИ ID: 1379417 Рейтинг7.8 КлассB
Бизнес-центр «Румянцево»

Аренда офиса 558 м²

Москва, деревня Румянцево, Киевское шоссе, 1

Румянцево → 272 м
~ 3 мин
Арендная плата в месяц 744 000 ₽ 16 000 ₽/м² в год С учётом НДС

Презентация по предложению

Собираете информацию? Получите подробную презентацию в удобном формате!

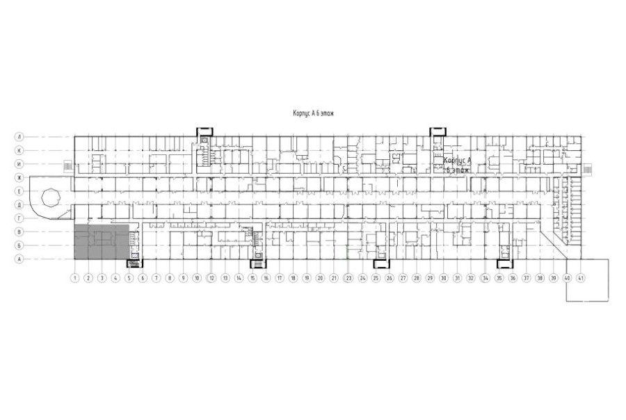
Площадь 558 м²
Состояние Готово к въезду
Планировка Смешанная
Этаж 6

Описание

Преимущества
  • Класс B
  • Пешком от метро
  • Кондиционирование и вентиляция
  • Свой паркинг
  • Несколько провайдеров связи
Предлагаем в долгосрочную аренду офисный блок класса B общей площадью 558 кв. метров в бизнес-центре "Румянцево".

Москва, Подмосковье, деревня Румянцево, Киевское шоссе, 1

Характеристики местоположения:
- Возможность аренды парковочных мест.
- Ближайшее метро: буквально 3 мин пешком от метро "Румянцево"

Офис класса B:
- Помещение готово к въезду
- Вентиляция: Приточно-вытяжная вентиляция
- Кондиционирование: центральное


Что еще можно узнать о предложении:

1. Мы отправим Вам подробную презентацию с планировкой и фотографиями в течение 10 минут после звонка, чтобы Вы могли поделиться информацией с руководством или с коллегами.
2. Мы готовы ответить на любые Ваши вопросы о помещении и коммерческих условиях аренды.
3. Оперативно организуем просмотр помещения с менеджерами на объекте или подготовим виртуальный тур.

Звоните нам в любое время. По будням мы сможем ответить на Ваши вопросы до 19:00. В выходные или вечернее время мы передадим Ваш контакт нашему менеджеру по аренде.

Коммерческие условия

Арендная плата 744 000 ₽
Ставка арендной платы 16 000 ₽ м²/год
Эксплуатационные расходы Включены в ставку
Налоги С учётом НДС
Тип договора Прямая аренда
Срок договора от 11 месяцев
Размер платежей 1 месяц
Обеспечительный платеж 1 месяц
Статус Свободен

О бизнес-центре

Класс B
Этажность 9
Лифты Есть
Общая площадь 170 000 м²
Год постройки 2008
Паркинг Наземный
Вентиляция приточно-вытяжная
Кондиционирование центральное
Телекоммуникации Интернет/Телефония

Расположение

Подробная презентацию по предложению

Собираете информацию? Получите подробную презентацию в удобном формате, чтобы обсудить вариант с коллегами или переслать руководству!

Похожие предложения в других зданиях

БЕЗ КОМИССИИ ID: 127531 Рейтинг8.0 КлассB+

Москва, Киевское шоссе, 1-й километр

Румянцево → 1.12 км
~ 11 мин
Арендная плата в месяц 625 000 ₽ 15 000 ₽/м² в год С учётом НДС
Характеристики 500 м² 1 - 9 этаж Под отделку
Преимущества
  • Класс B+
  • Пешком от метро
  • Кондиционирование и вентиляция
  • Свой паркинг

Сдаем в прямую аренду офисный блок класса B+ общей площадью 500 кв. метров в бизнес-центре "G10"... подробнее

Презентация по предложению

Собираете информацию? Получите подробную презентацию в удобном формате!

БЕЗ КОМИССИИ ID: 181246 Рейтинг8.3 КлассА

Москва, Московский поселение, 32 квартал вл16с1

Саларьево → 1.47 км
~ 15 мин
Арендная плата в месяц 670 833 ₽ 16 100 ₽/м² в год С учётом НДС
Характеристики 500 м² 6 этаж Под отделку
Преимущества
  • Класс А
  • Пешком от метро
  • Кондиционирование и вентиляция
  • Свой паркинг

Предлагаем в долгосрочную прямую аренду помещение под офис класса А общей площадью 500 кв.м в бизнес-центре "Neopolis"... подробнее

Презентация по предложению

Собираете информацию? Получите подробную презентацию в удобном формате!

БЕЗ КОМИССИИ ID: 164749 Рейтинг6.1 КлассB

Москва, Ленинский проспект, 158

Тропарево → 1.31 км
~ 13 мин
Арендная плата в месяц 733 333 ₽ 16 000 ₽/м² в год С учётом НДС
Характеристики 550 м² 24 этаж Под отделку
Преимущества
  • Класс B
  • Пешком от метро
  • Кондиционирование и вентиляция
  • Свой паркинг
  • Развитая инфраструктура

Сдаем в долгосрочную аренду офисное помещение класса B площадью 550 квадр. метров в бизнес-центре "Гостиница Салют"... подробнее

Презентация по предложению

Собираете информацию? Получите подробную презентацию в удобном формате!

БЕЗ КОМИССИИ ID: 1325705 Рейтинг8.8 КлассА

Москва, Ленинский проспект, 119А

Тропарево → 1.39 км
~ 14 мин
Арендная плата в месяц 1 327 360 ₽ 31 100 ₽/м² в год С учётом НДС
Характеристики 512 м² -1 этаж Готово к въезду
Преимущества
  • Класс А
  • Пешком от метро
  • Кондиционирование и вентиляция
  • Свой паркинг

Предлагаем в прямую аренду офис класса А площадью 512 кв.м в бизнес-центре... подробнее

Презентация по предложению

Собираете информацию? Получите подробную презентацию в удобном формате!

БЕЗ КОМИССИИ ID: 192755 Рейтинг7.4 КлассА

улица Мичуринский Проспект, Олимпийская Деревня, 1к4

Мичуринский проспект → 1.51 км
~ 15 мин
Арендная плата в месяц 641 667 ₽ 14 000 ₽/м² в год С учётом НДС
Характеристики 550 м² 2 этаж Готово к въезду
Преимущества
  • Класс А
  • Пешком от метро
  • Кондиционирование и вентиляция
  • Свой паркинг
  • Развитая инфраструктура

Предлагаем в аренду помещение под офис класса А площадью 550 кв.м в бизнес-центре "Чемпион-парк"... подробнее

Презентация по предложению

Собираете информацию? Получите подробную презентацию в удобном формате!

Посмотреть все похожие предложения
Отнеситесь рационально к процессу поиска нового офиса!

Просто ответьте на 3 вопроса, и наши специалисты сами предложат оптимальные варианты под ваш бюджет

.