8.2
Смотреть все фото
БЕЗ КОМИССИИ ID: 1329911 Рейтинг8.0 КлассB
Бизнес-центр «Рябиновая 41 к1»

Аренда офиса 1861 м²

Москва, Рябиновая улица, 41 к1

Давыдково → 5.79 км
~ 30 мин
Арендная плата в месяц 4 730 000 ₽ 30 500 ₽/м² в год С учётом НДС

Презентация по предложению

Собираете информацию? Получите подробную презентацию в удобном формате!

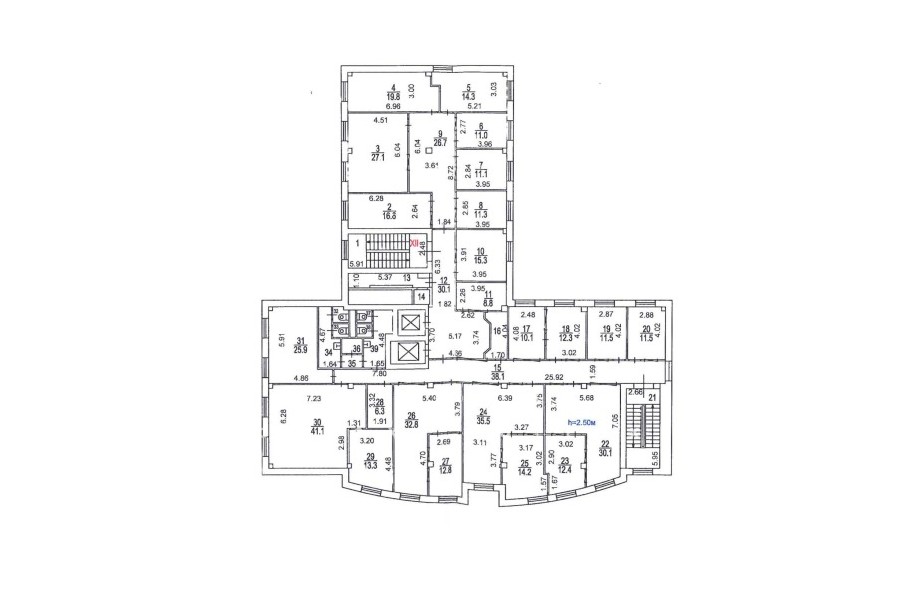
Площадь 1 861 м²
Состояние Готово к въезду
Планировка Смешанная
Этаж 5 - 8

Описание

Преимущества
  • Класс B
  • Кондиционирование и вентиляция
  • Свой паркинг
Предлагается в долгосрочную аренду помещение под офис класса B площадью 1861 квадратных метров в бизнес-центре.

Москва, ЗАО, Рябиновая улица, 41 к1

Характеристики местоположения:
- Автомобиль: близость транспортных магистралей, таких как МКАД, Можайское шоссе и других.
- Возможность аренды парковочных мест.
- Ближайшее метро: метро "Давыдково", далее городской транспорт до здания

Офис класса B:
- Помещение с отделкой, готово к въезду
- Вентиляция: Приточно-вытяжная вентиляция
- Кондиционирование: центральное


Что еще можно узнать о предложении:

1. Мы подготовили презентацию с информацией о помещении, фотографиями и планировкой, чтобы Вы могли поделиться ей с коллегами или руководством. Попросите об этом нашего менеджера по телефону в объявлении.
2. Мы готовы ответить на любые Ваши вопросы о помещении и коммерческих условиях аренды.
3. Оперативно организуем просмотр помещения с менеджерами на объекте или подготовим виртуальный тур.

Звоните нам в любое время. По будням мы сможем ответить на Ваши вопросы до 19:00. В выходные или вечернее время мы передадим Ваш контакт нашему менеджеру по аренде.

Коммерческие условия

Арендная плата 4 730 040 ₽
Ставка арендной платы 30 500 ₽ м²/год
Эксплуатационные расходы Включены в ставку
Налоги С учётом НДС
Тип договора Прямая аренда
Срок договора от 11 месяцев
Размер платежей 1 месяц
Обеспечительный платеж 2 месяц
Статус Свободен

О бизнес-центре

Класс B
Этажность 8
Лифты Есть
Общая площадь 19 000 м²
Год постройки 2010
Паркинг Наземный
Вентиляция приточно-вытяжная
Кондиционирование центральное
Телекоммуникации Интернет/Телефония

Расположение

Подробная презентацию по предложению

Собираете информацию? Получите подробную презентацию в удобном формате, чтобы обсудить вариант с коллегами или переслать руководству!

Похожие предложения в других зданиях

БЕЗ КОМИССИИ ID: 1322189 Рейтинг8.0 КлассB+

Москва, Рябиновая улица, 26 с1

Давыдково → 5.09 км
~ 21 мин
Арендная плата в месяц 5 610 150 ₽ 32 100 ₽/м² в год С учётом НДС
Характеристики 2 100 м² 2 - 3 этаж Готово к въезду
Преимущества
  • Класс B+
  • Кондиционирование и вентиляция
  • Свой паркинг

Сдается в долгосрочную прямую аренду офисное помещение класса B+ площадью 2100 квадр. метров в бизнес-центре "West Plaza"... подробнее

Презентация по предложению

Собираете информацию? Получите подробную презентацию в удобном формате!

БЕЗ КОМИССИИ ID: 262913 Рейтинг8.6 КлассB+

Москва, Верейская улица, 29 с134

Давыдково → 1.55 км
~ 15 мин
Арендная плата в месяц 5 400 000 ₽ 32 400 ₽/м² в год С учётом НДС
Характеристики 2 000 м² 7 этаж Отделка под арендатора
Преимущества
  • Класс B+
  • Пешком от метро
  • Кондиционирование и вентиляция
  • Свой паркинг

Предлагаем в долгосрочную прямую аренду офисное помещение класса B+ площадью 2000 квадр. метров в новом бизнес-центре "Верейская плаза III"... подробнее

Презентация по предложению

Собираете информацию? Получите подробную презентацию в удобном формате!

БЕЗ КОМИССИИ ID: 1299120 Рейтинг8.2 КлассА

Москва, Верейская улица, 11

Давыдково → 1.24 км
~ 12 мин
Арендная плата в месяц 5 763 450 ₽ 34 600 ₽/м² в год С учётом НДС
Характеристики 1 996 м² 3 этаж Готово к въезду
Преимущества
  • Класс А
  • Пешком от метро
  • Кондиционирование и вентиляция
  • Свой паркинг

Сдается в долгосрочную аренду помещение под офис класса А общей площадью 1996 квадр. метров в бизнес-центре "Квадрат"... подробнее

>

Виртуальный тур

Презентация по предложению

Собираете информацию? Получите подробную презентацию в удобном формате!

БЕЗ КОМИССИИ ID: 1379295 Рейтинг8.7 КлассА

Москва, улица Ивана Франко, 8

Кунцевская → 432 м
~ 4 мин
Арендная плата в месяц 6 054 250 ₽ 45 800 ₽/м² в год С учётом НДС
Характеристики 1 588 м² 9 этаж Готово к въезду
Преимущества
  • Класс А
  • Пешком от метро
  • Кондиционирование и вентиляция
  • Свой паркинг
  • Несколько провайдеров связи
  • Развитая инфраструктура

Предлагаем в долгосрочную прямую аренду офисный блок класса А общей площадью 1588 квадр. метров в бизнес-центре "Кутузофф Тауэр"... подробнее

>

Виртуальный тур

Презентация по предложению

Собираете информацию? Получите подробную презентацию в удобном формате!

БЕЗ КОМИССИИ ID: 1322628 Рейтинг8.7 КлассА

Москва, улица Ивана Франко, 8

Кунцевская → 432 м
~ 4 мин
Арендная плата в месяц 6 054 250 ₽ 45 800 ₽/м² в год С учётом НДС
Характеристики 1 588 м² 6 этаж Готово к въезду
Преимущества
  • Класс А
  • Пешком от метро
  • Кондиционирование и вентиляция
  • Свой паркинг
  • Несколько провайдеров связи
  • Развитая инфраструктура

Сдается в долгосрочную прямую аренду офис класса А общей площадью 1588 квадратных метров в бизнес-центре "Кутузофф Тауэр"... подробнее

>

Виртуальный тур

Презентация по предложению

Собираете информацию? Получите подробную презентацию в удобном формате!

Посмотреть все похожие предложения
Отнеситесь рационально к процессу поиска нового офиса!

Просто ответьте на 3 вопроса, и наши специалисты сами предложат оптимальные варианты под ваш бюджет

.