8.2
Смотреть все фото
БЕЗ КОМИССИИ ID: 184614 Рейтинг6.8 КлассB

Москва, Садовническая набережная, 69

Павелецкая → 1.09 км
~ 11 мин
Арендная плата в месяц 1 074 500 ₽ 21 000 ₽/м² в год С учётом НДС

Презентация по предложению

Собираете информацию? Получите подробную презентацию в удобном формате!

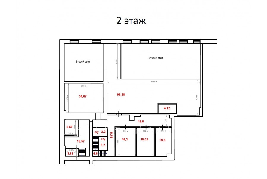
Площадь 614 м²
Состояние Готово к въезду
Планировка Смешанная
Этаж 1

Описание

Преимущества
  • Класс B
  • Пешком от метро
  • Кондиционирование и вентиляция
  • Свой паркинг
  • Развитая инфраструктура
Сдается в долгосрочную аренду офисное помещение класса B общей площадью 614 кв.м в бизнес-центре.

Москва, ЦАО, Садовническая набережная, 69

Удобное расположение в пределах Садового кольца:
- Возможность аренды парковочных мест.
- Ближайшее метро: от метро "Павелецкая" всего 11 мин пешком

Офис класса B:
- Помещение готово к въезду
- Вентиляция: Приточно-вытяжная вентиляция
- Кондиционирование: сплит-системы
- Развитая инфраструктура внутри здания

Возможность заключения контракта в соответствии с 44ФЗ по госзакупкам.

Что еще можно узнать о предложении:

1. Мы отправим Вам подробную презентацию с планировкой и фотографиями в течение 10 минут после звонка, чтобы Вы могли поделиться информацией с руководством или с коллегами.
2. Мы готовы ответить на любые Ваши вопросы о помещении и коммерческих условиях аренды.
3. Оперативно организуем просмотр помещения, договоримся на любое удобное время, подготовим виртуальный тур.

Звоните нам в любое время. По будням мы сможем ответить на Ваши вопросы до 19:00. В выходные или вечернее время мы передадим Ваш контакт нашему менеджеру по аренде.

Коммерческие условия

Арендная плата 1 074 500 ₽
Ставка арендной платы 21 000 ₽ м²/год
Эксплуатационные расходы Включены в ставку
Налоги С учётом НДС
Тип договора Прямая аренда
Срок договора от 11 месяцев
Размер платежей 1 месяц
Обеспечительный платеж 1 месяц
Статус Сдан

О бизнес-центре

Класс B
Этажность 4
Лифты Нет
Общая площадь 0 м²
Год постройки 2008
Паркинг Наземный
Вентиляция приточно-вытяжная
Кондиционирование сплит-системы
Телекоммуникации Интернет/Телефония

Расположение

Подробная презентацию по предложению

Собираете информацию? Получите подробную презентацию в удобном формате, чтобы обсудить вариант с коллегами или переслать руководству!

Похожие предложения в других зданиях

БЕЗ КОМИССИИ ID: 221564 Рейтинг6.5 КлассB

Москва, Садовническая улица, 76/71 с1

Павелецкая → 1.02 км
~ 10 мин
Арендная плата в месяц 964 250 ₽ 21 000 ₽/м² в год С учётом НДС
Характеристики 551 м² 1 - 3 этаж Готово к въезду
Преимущества
  • Класс B
  • Пешком от метро
  • Кондиционирование и вентиляция
  • Свой паркинг
  • Несколько провайдеров связи
  • Развитая инфраструктура

Предлагаем в долгосрочную прямую аренду помещение под офис класса B общей площадью 551 кв. метров в историческом бизнес-центре... подробнее

Презентация по предложению

Собираете информацию? Получите подробную презентацию в удобном формате!

БЕЗ КОМИССИИ ID: 188353 Рейтинг8.5 КлассА

Москва, Большая Татарская улица, 9

Новокузнецкая → 334 м
~ 3 мин
Арендная плата в месяц 1 150 000 ₽ 23 000 ₽/м² в год С учётом НДС
Характеристики 600 м² 2 этаж Готово к въезду
Преимущества
  • Класс А
  • Пешком от метро
  • Кондиционирование и вентиляция

Предлагается в прямую аренду офисный блок класса А площадью 600 квадратных метров в бизнес-центре... подробнее

Презентация по предложению

Собираете информацию? Получите подробную презентацию в удобном формате!

БЕЗ КОМИССИИ ID: 272439 Рейтинг7.7 КлассB

Москва, Садовническая улица, 54 с2

Новокузнецкая → 853 м
~ 9 мин
Арендная плата в месяц 1 283 333 ₽ 22 000 ₽/м² в год С учётом НДС
Характеристики 700 м² 3 - 4 этаж Готово к въезду
Преимущества
  • Класс B
  • Пешком от метро
  • Кондиционирование и вентиляция
  • Свой паркинг

Собственник сдает в прямую аренду помещение под офис класса B площадью 700 квадр. метров в историческом бизнес-центре... подробнее

Презентация по предложению

Собираете информацию? Получите подробную презентацию в удобном формате!

БЕЗ КОМИССИИ ID: 129776 Рейтинг9.5 КлассB+

Москва, Большая Татарская улица, 13 с5

Новокузнецкая → 364 м
~ 4 мин
Арендная плата в месяц 1 011 667 ₽ 20 000 ₽/м² в год С учётом НДС
Характеристики 607 м² 1 - 2 этаж Под отделку
Преимущества
  • Класс B+
  • Пешком от метро
  • Кондиционирование и вентиляция
  • Свой паркинг

Предлагается в долгосрочную аренду помещение под офис класса B+ площадью 607 квадр. метров в бизнес-центре... подробнее

Презентация по предложению

Собираете информацию? Получите подробную презентацию в удобном формате!

БЕЗ КОМИССИИ ID: 53404 Рейтинг7.2 КлассB

Москва, Садовническая улица, 44 с1

Новокузнецкая → 696 м
~ 7 мин
Арендная плата в месяц 1 320 583 ₽ 23 000 ₽/м² в год С учётом НДС
Характеристики 689 м² 2 - 3 этаж Готово к въезду
Преимущества
  • Класс B
  • Пешком от метро
  • Кондиционирование и вентиляция

Сдается в долгосрочную аренду офисный блок класса B площадью 689 квадратных метров в историческом недавно отреконструированном бизнес-центре... подробнее

Презентация по предложению

Собираете информацию? Получите подробную презентацию в удобном формате!

Посмотреть все похожие предложения
Отнеситесь рационально к процессу поиска нового офиса!

Просто ответьте на 3 вопроса, и наши специалисты сами предложат оптимальные варианты под ваш бюджет

.