8.2
Смотреть все фото
БЕЗ КОМИССИИ ID: 210297 Рейтинг6.2 КлассB

Москва, Садовническая улица, 70 с2

Павелецкая → 1.21 км
~ 12 мин
Арендная плата в месяц 920 800 ₽ 17 000 ₽/м² в год С учётом НДС

Презентация по предложению

Собираете информацию? Получите подробную презентацию в удобном формате!

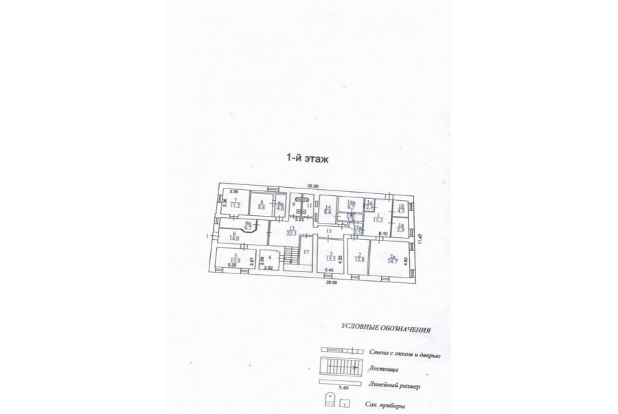
Площадь 650 м²
Состояние Готово к въезду
Планировка Кабинетная
Этаж 1 - 3

Описание

Преимущества
  • Класс B
  • Пешком от метро
  • Кондиционирование и вентиляция
  • Свой паркинг
Предлагаем в долгосрочную прямую аренду офисное помещение класса B площадью 650 квадр. метров в бизнес-центре.

Москва, ЦАО, Садовническая улица, 70 с2

Удобное расположение в пределах Садового кольца:
- Возможность аренды парковочных мест.
- Ближайшее метро: от метро "Павелецкая" всего 16 мин пешком

Офис класса B:
- Помещение готово к въезду
- Кондиционирование: сплит-системы


Если предложение предварительно Вам подходит:

1. Мы отправим Вам подробную презентацию с планировкой и фотографиями в течение 10 минут после звонка, чтобы Вы могли поделиться информацией с руководством или с коллегами.
2. Задайте любые вопросы менеджеру по телефону, готовы обсуждать любые предложения по финансовым условиям договора аренды.
3. Оперативно организуем просмотр помещения, договоримся на любое удобное время, подготовим виртуальный тур.

Вы можете позвонить нам в любое время. Мы ответим на Ваши вопросы по будням до 19:00, а поздно вечером или в выходные сможем передать Ваш контакт нашему менеджеру.

Коммерческие условия

Арендная плата 920 830 ₽
Ставка арендной платы 17 000 ₽ м²/год
Эксплуатационные расходы Включены в ставку
Налоги С учётом НДС
Тип договора Прямая аренда
Срок договора от 11 месяцев
Размер платежей 1 месяц
Обеспечительный платеж 1 месяц
Статус Сдан

О бизнес-центре

Класс B
Этажность 2
Лифты Нет
Общая площадь 650 м²
Год постройки 1965
Паркинг Наземный
Вентиляция естественная
Кондиционирование сплит-системы
Телекоммуникации Интернет/Телефония

Расположение

Подробная презентацию по предложению

Собираете информацию? Получите подробную презентацию в удобном формате, чтобы обсудить вариант с коллегами или переслать руководству!

Похожие предложения в других зданиях

БЕЗ КОМИССИИ ID: 5914 Рейтинг7.2 КлассB

Москва, Большая Татарская улица, 35 с4

Павелецкая → 774 м
~ 8 мин
Арендная плата в месяц 875 000 ₽ 15 000 ₽/м² в год С учётом НДС
Характеристики 700 м² 5 этаж Готово к въезду
Преимущества
  • Класс B
  • Пешком от метро
  • Кондиционирование и вентиляция
  • Развитая инфраструктура

Собственник сдает в прямую аренду помещение под офис класса B общей площадью 700 кв. метров в историческом бизнес-центре... подробнее

Презентация по предложению

Собираете информацию? Получите подробную презентацию в удобном формате!

БЕЗ КОМИССИИ ID: 104543 Рейтинг6.7 КлассB

Москва, улица Бахрушина, 10 с2

Павелецкая → 599 м
~ 6 мин
Арендная плата в месяц 991 667 ₽ 17 000 ₽/м² в год С учётом НДС
Характеристики 700 м² 1 этаж Готово к въезду
Преимущества
  • Класс B
  • Пешком от метро
  • Кондиционирование и вентиляция

Сдаем в прямую аренду офисный блок класса B площадью 700 квадратных метров в бизнес-центре... подробнее

Презентация по предложению

Собираете информацию? Получите подробную презентацию в удобном формате!

БЕЗ КОМИССИИ ID: 195740 Рейтинг8.5 КлассB

Москва, Народная улица, 4 с1

Таганская → 144 м
~ 1 мин
Арендная плата в месяц 825 000 ₽ 18 000 ₽/м² в год С учётом НДС
Характеристики 550 м² 4 этаж Готово к въезду
Преимущества
  • Класс B
  • Пешком от метро
  • Кондиционирование и вентиляция
  • Развитая инфраструктура

Собственник сдает в долгосрочную прямую аренду офис класса B общей площадью 550 квадратных метров в историческом бизнес-центре... подробнее

Презентация по предложению

Собираете информацию? Получите подробную презентацию в удобном формате!

БЕЗ КОМИССИИ ID: 118511 Рейтинг4.7 КлассB

Москва, 1-й Гончарный переулок, 3 с 4

Таганская → 155 м
~ 2 мин
Арендная плата в месяц 715 333 ₽ 14 800 ₽/м² в год С учётом НДС
Характеристики 580 м² 1 - 2 этаж Готово к въезду
Преимущества
  • Класс B
  • Пешком от метро
  • Кондиционирование и вентиляция

Собственник сдает в прямую аренду офис класса B общей площадью 580 квадр. метров в бизнес-центре... подробнее

Презентация по предложению

Собираете информацию? Получите подробную презентацию в удобном формате!

БЕЗ КОМИССИИ ID: 130335 Рейтинг5.0 КлассB

Москва, 1-й Гончарный переулок, 4 с4

Таганская → 202 м
~ 2 мин
Арендная плата в месяц 930 000 ₽ 18 000 ₽/м² в год С учётом НДС
Характеристики 620 м² 1 - 2 этаж Готово к въезду
Преимущества
  • Класс B
  • Пешком от метро
  • Кондиционирование и вентиляция

Предлагается в долгосрочную аренду помещение под офис класса B площадью 620 квадратных метров в бизнес-центре... подробнее

Презентация по предложению

Собираете информацию? Получите подробную презентацию в удобном формате!

Посмотреть все похожие предложения
Отнеситесь рационально к процессу поиска нового офиса!

Просто ответьте на 3 вопроса, и наши специалисты сами предложат оптимальные варианты под ваш бюджет

.