8.2

Виртуальный тур

Смотреть все фото
БЕЗ КОМИССИИ ID: 1242357 Рейтинг7.7 КлассB

Москва, Садовническая набережная, 79

Павелецкая → 550 м
~ 6 мин
Арендная плата в месяц 2 285 100 ₽ 90 800 ₽/м² в год С учётом НДС

Презентация по предложению

Собираете информацию? Получите подробную презентацию в удобном формате!

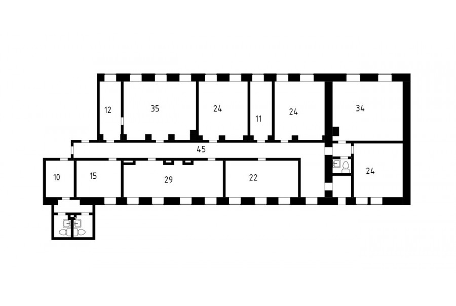
Площадь 302 м²
Состояние Готово к въезду
Планировка Кабинетная
Этаж 3

Описание

Преимущества
  • Класс B
  • Пешком от метро
  • Кондиционирование и вентиляция
  • Свой паркинг
  • Развитая инфраструктура
Предлагается в прямую аренду офис класса B площадью 302 квадр. метров в историческом бизнес-центре.

Москва, ЦАО, Садовническая набережная, 79

Удобное расположение в пределах Садового кольца:
- Возможность аренды парковочных мест.
- Ближайшее метро: от метро "Павелецкая" всего 5 мин пешком

Офис класса B:
- Помещение готово к въезду
- Вентиляция: Приточно-вытяжная вентиляция
- Кондиционирование: сплит-системы


Что еще можно узнать о предложении:

1. Мы отправим Вам подробную презентацию с планировкой и фотографиями в течение 10 минут после звонка, чтобы Вы могли поделиться информацией с руководством или с коллегами.
2. Задайте любые вопросы менеджеру по телефону, готовы обсуждать любые предложения по финансовым условиям договора аренды.
3.

Звоните нам в любое время. По будням мы сможем ответить на Ваши вопросы до 19:00. В выходные или вечернее время мы передадим Ваш контакт нашему менеджеру по аренде.

Коммерческие условия

Арендная плата 629 170 ₽
Ставка арендной платы 90 800 ₽ м²/год
Эксплуатационные расходы Включены в ставку
Налоги С учётом НДС
Тип договора Прямая аренда
Срок договора от 11 месяцев
Размер платежей 1 месяц
Обеспечительный платеж 1 месяц
Статус Сдан

О бизнес-центре

Класс B
Этажность 3
Лифты Нет
Общая площадь 2 128 м²
Год постройки 1890
Паркинг Наземный
Вентиляция приточно-вытяжная
Кондиционирование сплит-системы
Телекоммуникации Интернет/Телефония

Расположение

Подробная презентацию по предложению

Собираете информацию? Получите подробную презентацию в удобном формате, чтобы обсудить вариант с коллегами или переслать руководству!

Похожие предложения в других зданиях

БЕЗ КОМИССИИ ID: 1376416 Рейтинг9.6 КлассА

Москва, Валовая улица, 35

Добрынинская → 292 м
~ 3 мин
Арендная плата в месяц 2 159 400 ₽ 87 800 ₽/м² в год С учётом НДС
Характеристики 295 м² 8 этаж Готово к въезду
Преимущества
  • Класс А
  • Пешком от метро
  • Кондиционирование и вентиляция
  • Свой паркинг

Предлагается в прямую аренду офисное помещение класса А площадью 295 квадратных метров в бизнес-центре "Wall Street"... подробнее

Презентация по предложению

Собираете информацию? Получите подробную презентацию в удобном формате!

БЕЗ КОМИССИИ ID: 1377105 Рейтинг8.4 КлассB

Москва, 1-й Казачий переулок, 5/2 с1

Полянка → 477 м
~ 5 мин
Арендная плата в месяц 2 745 023 ₽ 104 600 ₽/м² в год С учётом НДС
Характеристики 315 м² 4 этаж Готово к въезду
Преимущества
  • Класс B
  • Пешком от метро
  • Кондиционирование и вентиляция
  • Свой паркинг
  • Несколько провайдеров связи
  • Развитая инфраструктура

Сдается в долгосрочную аренду высококачественный сервисный офис на 45 рабочих мест в бизнес-центре "Дом Немецкой Экономики"... подробнее

Презентация по предложению

Собираете информацию? Получите подробную презентацию в удобном формате!

БЕЗ КОМИССИИ ID: 1186454 Рейтинг7.4 КлассB

Москва, Пятницкая улица, 11/23

Новокузнецкая → 215 м
~ 2 мин
Арендная плата в месяц 2 000 000 ₽ 80 000 ₽/м² в год С учётом НДС
Характеристики 300 м² 1 этаж Готово к въезду
Преимущества
  • Класс B
  • Пешком от метро
  • Кондиционирование и вентиляция
  • Свой паркинг
  • Развитая инфраструктура

Собственник сдает в долгосрочную аренду офис класса B площадью 300 кв.м в историческом бизнес-центре... подробнее

Презентация по предложению

Собираете информацию? Получите подробную презентацию в удобном формате!

БЕЗ КОМИССИИ ID: 1242358 Рейтинг7.7 КлассB

Москва, Садовническая набережная, 79

Павелецкая → 550 м
~ 6 мин
Арендная плата в месяц 2 368 367 ₽ 90 800 ₽/м² в год С учётом НДС
Характеристики 313 м² 2 этаж Готово к въезду
Преимущества
  • Класс B
  • Пешком от метро
  • Кондиционирование и вентиляция
  • Свой паркинг
  • Развитая инфраструктура

Сдаем в прямую аренду помещение под офис класса B общей площадью 313 кв. метров в историческом бизнес-центре... подробнее

>

Виртуальный тур

Презентация по предложению

Собираете информацию? Получите подробную презентацию в удобном формате!

Посмотреть все похожие предложения
Отнеситесь рационально к процессу поиска нового офиса!

Просто ответьте на 3 вопроса, и наши специалисты сами предложат оптимальные варианты под ваш бюджет

.