8.2
Смотреть все фото
БЕЗ КОМИССИИ ID: 241298 Рейтинг8.1 КлассB+
Бизнес-центр «Салют»

Аренда офиса 364 м²

Москва, Сущёвская улица, 27 с1

Менделеевская → 269 м
~ 3 мин
Арендная плата в месяц 1 628 900 ₽ 53 700 ₽/м² в год С учётом НДС

Презентация по предложению

Собираете информацию? Получите подробную презентацию в удобном формате!

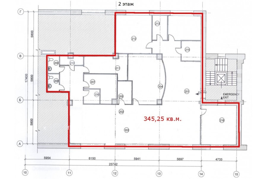
Площадь 364 м²
Состояние Готово к въезду
Планировка Открытая
Этаж 2

Описание

Преимущества
  • Класс B+
  • Пешком от метро
  • Кондиционирование и вентиляция
  • Свой паркинг
  • Развитая инфраструктура
Сдается в долгосрочную прямую аренду офисное помещение класса B+ площадью 364 квадр. метров в бизнес-центре "Салют".

Москва, ЦАО, Сущёвская улица, 27 с1

Удобное расположение здания для всех видов транспорта:
- Возможность аренды парковочных мест.
- Ближайшее метро: буквально 3 мин пешком от метро "Менделеевская"

Офис класса B+:
- Помещение с отделкой, готово к въезду
- Вентиляция: Приточно-вытяжная вентиляция
- Кондиционирование: центральное
- Круглосуточная охрана и видеонаблюдение
- Развитая инфраструктура внутри здания


Если данное предложение подходит Вашему запросу:

1. Мы подготовили презентацию с информацией о помещении, фотографиями и планировкой, чтобы Вы могли поделиться ей с коллегами или руководством. Попросите об этом нашего менеджера по телефону в объявлении.
2. Мы готовы ответить на любые Ваши вопросы о помещении и коммерческих условиях аренды.
3. Покажем помещение в удобное для Вас время с менеджером в здании, при необходимости подготовим виртуальный тур.

Вы можете позвонить нам в любое время. Мы ответим на Ваши вопросы по будням до 19:00, а поздно вечером или в выходные зафиксируем Ваш контакт и перезвоним в рабочее время.

Коммерческие условия

Арендная плата 757 760 ₽
Ставка арендной платы 53 700 ₽ м²/год
Эксплуатационные расходы Включены в ставку
Налоги С учётом НДС
Тип договора Прямая аренда
Срок договора Долгосрочный
Размер платежей 1 месяц
Обеспечительный платеж 2 месяц
Статус Сдан

О бизнес-центре

Класс B+
Этажность 6
Лифты Есть
Общая площадь 9 072 м²
Год постройки 2007
Паркинг Наземный
Вентиляция приточно-вытяжная
Кондиционирование центральное
Телекоммуникации Интернет/Телефония

Расположение

Подробная презентацию по предложению

Собираете информацию? Получите подробную презентацию в удобном формате, чтобы обсудить вариант с коллегами или переслать руководству!

Похожие предложения в других зданиях

БЕЗ КОМИССИИ ID: 1324809 Рейтинг7.9 КлассB

Москва, Новослободская улица, 31 с2

Менделеевская → 104 м
~ 1 мин
Арендная плата в месяц 1 400 022 ₽ 53 800 ₽/м² в год С учётом НДС
Характеристики 312 м² -1 - 2 этаж Готово к въезду
Преимущества
  • Класс B
  • Пешком от метро
  • Кондиционирование и вентиляция
  • Свой паркинг

Сдаем в аренду здание под офис класса B общей площадью 312 квадр. метров. .. подробнее

>

Виртуальный тур

Презентация по предложению

Собираете информацию? Получите подробную презентацию в удобном формате!

БЕЗ КОМИССИИ ID: 1377002 Рейтинг8.4 КлассB+

Москва, улица Бутырский Вал, 68/70 с1

Савёловская → 728 м
~ 7 мин
Арендная плата в месяц 1 525 000 ₽ 50 000 ₽/м² в год С учётом НДС
Характеристики 366 м² 1 этаж Готово к въезду
Преимущества
  • Класс B+
  • Пешком от метро
  • Кондиционирование и вентиляция
  • Свой паркинг
  • Несколько провайдеров связи

Предлагаем в долгосрочную прямую аренду помещение под офис класса B+ площадью 366 кв. метров в бизнес-центре "Бейкер Плаза"... подробнее

Презентация по предложению

Собираете информацию? Получите подробную презентацию в удобном формате!

БЕЗ КОМИССИИ ID: 278549 Рейтинг5.0 КлассB

Москва, Лесная улица, 7

Белорусская → 238 м
~ 2 мин
Арендная плата в месяц 1 348 650 ₽ 48 600 ₽/м² в год С учётом НДС
Характеристики 333 м² 2 этаж Готово к въезду
Преимущества
  • Класс B
  • Пешком от метро

Сдается в долгосрочную аренду офисный блок класса B общей площадью 333 кв.м в бизнес-центре... подробнее

Презентация по предложению

Собираете информацию? Получите подробную презентацию в удобном формате!

БЕЗ КОМИССИИ ID: 1313605 Рейтинг7.7 КлассB

Москва, улица Каретный Ряд, 8

Маяковская → 946 м
~ 9 мин
Арендная плата в месяц 1 507 800 ₽ 50 400 ₽/м² в год С учётом НДС
Характеристики 359 м² 4 этаж Готово к въезду
Преимущества
  • Класс B
  • Пешком от метро
  • Кондиционирование и вентиляция

Предлагаем в долгосрочную аренду офисное помещение класса B общей площадью 359 кв. метров в бизнес-центре... подробнее

>

Виртуальный тур

Презентация по предложению

Собираете информацию? Получите подробную презентацию в удобном формате!

БЕЗ КОМИССИИ ID: 1179136 Рейтинг7.4 КлассB

Москва, Садовая-Триумфальная улица, 20 с2

Маяковская → 527 м
~ 5 мин
Арендная плата в месяц 1 301 300 ₽ 46 200 ₽/м² в год С учётом НДС
Характеристики 338 м² 2 - 3 этаж Готово к въезду
Преимущества
  • Класс B
  • Пешком от метро
  • Кондиционирование и вентиляция
  • Свой паркинг
  • Несколько провайдеров связи

Предлагаем в долгосрочную аренду офисное помещение класса B общей площадью 338 кв.м в недавно отреконструированном бизнес-центре... подробнее

Презентация по предложению

Собираете информацию? Получите подробную презентацию в удобном формате!

Посмотреть все похожие предложения
Отнеситесь рационально к процессу поиска нового офиса!

Просто ответьте на 3 вопроса, и наши специалисты сами предложат оптимальные варианты под ваш бюджет

.