8.2
Смотреть все фото
БЕЗ КОМИССИИ ID: 239937 Рейтинг8.1 КлассB+
Бизнес-центр «Салют»

Аренда офиса 742 м²

Москва, Сущёвская улица, 27 с1

Менделеевская → 269 м
~ 3 мин
Арендная плата в месяц 3 654 300 ₽ 59 100 ₽/м² в год С учётом НДС

Презентация по предложению

Собираете информацию? Получите подробную презентацию в удобном формате!

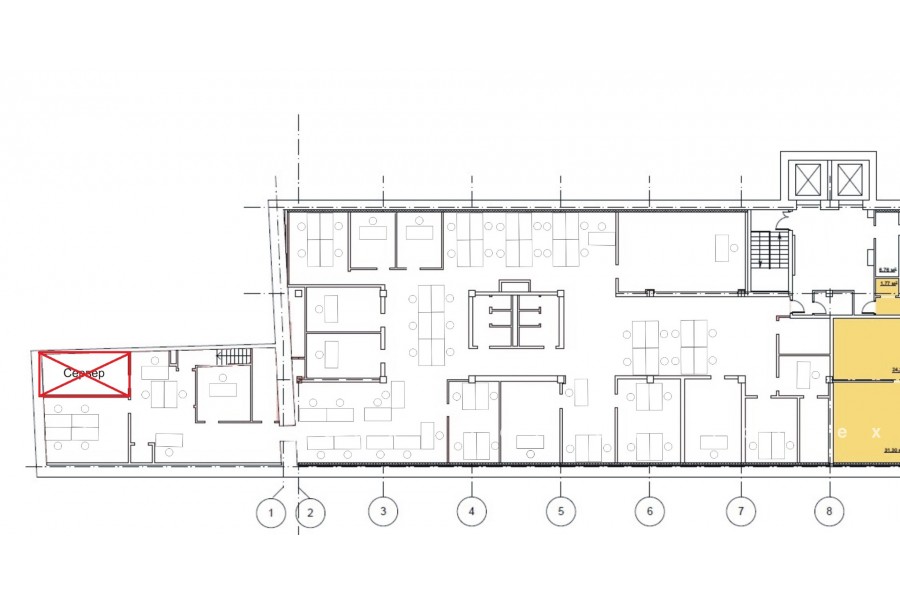
Площадь 742 м²
Состояние Готово к въезду
Планировка Смешанная
Этаж 6

Описание

Преимущества
  • Класс B+
  • Пешком от метро
  • Кондиционирование и вентиляция
  • Свой паркинг
  • Развитая инфраструктура
Предлагается в прямую аренду офис класса B+ общей площадью 742 кв.м в бизнес-центре "Салют".

Москва, ЦАО, Сущёвская улица, 27 с1

Удобное расположение здания для всех видов транспорта:
- Возможность аренды парковочных мест.
- Ближайшее метро: буквально 3 мин пешком от метро "Менделеевская"

Офис класса B+:
- Помещение с отделкой, готово к въезду
- Вентиляция: Приточно-вытяжная вентиляция
- Кондиционирование: центральное
- Круглосуточная охрана и видеонаблюдение
- Развитая инфраструктура внутри здания

Возможность заключения контракта в соответствии с 44ФЗ по госзакупкам.

Что еще можно узнать о предложении:

1. Мы подготовили презентацию с информацией о помещении, фотографиями и планировкой, чтобы Вы могли поделиться ей с коллегами или руководством. Попросите об этом нашего менеджера по телефону в объявлении.
2. Ответим на любые Ваши вопросы, готовы обсуждать любые предложения по коммерческим условиям аренды помещения.
3. Оперативно организуем просмотр помещения с менеджерами на объекте или подготовим виртуальный тур.

Звоните нам в любое время. По будням мы сможем ответить на Ваши вопросы до 19:00. В выходные или вечернее время мы передадим Ваш контакт нашему менеджеру по аренде.

Коммерческие условия

Арендная плата 1 382 980 ₽
Ставка арендной платы 59 100 ₽ м²/год
Эксплуатационные расходы Включены в ставку
Налоги С учётом НДС
Тип договора Прямая аренда
Срок договора Долгосрочный
Размер платежей 1 месяц
Обеспечительный платеж 2 месяц
Статус Сдан

О бизнес-центре

Класс B+
Этажность 6
Лифты Есть
Общая площадь 9 072 м²
Год постройки 2007
Паркинг Наземный
Вентиляция приточно-вытяжная
Кондиционирование центральное
Телекоммуникации Интернет/Телефония

Расположение

Подробная презентацию по предложению

Собираете информацию? Получите подробную презентацию в удобном формате, чтобы обсудить вариант с коллегами или переслать руководству!

Похожие предложения в других зданиях

БЕЗ КОМИССИИ ID: 1377156 Рейтинг8.8 КлассА

Москва, Краснопролетарская улица, 36

Новослободская → 412 м
~ 4 мин
Арендная плата в месяц 4 070 733 ₽ 67 100 ₽/м² в год С учётом НДС
Характеристики 728 м² 3 этаж Готово к въезду
Преимущества
  • Класс А
  • Пешком от метро
  • Кондиционирование и вентиляция
  • Свой паркинг
  • Развитая инфраструктура

Сдается в прямую аренду офис класса А площадью 728 квадратных метров в бизнес-центре "Амбер Плаза"... подробнее

>

Виртуальный тур

Презентация по предложению

Собираете информацию? Получите подробную презентацию в удобном формате!

БЕЗ КОМИССИИ ID: 1328876 Рейтинг7.8 КлассB+

Москва, Лесная улица, 43

Белорусская → 559 м
~ 6 мин
Арендная плата в месяц 3 993 333 ₽ 59 900 ₽/м² в год С учётом НДС
Характеристики 800 м² 4 этаж Готово к въезду
Преимущества
  • Класс B+
  • Пешком от метро
  • Кондиционирование и вентиляция
  • Свой паркинг
  • Несколько провайдеров связи
  • Развитая инфраструктура

Предлагается в долгосрочную прямую аренду помещение под офис класса B+ площадью 800 квадратных метров в историческом недавно отреконструированном бизнес-центре... подробнее

Презентация по предложению

Собираете информацию? Получите подробную презентацию в удобном формате!

БЕЗ КОМИССИИ ID: 1380181 Рейтинг7.8 КлассB+

Москва, Лесная улица, 43

Белорусская → 559 м
~ 6 мин
Арендная плата в месяц 3 843 744 ₽ 62 800 ₽/м² в год С учётом НДС
Характеристики 735 м² 1 - 6 этаж Готово к въезду
Преимущества
  • Класс B+
  • Пешком от метро
  • Кондиционирование и вентиляция
  • Свой паркинг
  • Несколько провайдеров связи
  • Развитая инфраструктура

Предлагаем в долгосрочную аренду офис класса B+ площадью 735 квадр. метров в историческом недавно отреконструированном бизнес-центре... подробнее

Презентация по предложению

Собираете информацию? Получите подробную презентацию в удобном формате!

БЕЗ КОМИССИИ ID: 1374623 Рейтинг7.8 КлассB+

Москва, Лесная улица, 43

Белорусская → 559 м
~ 6 мин
Арендная плата в месяц 3 161 684 ₽ 56 000 ₽/м² в год С учётом НДС
Характеристики 678 м² 6 - 7 этаж Готово к въезду
Преимущества
  • Класс B+
  • Пешком от метро
  • Кондиционирование и вентиляция
  • Свой паркинг
  • Несколько провайдеров связи
  • Развитая инфраструктура

Предлагаем в прямую аренду офисный блок класса B+ общей площадью 678 квадр. метров в историческом недавно отреконструированном бизнес-центре... подробнее

Презентация по предложению

Собираете информацию? Получите подробную презентацию в удобном формате!

БЕЗ КОМИССИИ ID: 183017 Рейтинг9.0 КлассА

Москва, улица Правды, 26

Савёловская → 629 м
~ 6 мин
Арендная плата в месяц 4 201 125 ₽ 65 900 ₽/м² в год С учётом НДС
Характеристики 765 м² 7 этаж Готово к въезду
Преимущества
  • Класс А
  • Пешком от метро
  • Кондиционирование и вентиляция
  • Свой паркинг
  • Несколько провайдеров связи
  • Развитая инфраструктура

Предлагается в прямую аренду офисное помещение класса А общей площадью 765 кв.м в недавно отреконструированном бизнес-центре "Северное сияние"... подробнее

Презентация по предложению

Собираете информацию? Получите подробную презентацию в удобном формате!

Посмотреть все похожие предложения
Отнеситесь рационально к процессу поиска нового офиса!

Просто ответьте на 3 вопроса, и наши специалисты сами предложат оптимальные варианты под ваш бюджет

.