8.2
Смотреть все фото
БЕЗ КОМИССИИ ID: 280900 Рейтинг6.6 КлассB
Бизнес-центр «Щелковское 5»

Аренда офиса 1240 м²

Москва, Щелковское шоссе, 5

Локомотив → 932 м
~ 11 мин
Арендная плата в месяц 2 149 300 ₽ 20 800 ₽/м² в год С учётом НДС

Презентация по предложению

Собираете информацию? Получите подробную презентацию в удобном формате!

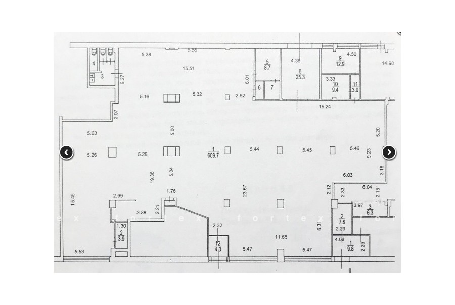
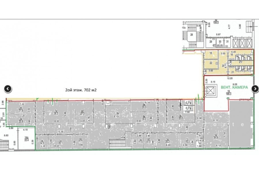
Площадь 1 240 м²
Состояние Отделка под арендатора
Планировка Смешанная
Этаж 1 - 2

Описание

Преимущества
  • Класс B
  • Пешком от метро
  • Кондиционирование и вентиляция
  • Свой паркинг
  • Развитая инфраструктура
Предлагается в прямую аренду офисное помещение класса B общей площадью 1240 квадр. метров в бизнес-центре.

Москва, ВАО, Щелковское шоссе, 5

Удобная локация здания:
- Автомобиль: близость транспортных магистралей, таких как Большая Черкизовская улица, Щелковское шоссе и других.
- Возможность аренды парковочных мест.
- Ближайшее метро: от метро "Локомотив" всего 9 мин пешком

Офис класса B:
- Возможность ремонта по предпочтениям арендатора
- Кондиционирование: центральное


Если предложение предварительно Вам подходит:

1. Мы подготовили презентацию с информацией о помещении, фотографиями и планировкой, чтобы Вы могли поделиться ей с коллегами или руководством. Попросите об этом нашего менеджера по телефону в объявлении.
2. Задайте любые вопросы менеджеру по телефону, готовы обсуждать любые предложения по финансовым условиям договора аренды.
3. Покажем помещение в удобное для Вас время с менеджером в здании, при необходимости подготовим виртуальный тур.

Вы можете позвонить нам в любое время. Мы ответим на Ваши вопросы по будням до 19:00, а поздно вечером или в выходные зафиксируем Ваш контакт и перезвоним в рабочее время.

Коммерческие условия

Арендная плата 1 128 400 ₽
Ставка арендной платы 20 800 ₽ м²/год
Эксплуатационные расходы Включены в ставку
Налоги С учётом НДС
Тип договора Прямая аренда
Срок договора от 11 месяцев
Размер платежей 1 месяц
Обеспечительный платеж 1 месяц
Статус Сдан

О бизнес-центре

Класс B
Этажность 8
Лифты Есть
Общая площадь 27 000 м²
Год постройки 1976
Паркинг Наземный
Вентиляция естественная
Кондиционирование центральное
Телекоммуникации Интернет/Телефония

Расположение

Подробная презентацию по предложению

Собираете информацию? Получите подробную презентацию в удобном формате, чтобы обсудить вариант с коллегами или переслать руководству!

Похожие предложения в других зданиях

БЕЗ КОМИССИИ ID: 43944 Рейтинг8.3 КлассB+

Москва, Ткацкая улица, 48а

Измайлово → 386 м
~ 4 мин
Арендная плата в месяц 1 650 000 ₽ 18 000 ₽/м² в год С учётом НДС
Характеристики 1 100 м² 1 этаж Готово к въезду
Преимущества
  • Класс B+
  • Пешком от метро
  • Кондиционирование и вентиляция
  • Свой паркинг

Сдается в аренду офисное помещение класса B+ площадью 1100 квадр. метров в историческом бизнес-центре... подробнее

Презентация по предложению

Собираете информацию? Получите подробную презентацию в удобном формате!

БЕЗ КОМИССИИ ID: 161840 Рейтинг4.3 КлассB

Москва, Электрозаводская улица, 20

Электрозаводская → 954 м
~ 10 мин
Арендная плата в месяц 2 068 733 ₽ 21 700 ₽/м² в год С учётом НДС
Характеристики 1 144 м² 1 - 3 этаж Готово к въезду
Преимущества
  • Класс B
  • Пешком от метро
  • Кондиционирование и вентиляция
  • Развитая инфраструктура

Предлагаем в долгосрочную аренду офис класса B площадью 1144 квадр. метров в историческом бизнес-центре... подробнее

Презентация по предложению

Собираете информацию? Получите подробную презентацию в удобном формате!

БЕЗ КОМИССИИ ID: 12293 Рейтинг7.5 КлассB+

Москва, Большая Семеновская улица, 32 с1

Электрозаводская → 377 м
~ 4 мин
Арендная плата в месяц 1 875 000 ₽ 18 000 ₽/м² в год С учётом НДС
Характеристики 1 250 м² 5 этаж Готово к въезду
Преимущества
  • Класс B+
  • Пешком от метро
  • Кондиционирование и вентиляция
  • Свой паркинг
  • Развитая инфраструктура

Сдается в прямую аренду офис класса B+ общей площадью 1250 квадратных метров в недавно отреконструированном бизнес-центре "Республиканский"... подробнее

Презентация по предложению

Собираете информацию? Получите подробную презентацию в удобном формате!

Посмотреть все похожие предложения
Отнеситесь рационально к процессу поиска нового офиса!

Просто ответьте на 3 вопроса, и наши специалисты сами предложат оптимальные варианты под ваш бюджет

.