8.2
Смотреть все фото
БЕЗ КОМИССИИ ID: 298264 Рейтинг7.5 КлассB+
Бизнес-центр «Щепкинский»

Аренда офиса 6577 м²

Москва, улица Щепкина, 51/4 с2

Проспект Мира → 660 м
~ 7 мин
Арендная плата в месяц 14 798 200 ₽ 27 000 ₽/м² в год С учётом НДС

Презентация по предложению

Собираете информацию? Получите подробную презентацию в удобном формате!

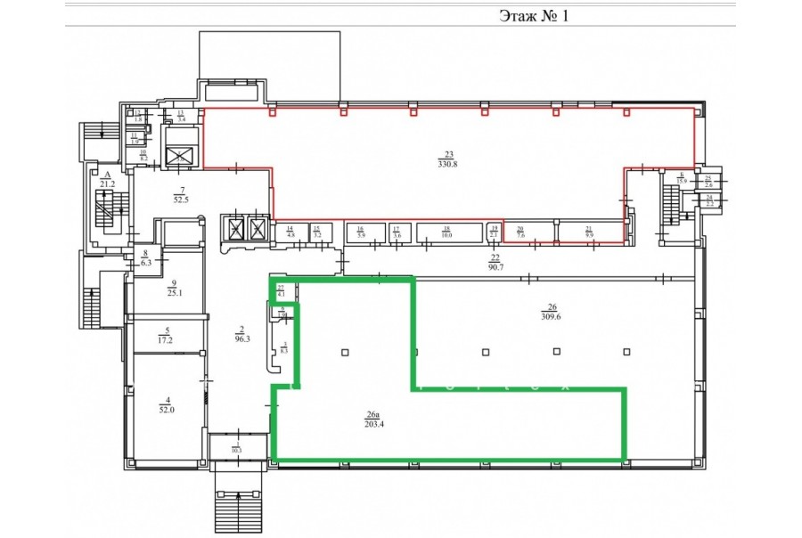
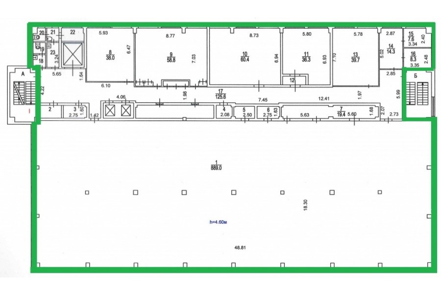
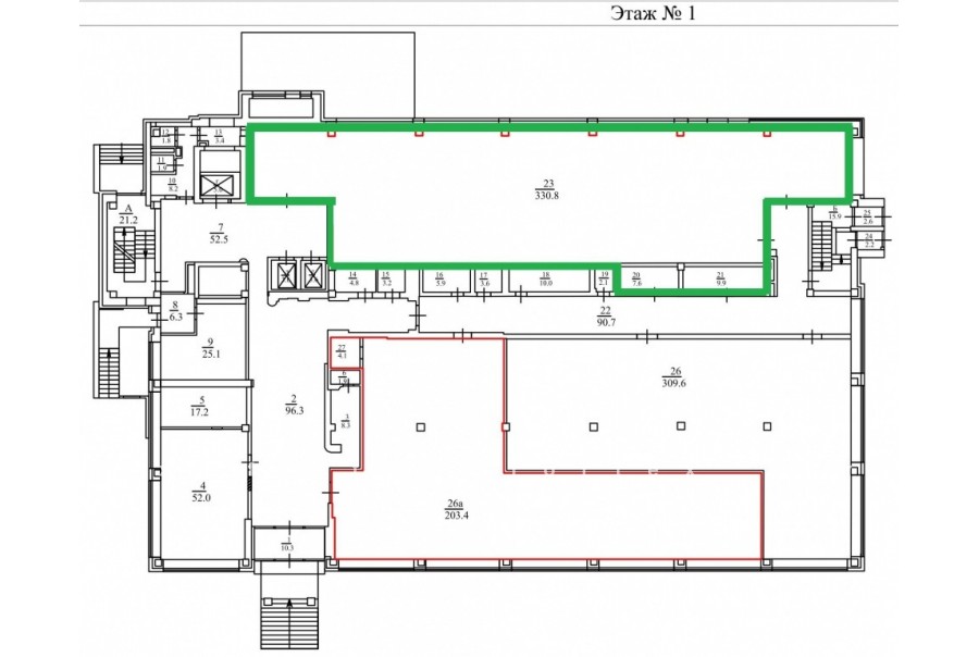
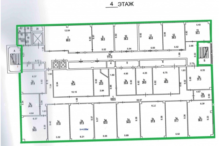
Площадь 6 577 м²
Состояние Готово к въезду
Планировка Смешанная
Этаж 1 - 6

Описание

Преимущества
  • Класс B+
  • Пешком от метро
  • Кондиционирование и вентиляция
  • Свой паркинг
Предлагается в долгосрочную аренду помещение под офис класса B+ общей площадью 6577 кв. метров в недавно отреконструированном бизнес-центре "Щепкинский".

Москва, ЦАО, улица Щепкина, 51 Удобная локация здания:
- Автомобиль: близость транспортных магистралей, таких как Третье Транспортное Кольцо, Проспект Мира и других.
- Возможность аренды парковочных мест.
- Ближайшее метро: от метро "Проспект Мира" всего 6 мин пешком

Офис класса B+:
- Помещение готово к въезду
- Вентиляция: Приточно-вытяжная вентиляция
- Кондиционирование: сплит-системы
- Круглосуточная охрана и видеонаблюдение

Возможность заключения контракта в соответствии с 44ФЗ по госзакупкам.

Если предложение предварительно Вам подходит:

1. Мы подготовили презентацию с информацией о помещении, фотографиями и планировкой, чтобы Вы могли поделиться ей с коллегами или руководством. Попросите об этом нашего менеджера по телефону в объявлении.
2. Ответим на любые Ваши вопросы, готовы обсуждать любые предложения по коммерческим условиям аренды помещения.
3. Проводим показы ежедневно, договоримся на удобное для Вас время. Можем организовать виртуальный тур по офисному блоку.

Звоните нам в любое время. По будням мы сможем ответить на Ваши вопросы до 19:00. В выходные или вечернее время мы передадим Ваш контакт нашему менеджеру по аренде.

Коммерческие условия

Арендная плата 14 798 250 ₽
Ставка арендной платы 27 000 ₽ м²/год
Эксплуатационные расходы Включены в ставку
Налоги С учётом НДС
Тип договора Прямая аренда
Срок договора от 11 месяцев
Размер платежей 1 месяц
Обеспечительный платеж 1 месяц
Статус Сдан

О бизнес-центре

Класс B+
Этажность 6
Лифты Есть
Общая площадь 7 010 м²
Год постройки 1980
Паркинг Наземный
Вентиляция приточно-вытяжная
Кондиционирование сплит-системы
Телекоммуникации Интернет/Телефония

Расположение

Подробная презентацию по предложению

Собираете информацию? Получите подробную презентацию в удобном формате, чтобы обсудить вариант с коллегами или переслать руководству!

Похожие предложения в других зданиях

БЕЗ КОМИССИИ ID: 48095 Рейтинг8.8 КлассА

Москва, Олимпийский проспект, 16 с5

Проспект Мира → 886 м
~ 9 мин
Арендная плата в месяц 12 953 250 ₽ 27 000 ₽/м² в год С учётом НДС
Характеристики 5 757 м² 2 этаж Под отделку
Преимущества
  • Класс А
  • Пешком от метро
  • Кондиционирование и вентиляция
  • Свой паркинг
  • Развитая инфраструктура

Сдаем в долгосрочную прямую аренду офисный блок класса А общей площадью 5757 кв. метров в бизнес-центре "Олимпик Холл"... подробнее

Презентация по предложению

Собираете информацию? Получите подробную презентацию в удобном формате!

БЕЗ КОМИССИИ ID: 637635 Рейтинг8.3 КлассА

Москва, проспект Мира, 40

Проспект Мира → 40 м
~ 0 мин
Арендная плата в месяц 15 000 000 ₽ 30 000 ₽/м² в год С учётом НДС
Характеристики 6 000 м² -1 - 9 этаж Готово к въезду
Преимущества
  • Класс А
  • Пешком от метро
  • Кондиционирование и вентиляция
  • Развитая инфраструктура

Предлагается в долгосрочную прямую аренду офисное помещение класса А общей площадью 6000 квадратных метров в недавно отреконструированном бизнес-центре "Garden Mir"... подробнее

Презентация по предложению

Собираете информацию? Получите подробную презентацию в удобном формате!

БЕЗ КОМИССИИ ID: 222386 Рейтинг8.1 КлассB

Москва, Банный переулок, 9

Проспект Мира → 820 м
~ 8 мин
Арендная плата в месяц 12 197 267 ₽ 23 600 ₽/м² в год С учётом НДС
Характеристики 6 202 м² 1 - 3 этаж Готово к въезду
Преимущества
  • Класс B
  • Пешком от метро
  • Кондиционирование и вентиляция
  • Свой паркинг

Собственник сдает в прямую аренду помещение под офис класса B площадью 6202 квадратных метров в бизнес-центре... подробнее

Презентация по предложению

Собираете информацию? Получите подробную презентацию в удобном формате!

БЕЗ КОМИССИИ ID: 1139815 Рейтинг8.1 КлассB+

Москва, 2-я Ямская улица, 4

Марьина Роща → 612 м
~ 6 мин
Арендная плата в месяц 12 500 000 ₽ 25 000 ₽/м² в год С учётом НДС
Характеристики 6 000 м² 1 - 7 этаж Готово к въезду
Преимущества
  • Класс B+
  • Пешком от метро
  • Кондиционирование и вентиляция
  • Свой паркинг

Собственник сдает в долгосрочную аренду офисное помещение класса B+ площадью 6000 кв. метров в бизнес-центре... подробнее

Презентация по предложению

Собираете информацию? Получите подробную презентацию в удобном формате!

БЕЗ КОМИССИИ ID: 261546 Рейтинг7.7 КлассB

Москва, Новослободская улица, 45Б

Менделеевская → 364 м
~ 4 мин
Арендная плата в месяц 13 333 333 ₽ 25 000 ₽/м² в год С учётом НДС
Характеристики 6 400 м² 1 - 5 этаж Готово к въезду
Преимущества
  • Класс B
  • Пешком от метро
  • Кондиционирование и вентиляция
  • Свой паркинг
  • Несколько провайдеров связи

Сдаем в долгосрочную аренду помещение под офис класса B общей площадью 6400 квадр. метров в историческом недавно отреконструированном бизнес-центре "Новослободский Loft"... подробнее

Презентация по предложению

Собираете информацию? Получите подробную презентацию в удобном формате!

Посмотреть все похожие предложения
Отнеситесь рационально к процессу поиска нового офиса!

Просто ответьте на 3 вопроса, и наши специалисты сами предложат оптимальные варианты под ваш бюджет

.