8.2
Смотреть все фото
БЕЗ КОМИССИИ ID: 1325112 Рейтинг9.0 КлассB
Бизнес-центр «Щука»

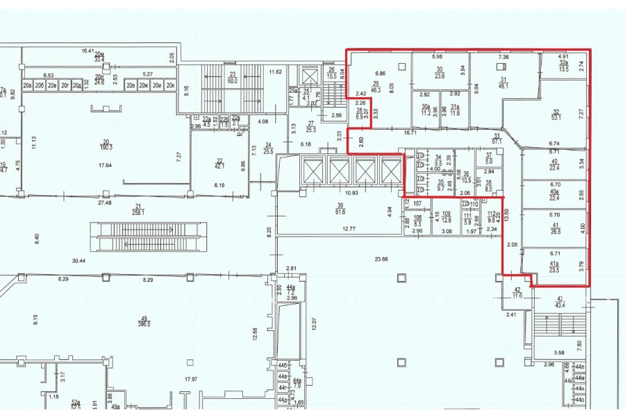
Аренда офиса 420 м²

Москва, Щукинская улица, 42

Щукинская → 160 м
~ 2 мин
Арендная плата в месяц 1 250 000 ₽ 35 700 ₽/м² в год С учётом НДС

Презентация по предложению

Собираете информацию? Получите подробную презентацию в удобном формате!

Площадь 420 м²
Состояние Готово к въезду
Планировка Кабинетная
Этаж 3

Описание

Преимущества
  • Класс B
  • Пешком от метро
  • Кондиционирование и вентиляция
  • Свой паркинг
  • Развитая инфраструктура
Предлагается в долгосрочную прямую аренду офис класса B общей площадью 420 кв. метров в Офисно-торговом центре "Щука".

Москва, СЗАО, Щукинская улица, 42

Удобное расположение здания для всех видов транспорта:
- Автомобиль: близость транспортных магистралей, таких как Волоколамское шоссе и других.
- Возможность аренды парковочных мест.
- Ближайшее метро: буквально 2 мин пешком от метро "Щукинская"

Офис класса B:
- Помещение готово к въезду
- Вентиляция: Приточно-вытяжная вентиляция
- Кондиционирование: центральное


Если данное предложение подходит Вашему запросу:

1. Получите презентацию в течение 10 минут в Whatsapp или на почту с фотографиями и планировкой, чтобы обсудить данный вариант с коллегами или переслать руководству. Для этого позвоните по телефону, указанному в объявлении.
2. Мы готовы ответить на любые Ваши вопросы о помещении и коммерческих условиях аренды.
3. Проводим показы ежедневно, договоримся на удобное для Вас время. Можем организовать виртуальный тур по офисному блоку.

Звоните нам в любое время. По будням мы сможем ответить на Ваши вопросы до 19:00. В выходные или вечернее время мы передадим Ваш контакт нашему менеджеру по аренде.

Коммерческие условия

Арендная плата 1 249 990 ₽
Ставка арендной платы 35 700 ₽ м²/год
Эксплуатационные расходы Включены в ставку
Налоги С учётом НДС
Тип договора Прямая аренда
Срок договора от 11 месяцев
Размер платежей 1 месяц
Обеспечительный платеж 2 месяц
Статус Сдан

О бизнес-центре

Класс B
Этажность 4
Лифты Есть
Общая площадь 0 м²
Паркинг Наземный
Вентиляция приточно-вытяжная
Кондиционирование центральное
Телекоммуникации Интернет/Телефония

Расположение

Подробная презентацию по предложению

Собираете информацию? Получите подробную презентацию в удобном формате, чтобы обсудить вариант с коллегами или переслать руководству!

Похожие предложения в других зданиях

БЕЗ КОМИССИИ ID: 281452 Рейтинг7.8 КлассB+

Москва, 1-й Волоколамский проезд, 10

Панфиловская → 1.07 км
~ 11 мин
Арендная плата в месяц 998 550 ₽ 31 700 ₽/м² в год С учётом НДС
Характеристики 378 м² 1 этаж Готово к въезду
Преимущества
  • Класс B+
  • Пешком от метро
  • Кондиционирование и вентиляция
  • Свой паркинг
  • Несколько провайдеров связи
  • Развитая инфраструктура

Собственник сдает в прямую аренду офис класса B+ общей площадью 378 кв.м в бизнес-центре "Диапазон"... подробнее

>

Виртуальный тур

Презентация по предложению

Собираете информацию? Получите подробную презентацию в удобном формате!

БЕЗ КОМИССИИ ID: 1327401 Рейтинг8.0 КлассB+

Москва, Чапаевский переулок, 14

Сокол → 1.02 км
~ 10 мин
Арендная плата в месяц 1 386 667 ₽ 40 000 ₽/м² в год С учётом НДС
Характеристики 416 м² 6 этаж Готово к въезду
Преимущества
  • Класс B+
  • Пешком от метро
  • Кондиционирование и вентиляция
  • Свой паркинг
  • Несколько провайдеров связи
  • Развитая инфраструктура

Сдается в долгосрочную аренду помещение под офис класса B+ общей площадью 416 кв. метров в бизнес-центре "Сокол Плейс"... подробнее

>

Виртуальный тур

Презентация по предложению

Собираете информацию? Получите подробную презентацию в удобном формате!

БЕЗ КОМИССИИ ID: 1319733 Рейтинг8.3 КлассB+

Москва, Ленинградский проспект, 47 с2

Аэропорт → 321 м
~ 3 мин
Арендная плата в месяц 1 433 333 ₽ 40 000 ₽/м² в год С учётом НДС
Характеристики 430 м² 4 этаж Готово к въезду
Преимущества
  • Класс B+
  • Пешком от метро
  • Кондиционирование и вентиляция
  • Свой паркинг
  • Развитая инфраструктура

Сдается в прямую аренду офисный блок класса B+ общей площадью 430 квадр. метров в бизнес-центре "Авион"... подробнее

>

Виртуальный тур

Презентация по предложению

Собираете информацию? Получите подробную презентацию в удобном формате!

БЕЗ КОМИССИИ ID: 1298908 Рейтинг8.3 КлассB+

Москва, Ленинградский проспект, 47 с2

Аэропорт → 321 м
~ 3 мин
Арендная плата в месяц 1 398 833 ₽ 38 500 ₽/м² в год С учётом НДС
Характеристики 436 м² 5 этаж Готово к въезду
Преимущества
  • Класс B+
  • Пешком от метро
  • Кондиционирование и вентиляция
  • Свой паркинг
  • Развитая инфраструктура

Предлагается в прямую аренду офисный блок класса B+ общей площадью 436 квадратных метров в бизнес-центре "Авион"... подробнее

>

Виртуальный тур

Презентация по предложению

Собираете информацию? Получите подробную презентацию в удобном формате!

БЕЗ КОМИССИИ ID: 1296607 Рейтинг8.3 КлассB+

Москва, Ленинградский проспект, 47 с2

Аэропорт → 321 м
~ 3 мин
Арендная плата в месяц 1 295 250 ₽ 33 000 ₽/м² в год С учётом НДС
Характеристики 471 м² 6 этаж Готово к въезду
Преимущества
  • Класс B+
  • Пешком от метро
  • Кондиционирование и вентиляция
  • Свой паркинг
  • Развитая инфраструктура

Сдаем в долгосрочную прямую аренду офисное помещение класса B+ площадью 471 квадратных метров в бизнес-центре "Авион"... подробнее

>

Виртуальный тур

Презентация по предложению

Собираете информацию? Получите подробную презентацию в удобном формате!

Посмотреть все похожие предложения
Отнеситесь рационально к процессу поиска нового офиса!

Просто ответьте на 3 вопроса, и наши специалисты сами предложат оптимальные варианты под ваш бюджет

.