8.2
Смотреть все фото
БЕЗ КОМИССИИ ID: 1380787 Рейтинг7.5 КлассB

Москва, 2-й Рощинский проезд, 8

Ленинский проспект → 1.64 км
~ 16 мин
Арендная плата в месяц 1 796 900 ₽ 26 800 ₽/м² в год С учётом НДС

Презентация по предложению

Собираете информацию? Получите подробную презентацию в удобном формате!

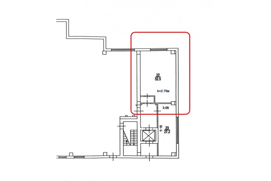
Площадь 806 м²
Состояние Готово к въезду
Планировка Смешанная
Этаж 13

Описание

Преимущества
  • Класс B
  • Пешком от метро
  • Кондиционирование и вентиляция
  • Свой паркинг
  • Несколько провайдеров связи
  • Развитая инфраструктура
Предлагается в прямую аренду офисное помещение класса B общей площадью 806 кв.м в историческом бизнес-центре "Серпуховской двор".

Москва, ЮАО, 2-й Рощинский проезд, 8

Характеристики местоположения:
- Автомобиль: близость транспортных магистралей, таких как Третье Транспортное Кольцо, Севастопольский проспект и других.
- Возможность аренды парковочных мест.
- Ближайшее метро: от метро "Ленинский проспект" можно добраться пешком или на городском транспорте

Офис класса B:
- Офис с отделкой, полностью готов к аренде
- Вентиляция: Приточно-вытяжная вентиляция
- Кондиционирование: центральное
- Презентабельный центральный ресепшн
- Круглосуточная охрана и видеонаблюдение
- Развитая инфраструктура внутри здания


Что еще можно узнать о предложении:

1. Мы отправим Вам подробную презентацию с планировкой и фотографиями в течение 10 минут после звонка, чтобы Вы могли поделиться информацией с руководством или с коллегами.
2. Мы готовы ответить на любые Ваши вопросы о помещении и коммерческих условиях аренды.
3. Оперативно организуем просмотр помещения, договоримся на любое удобное время, подготовим виртуальный тур.

Звоните нам в любое время. По будням мы сможем ответить на Ваши вопросы до 19:00. В выходные или вечернее время мы передадим Ваш контакт нашему менеджеру по аренде.

Коммерческие условия

Арендная плата 1 796 910 ₽
Ставка арендной платы 26 800 ₽ м²/год
Эксплуатационные расходы Включены в ставку
Налоги С учётом НДС
Тип договора Прямая аренда
Срок договора от 11 месяцев
Размер платежей 1 месяц
Обеспечительный платеж 1 месяц
Статус Свободен

О бизнес-центре

Класс B
Этажность 14
Лифты Есть
Общая площадь 35 340 м²
Год постройки 1960
Паркинг Наземный
Вентиляция приточно-вытяжная
Кондиционирование центральное
Телекоммуникации Интернет/Телефония

Расположение

Подробная презентацию по предложению

Собираете информацию? Получите подробную презентацию в удобном формате, чтобы обсудить вариант с коллегами или переслать руководству!

Похожие предложения в других зданиях

БЕЗ КОМИССИИ ID: 209287 Рейтинг7.7 КлассB

Москва, 5-й Донской проезд, 17

Ленинский проспект → 986 м
~ 10 мин
Арендная плата в месяц 1 784 750 ₽ 29 500 ₽/м² в год С учётом НДС
Характеристики 726 м² 8 этаж Готово к въезду
Преимущества
  • Класс B
  • Пешком от метро
  • Кондиционирование и вентиляция
  • Свой паркинг
  • Несколько провайдеров связи
  • Развитая инфраструктура

Сдаем в долгосрочную прямую аренду офисный блок класса B общей площадью 726 кв. метров в историческом недавно отреконструированном бизнес-центре... подробнее

Презентация по предложению

Собираете информацию? Получите подробную презентацию в удобном формате!

БЕЗ КОМИССИИ ID: 170086 Рейтинг6.0 КлассB

Москва, 4-й Рощинский проезд, 20 с1

Тульская → 1.26 км
~ 13 мин
Арендная плата в месяц 1 712 250 ₽ 27 000 ₽/м² в год С учётом НДС
Характеристики 761 м² 1 этаж Готово к въезду
Преимущества
  • Класс B
  • Пешком от метро
  • Кондиционирование и вентиляция
  • Свой паркинг

Сдается в прямую аренду офис класса B площадью 761 квадратных метров в недавно отреконструированном бизнес-центре... подробнее

Презентация по предложению

Собираете информацию? Получите подробную презентацию в удобном формате!

ВОЗМОЖНО ОСВОБОЖДЕНИЕ ID: 1114948 Рейтинг7.2 КлассB+

Москва, улица Вавилова, 5 к3

Площадь Гагарина → 537 м
~ 5 мин
Арендная плата в месяц 1 756 000 ₽ 24 000 ₽/м² в год С учётом НДС
Характеристики 878 м² 1 этаж Готово к въезду
Преимущества
  • Класс B+
  • Пешком от метро
  • Кондиционирование и вентиляция
  • Свой паркинг
  • Несколько провайдеров связи
  • Развитая инфраструктура

Предлагаем в прямую аренду офисное помещение класса B+ общей площадью 878 квадратных метров в бизнес-центре "Серпуховской Двор 3"... подробнее

>

Виртуальный тур

Презентация по предложению

Собираете информацию? Получите подробную презентацию в удобном формате!

БЕЗ КОМИССИИ ID: 1309334 Рейтинг6.8 КлассB

Москва, Городская улица, 8

Тульская → 844 м
~ 8 мин
Арендная плата в месяц 1 653 750 ₽ 26 500 ₽/м² в год Упрощённая система налогообложения
Характеристики 750 м² 5 этаж Готово к въезду
Преимущества
  • Класс B
  • Пешком от метро
  • Кондиционирование и вентиляция
  • Свой паркинг

Предлагаем в долгосрочную прямую аренду офис класса B площадью 750 кв.м в бизнес-центре... подробнее

Презентация по предложению

Собираете информацию? Получите подробную презентацию в удобном формате!

БЕЗ КОМИССИИ ID: 1309333 Рейтинг6.8 КлассB

Москва, Городская улица, 8

Тульская → 844 м
~ 8 мин
Арендная плата в месяц 1 653 750 ₽ 26 500 ₽/м² в год Упрощённая система налогообложения
Характеристики 750 м² 4 этаж Готово к въезду
Преимущества
  • Класс B
  • Пешком от метро
  • Кондиционирование и вентиляция
  • Свой паркинг

Предлагаем в прямую аренду помещение под офис класса B общей площадью 750 квадратных метров в бизнес-центре... подробнее

Презентация по предложению

Собираете информацию? Получите подробную презентацию в удобном формате!

Посмотреть все похожие предложения
Отнеситесь рационально к процессу поиска нового офиса!

Просто ответьте на 3 вопроса, и наши специалисты сами предложат оптимальные варианты под ваш бюджет

.