8.2

Виртуальный тур

Смотреть все фото
БЕЗ КОМИССИИ ID: 1290641 Рейтинг8.9 КлассА

Москва, Тестовская улица, 10

Международная → 357 м
~ 5 мин
Арендная плата в месяц 1 457 100 ₽ 64 000 ₽/м² в год С учётом НДС

Презентация по предложению

Собираете информацию? Получите подробную презентацию в удобном формате!

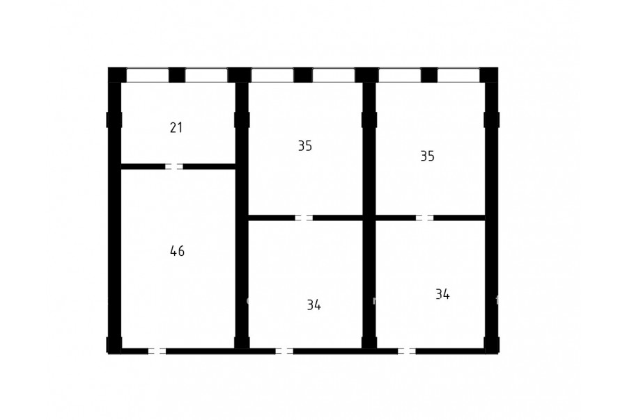
Площадь 273 м²
Состояние Готово к въезду
Планировка Кабинетная
Этаж 3

Описание

Преимущества
  • Класс А
  • Пешком от метро
  • Кондиционирование и вентиляция
  • Свой паркинг
  • Развитая инфраструктура
Предлагается в долгосрочную аренду помещение под офис класса А площадью 273 кв.м в бизнес-центре "Северная Башня".

Москва, ЦАО, Тестовская улица, 10

Удобное расположение здания для всех видов транспорта:
- Автомобиль: близость транспортных магистралей, таких как Третье Транспортное Кольцо и других.
- Возможность аренды парковочных мест.
- Ближайшее метро: от метро "Международная" всего 4 мин пешком

Офис класса А:
- Помещение готово к въезду
- Вентиляция: Приточно-вытяжная вентиляция
- Кондиционирование: центральное
- Презентабельный центральный ресепшн
- Круглосуточная охрана и видеонаблюдение
- Развитая инфраструктура внутри здания

Возможность заключения контракта в соответствии с 44ФЗ по госзакупкам.

Если данное предложение подходит Вашему запросу:

1. Получите презентацию в течение 10 минут в Whatsapp или на почту с фотографиями и планировкой, чтобы обсудить данный вариант с коллегами или переслать руководству. Для этого позвоните по телефону, указанному в объявлении.
2. Задайте любые вопросы менеджеру по телефону, готовы обсуждать любые предложения по финансовым условиям договора аренды.
3.

Звоните нам в любое время. По будням мы сможем ответить на Ваши вопросы до 19:00. В выходные или вечернее время мы передадим Ваш контакт нашему менеджеру по аренде.

Коммерческие условия

Арендная плата 1 387 750 ₽
Ставка арендной платы 64 000 ₽ м²/год
Эксплуатационные расходы Включены в ставку
Налоги С учётом НДС
Тип договора Прямая аренда
Срок договора Долгосрочный
Размер платежей 1 месяц
Обеспечительный платеж 2 месяц
Статус Сдан

О бизнес-центре

Класс А
Этажность 26
Лифты Есть
Общая площадь 129 000 м²
Год постройки 2007
Паркинг Подземный
Вентиляция приточно-вытяжная
Кондиционирование центральное
Телекоммуникации Интернет/Телефония

Расположение

Подробная презентацию по предложению

Собираете информацию? Получите подробную презентацию в удобном формате, чтобы обсудить вариант с коллегами или переслать руководству!

Похожие предложения в других зданиях

ВОЗМОЖНО ОСВОБОЖДЕНИЕ ID: 1268163 Рейтинг9.3 КлассА

Москва, Пресненская набережная, 12

Москва-Сити → 290 м
~ 3 мин
Арендная плата в месяц 1 682 991 ₽ 69 200 ₽/м² в год С учётом НДС
Характеристики 292 м² 39 этаж Готово к въезду
Преимущества
  • Класс А
  • Пешком от метро
  • Кондиционирование и вентиляция
  • Свой паркинг
  • Развитая инфраструктура

Сдается в долгосрочную аренду помещение под офис класса А площадью 292 кв. метров в бизнес-центре "Башня Федерация"... подробнее

>

Виртуальный тур

Презентация по предложению

Собираете информацию? Получите подробную презентацию в удобном формате!

ВОЗМОЖНО ОСВОБОЖДЕНИЕ ID: 1285862 Рейтинг9.3 КлассА

Москва, Пресненская набережная, 12

Москва-Сити → 290 м
~ 3 мин
Арендная плата в месяц 1 619 750 ₽ 68 200 ₽/м² в год С учётом НДС
Характеристики 285 м² 45 этаж Готово к въезду
Преимущества
  • Класс А
  • Пешком от метро
  • Кондиционирование и вентиляция
  • Свой паркинг
  • Развитая инфраструктура

Сдается в долгосрочную аренду офисное помещение класса А площадью 285 кв. метров в бизнес-центре "Башня Федерация"... подробнее

>

Виртуальный тур

Презентация по предложению

Собираете информацию? Получите подробную презентацию в удобном формате!

БЕЗ КОМИССИИ ID: 1255867 Рейтинг9.3 КлассА

Москва, Пресненская набережная, 12

Москва-Сити → 290 м
~ 3 мин
Арендная плата в месяц 1 374 975 ₽ 61 100 ₽/м² в год С учётом НДС
Характеристики 270 м² 44 этаж Готово к въезду
Преимущества
  • Класс А
  • Пешком от метро
  • Кондиционирование и вентиляция
  • Свой паркинг
  • Развитая инфраструктура

Сдается в долгосрочную прямую аренду офисное помещение класса А общей площадью 270 квадратных метров в бизнес-центре "Башня Федерация"... подробнее

>

Виртуальный тур

Презентация по предложению

Собираете информацию? Получите подробную презентацию в удобном формате!

БЕЗ КОМИССИИ ID: 175970 Рейтинг8.7 КлассА

Москва, Пресненская набережная, 2

Выставочная → 188 м
~ 2 мин
Арендная плата в месяц 1 625 000 ₽ 65 000 ₽/м² в год С учётом НДС
Характеристики 300 м² 9 этаж Под отделку
Преимущества
  • Класс А
  • Пешком от метро
  • Кондиционирование и вентиляция
  • Свой паркинг

Сдаем в прямую аренду офис класса А площадью 300 квадратных метров в бизнес-центре "Сити Поинт"... подробнее

Презентация по предложению

Собираете информацию? Получите подробную презентацию в удобном формате!

БЕЗ КОМИССИИ ID: 295079 Рейтинг9.4 КлассА

Москва, Пресненская набережная, 6 с2

Международная → 539 м
~ 5 мин
Арендная плата в месяц 1 753 092 ₽ 73 300 ₽/м² в год С учётом НДС
Характеристики 287 м² 5 этаж Готово к въезду
Преимущества
  • Класс А
  • Пешком от метро
  • Кондиционирование и вентиляция
  • Свой паркинг
  • Развитая инфраструктура

Предлагается в долгосрочную прямую аренду офисное помещение класса А общей площадью 287 квадратных метров в бизнес-центре "Империя Тауэр"... подробнее

>

Виртуальный тур

Презентация по предложению

Собираете информацию? Получите подробную презентацию в удобном формате!

Посмотреть все похожие предложения
Отнеситесь рационально к процессу поиска нового офиса!

Просто ответьте на 3 вопроса, и наши специалисты сами предложат оптимальные варианты под ваш бюджет

.