8.2

Виртуальный тур

Смотреть все фото
БЕЗ КОМИССИИ ID: 1190761 Рейтинг9.0 КлассА

Москва, улица Правды, 26

Савёловская → 629 м
~ 6 мин
Арендная плата в месяц 3 382 300 ₽ 31 500 ₽/м² в год С учётом НДС

Презентация по предложению

Собираете информацию? Получите подробную презентацию в удобном формате!

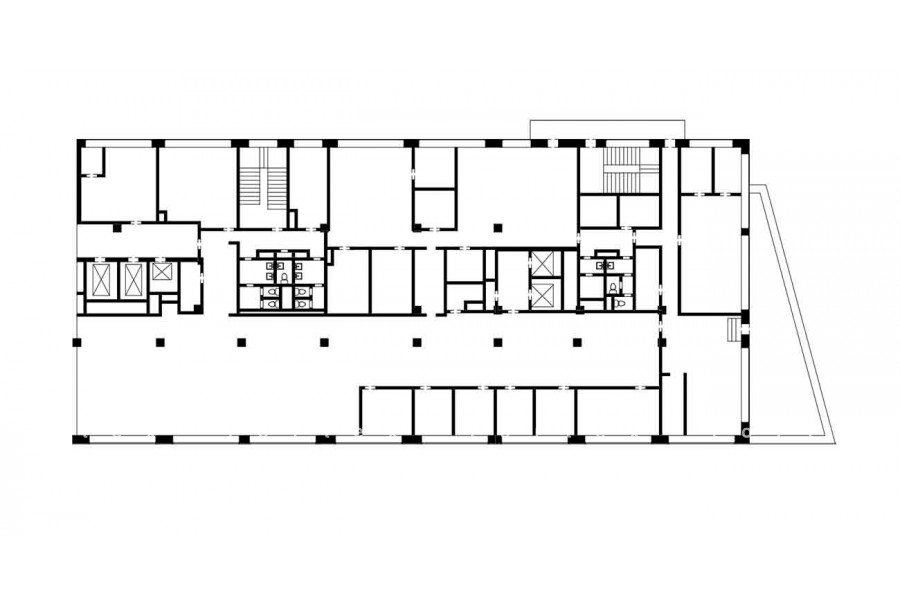
Площадь 1 287 м²
Состояние Готово к въезду
Планировка Смешанная
Этаж 11

Описание

Преимущества
  • Класс А
  • Пешком от метро
  • Кондиционирование и вентиляция
  • Свой паркинг
  • Несколько провайдеров связи
  • Развитая инфраструктура
Предлагаем в долгосрочную аренду офисное помещение класса А общей площадью 1287 квадр. метров в недавно отреконструированном бизнес-центре "Северное сияние".

Москва, САО, улица Правды, 26

Удобное расположение здания для всех видов транспорта:
- Автомобиль: близость транспортных магистралей, таких как Третье Транспортное Кольцо, Бутырская улица и других.
- Возможность аренды парковочных мест.
- Ближайшее метро: от метро "Савёловская" всего 6 мин пешком

Офис класса А:
- Помещение с отделкой, готово к въезду
- Вентиляция: Приточно-вытяжная вентиляция
- Кондиционирование: центральное
- Презентабельный центральный рецепшн
- Круглосуточная охрана и видеонаблюдение
- Развитая инфраструктура внутри здания

Возможность заключения контракта в соответствии с 44ФЗ по госзакупкам.

Что еще можно узнать о предложении:

1. Мы подготовили презентацию с информацией о помещении, фотографиями и планировкой, чтобы Вы могли поделиться ей с коллегами или руководством. Попросите об этом нашего менеджера по телефону в объявлении.
2. Ответим на любые Ваши вопросы, готовы обсуждать любые предложения по коммерческим условиям аренды помещения.
3.

Звоните нам в любое время. По будням мы сможем ответить на Ваши вопросы до 19:00. В выходные или вечернее время мы передадим Ваш контакт нашему менеджеру по аренде.

Коммерческие условия

Арендная плата 3 074 860 ₽
Ставка арендной платы 31 500 ₽ м²/год
Эксплуатационные расходы Включены в ставку
Налоги С учётом НДС
Тип договора Прямая аренда
Срок договора Долгосрочный
Размер платежей 1 месяц
Обеспечительный платеж 1 месяц
Статус Сдан

О бизнес-центре

Класс А
Этажность 15
Лифты Есть
Общая площадь 38 000 м²
Год постройки 1980
Паркинг Подземный
Вентиляция приточно-вытяжная
Кондиционирование центральное
Телекоммуникации Интернет/Телефония

Расположение

Подробная презентацию по предложению

Собираете информацию? Получите подробную презентацию в удобном формате, чтобы обсудить вариант с коллегами или переслать руководству!

Похожие предложения в других зданиях

БЕЗ КОМИССИИ ID: 1280917 Рейтинг8.4 КлассB+

Москва, улица Бутырский Вал, 68/70 с1

Савеловская → 704 м
~ 7 мин
Арендная плата в месяц 3 491 741 ₽ 32 700 ₽/м² в год С учётом НДС
Характеристики 1 282 м² 1 - 4 этаж Готово к въезду
Преимущества
  • Класс B+
  • Пешком от метро
  • Кондиционирование и вентиляция
  • Свой паркинг
  • Несколько провайдеров связи

Собственник сдает в долгосрочную прямую аренду офисное помещение класса B+ площадью 1282 кв. метров в бизнес-центре "Бейкер Плаза"... подробнее

Презентация по предложению

Собираете информацию? Получите подробную презентацию в удобном формате!

БЕЗ КОМИССИИ ID: 1374489 Рейтинг7.2 КлассB

Москва, 5-я улица Ямского Поля, 7 к2

Савёловская → 1.31 км
~ 13 мин
Арендная плата в месяц 3 365 018 ₽ 34 500 ₽/м² в год С учётом НДС
Характеристики 1 170 м² 1 - 3 этаж Готово к въезду
Преимущества
  • Класс B
  • Пешком от метро
  • Кондиционирование и вентиляция
  • Свой паркинг
  • Несколько провайдеров связи
  • Развитая инфраструктура

Предлагается в долгосрочную аренду помещение под офис класса B площадью 1170 кв. метров в историческом недавно отреконструированном бизнес-центре... подробнее

Презентация по предложению

Собираете информацию? Получите подробную презентацию в удобном формате!

ВОЗМОЖНО ОСВОБОЖДЕНИЕ ID: 294717 Рейтинг7.4 КлассB+

Москва, 3-я улица Ямского Поля, 32

Белорусская → 1.07 км
~ 11 мин
Арендная плата в месяц 3 173 500 ₽ 33 000 ₽/м² в год С учётом НДС
Характеристики 1 154 м² 6 - 7 этаж Готово к въезду
Преимущества
  • Класс B+
  • Пешком от метро
  • Кондиционирование и вентиляция
  • Свой паркинг

Предлагаем в прямую аренду офис класса B+ площадью 1154 кв.м в бизнес-центре... подробнее

Презентация по предложению

Собираете информацию? Получите подробную презентацию в удобном формате!

БЕЗ КОМИССИИ ID: 278832 Рейтинг7.0 КлассB+

Москва, Складочная улица, 1 с15

Савеловская → 678 м
~ 7 мин
Арендная плата в месяц 3 287 467 ₽ 26 800 ₽/м² в год С учётом НДС
Характеристики 1 472 м² 2 этаж Готово к въезду
Преимущества
  • Класс B+
  • Пешком от метро
  • Кондиционирование и вентиляция
  • Свой паркинг
  • Несколько провайдеров связи
  • Развитая инфраструктура

Собственник сдает в долгосрочную прямую аренду помещение под офис класса B+ общей площадью 1472 кв. метров в бизнес-центре "Савеловград"... подробнее

Презентация по предложению

Собираете информацию? Получите подробную презентацию в удобном формате!

БЕЗ КОМИССИИ ID: 79066 Рейтинг6.4 КлассB

Москва, Складочная улица, 1 с1

Савеловская → 880 м
~ 9 мин
Арендная плата в месяц 3 216 217 ₽ 33 100 ₽/м² в год С учётом НДС
Характеристики 1 166 м² 1 этаж Готово к въезду
Преимущества
  • Класс B
  • Пешком от метро
  • Кондиционирование и вентиляция
  • Свой паркинг
  • Несколько провайдеров связи

Предлагается в прямую аренду офис класса B площадью 1166 квадр. метров в бизнес-центре "Станколит"... подробнее

Презентация по предложению

Собираете информацию? Получите подробную презентацию в удобном формате!

Посмотреть все похожие предложения
Отнеситесь рационально к процессу поиска нового офиса!

Просто ответьте на 3 вопроса, и наши специалисты сами предложат оптимальные варианты под ваш бюджет

.