8.2
Смотреть все фото
БЕЗ КОМИССИИ ID: 1321015 Рейтинг7.9 КлассB
Бизнес-центр «Шаболовка 31Г»

Аренда офиса 1427 м²

Москва, улица Шаболовка, 31Г

Шаболовская → 328 м
~ 3 мин
Арендная плата в месяц 3 113 200 ₽ 26 200 ₽/м² в год С учётом НДС

Презентация по предложению

Собираете информацию? Получите подробную презентацию в удобном формате!

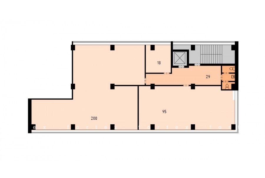
Площадь 1 427 м²
Состояние Готово к въезду
Планировка Смешанная
Этаж 4

Описание

Преимущества
  • Класс B
  • Пешком от метро
  • Кондиционирование и вентиляция
  • Свой паркинг
  • Несколько провайдеров связи
  • Развитая инфраструктура
Предлагается в прямую аренду помещение под офис класса B площадью 1427 квадр. метров в недавно отреконструированном бизнес-центре.

Москва, ЮАО, улица Шаболовка, 31Г

Удобное расположение здания для всех видов транспорта:
- Автомобиль: близость транспортных магистралей, таких как Ленинский проспект и других.
- Возможность аренды парковочных мест.
- Ближайшее метро: от метро "Шаболовская" всего 3 мин пешком

Офис класса B:
- Помещение готово к въезду
- Вентиляция: Приточно-вытяжная вентиляция
- Кондиционирование: центральное
- Круглосуточная охрана и видеонаблюдение
- Развитая инфраструктура внутри здания

Возможность заключения контракта в соответствии с 44ФЗ по госзакупкам.

Что еще можно узнать о предложении:

1. Мы подготовили презентацию с информацией о помещении, фотографиями и планировкой, чтобы Вы могли поделиться ей с коллегами или руководством. Попросите об этом нашего менеджера по телефону в объявлении.
2. Задайте любые вопросы менеджеру по телефону, готовы обсуждать любые предложения по финансовым условиям договора аренды.
3. Проводим показы ежедневно, договоримся на удобное для Вас время. Можем организовать виртуальный тур по офисному блоку.

Звоните нам в любое время. По будням мы сможем ответить на Ваши вопросы до 19:00. В выходные или вечернее время мы передадим Ваш контакт нашему менеджеру по аренде.

Коммерческие условия

Арендная плата 3 113 240 ₽
Ставка арендной платы 26 200 ₽ м²/год
Эксплуатационные расходы Включены в ставку
Налоги С учётом НДС
Тип договора Прямая аренда
Срок договора от 11 месяцев
Размер платежей 1 месяц
Обеспечительный платеж 1 месяц
Статус Свободен

О бизнес-центре

Класс B
Этажность 9
Лифты Есть
Общая площадь 95 216 м²
Паркинг Наземный
Вентиляция приточно-вытяжная
Кондиционирование центральное
Телекоммуникации Интернет/Телефония

Расположение

Подробная презентацию по предложению

Собираете информацию? Получите подробную презентацию в удобном формате, чтобы обсудить вариант с коллегами или переслать руководству!

Похожие предложения в других зданиях

БЕЗ КОМИССИИ ID: 76956 Рейтинг8.7 КлассА

Москва, улица Шаболовка, 10

Шаболовская → 599 м
~ 6 мин
Арендная плата в месяц 3 420 000 ₽ 30 000 ₽/м² в год С учётом НДС
Характеристики 1 368 м² 3 этаж Готово к въезду
Преимущества
  • Класс А
  • Пешком от метро
  • Кондиционирование и вентиляция

Собственник сдает в долгосрочную прямую аренду помещение под офис класса А площадью 1368 кв. метров в бизнес-центре "Конкорд"... подробнее

Презентация по предложению

Собираете информацию? Получите подробную презентацию в удобном формате!

ВОЗМОЖНО ОСВОБОЖДЕНИЕ ID: 297171 Рейтинг8.6 КлассB+

Москва, Малый Калужский переулок, 4 с1

Шаболовская → 764 м
~ 8 мин
Арендная плата в месяц 3 168 667 ₽ 28 000 ₽/м² в год С учётом НДС
Характеристики 1 358 м² 3 - 4 этаж Готово к въезду
Преимущества
  • Класс B+
  • Пешком от метро
  • Кондиционирование и вентиляция

Предлагаем в прямую аренду офис класса B+ площадью 1358 квадратных метров в бизнес-центре... подробнее

Презентация по предложению

Собираете информацию? Получите подробную презентацию в удобном формате!

БЕЗ КОМИССИИ ID: 268371 Рейтинг8.6 КлассB

Москва, Калужская площадь, 1 к2

Октябрьская → 528 м
~ 5 мин
Арендная плата в месяц 2 978 250 ₽ 28 500 ₽/м² в год С учётом НДС
Характеристики 1 254 м² 2 этаж Готово к въезду
Преимущества
  • Класс B
  • Пешком от метро
  • Кондиционирование и вентиляция
  • Свой паркинг

Предлагаем в долгосрочную аренду помещение под офис класса B общей площадью 1254 квадр. метров в Офисно-торговом центре "ТЦ Европа"... подробнее

Презентация по предложению

Собираете информацию? Получите подробную презентацию в удобном формате!

БЕЗ КОМИССИИ ID: 1309338 Рейтинг6.8 КлассB

Москва, Городская улица, 8

Тульская → 844 м
~ 8 мин
Арендная плата в месяц 3 307 500 ₽ 26 500 ₽/м² в год Упрощённая система налогообложения
Характеристики 1 500 м² 1 - 2 этаж Готово к въезду
Преимущества
  • Класс B
  • Пешком от метро
  • Кондиционирование и вентиляция
  • Свой паркинг

Сдается в долгосрочную прямую аренду офис класса B общей площадью 1500 кв. метров в бизнес-центре... подробнее

Презентация по предложению

Собираете информацию? Получите подробную презентацию в удобном формате!

БЕЗ КОМИССИИ ID: 7050 Рейтинг6.5 КлассB+

Москва, улица Шаболовка, 67

Шаболовская → 809 м
~ 8 мин
Арендная плата в месяц 3 054 167 ₽ 25 000 ₽/м² в год С учётом НДС
Характеристики 1 466 м² 0 - 4 этаж Готово к въезду
Преимущества
  • Класс B+
  • Пешком от метро
  • Кондиционирование и вентиляция
  • Свой паркинг
  • Несколько провайдеров связи

Предлагается в прямую аренду помещение под офис класса B+ общей площадью 1466 кв.м в недавно отреконструированном бизнес-центре... подробнее

Презентация по предложению

Собираете информацию? Получите подробную презентацию в удобном формате!

Посмотреть все похожие предложения
Отнеситесь рационально к процессу поиска нового офиса!

Просто ответьте на 3 вопроса, и наши специалисты сами предложат оптимальные варианты под ваш бюджет

.