8.2
Смотреть все фото
БЕЗ КОМИССИИ ID: 961237 Рейтинг8.3 КлассB
Бизнес-центр «Шмитовский 3 с3»

Аренда офиса 1600 м²

Москва, Шмитовский проезд, 3 с3

Улица 1905 года → 960 м
~ 10 мин
Арендная плата в месяц 6 600 000 ₽ 49 500 ₽/м² в год С учётом НДС

Презентация по предложению

Собираете информацию? Получите подробную презентацию в удобном формате!

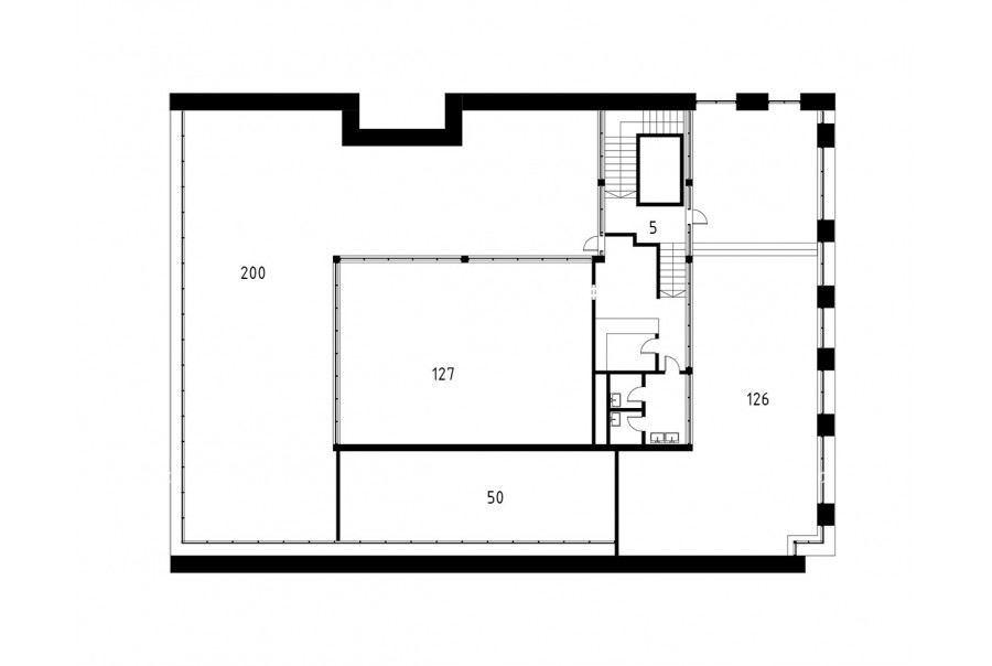
Площадь 1 600 м²
Состояние Готово к въезду
Планировка Смешанная
Этаж -1 - 3

Описание

Преимущества
  • Класс B
  • Пешком от метро
  • Кондиционирование и вентиляция
  • Свой паркинг
  • Развитая инфраструктура
Предлагаем в прямую аренду офисный блок класса B площадью 1600 квадр. метров в бизнес-центре.

Москва, ЦАО, Шмитовский проезд, 3 с3

Удобная локация здания:
- Автомобиль: близость транспортных магистралей, таких как Звенигородское шоссе и других.
- Возможность аренды парковочных мест.
- Ближайшее метро: от метро "Улица 1905 года" всего 14 мин пешком

Офис класса B:
- Помещение с отделкой, готово к въезду
- Вентиляция: Приточно-вытяжная вентиляция
- Кондиционирование: центральное
- Развитая инфраструктура внутри здания

Возможность заключения контракта в соответствии с 44ФЗ по госзакупкам.

Если предложение предварительно Вам подходит:

1. Получите презентацию в течение 10 минут в Whatsapp или на почту с фотографиями и планировкой, чтобы обсудить данный вариант с коллегами или переслать руководству. Для этого позвоните по телефону, указанному в объявлении.
2. Задайте любые вопросы менеджеру по телефону, готовы обсуждать любые предложения по финансовым условиям договора аренды.
3. Покажем помещение в удобное для Вас время с менеджером в здании, при необходимости подготовим виртуальный тур.

Вы можете позвонить нам в любое время. Мы ответим на Ваши вопросы по будням до 19:00, а поздно вечером или в выходные сможем передать Ваш контакт нашему менеджеру.

Коммерческие условия

Арендная плата 6 000 000 ₽
Ставка арендной платы 49 500 ₽ м²/год
Эксплуатационные расходы Включены в ставку
Налоги С учётом НДС
Тип договора Прямая аренда
Срок договора Долгосрочный
Размер платежей 1 месяц
Обеспечительный платеж 2 месяц
Статус Сдан

О бизнес-центре

Класс B
Этажность 5
Лифты Есть
Общая площадь 1 948 м²
Год постройки 1994
Паркинг Наземный
Вентиляция приточно-вытяжная
Кондиционирование центральное
Телекоммуникации Интернет/Телефония

Расположение

Подробная презентацию по предложению

Собираете информацию? Получите подробную презентацию в удобном формате, чтобы обсудить вариант с коллегами или переслать руководству!

Похожие предложения в других зданиях

БЕЗ КОМИССИИ ID: 1286603 Рейтинг9.1 КлассА

Москва, улица Сергея Макеева, 13

Улица 1905 года → 931 м
~ 9 мин
Арендная плата в месяц 7 334 317 ₽ 48 800 ₽/м² в год С учётом НДС
Характеристики 1 805 м² 5 - 7 этаж Готово к въезду
Преимущества
  • Класс А
  • Пешком от метро
  • Кондиционирование и вентиляция
  • Свой паркинг
  • Развитая инфраструктура

Предлагается в аренду офис класса А общей площадью 1805 кв. метров в бизнес-центре "Marr Plaza"... подробнее

Презентация по предложению

Собираете информацию? Получите подробную презентацию в удобном формате!

БЕЗ КОМИССИИ ID: 995843 Рейтинг9.1 КлассА

Москва, улица Сергея Макеева, 13

Улица 1905 года → 931 м
~ 9 мин
Арендная плата в месяц 6 589 440 ₽ 47 500 ₽/м² в год С учётом НДС
Характеристики 1 664 м² 7 этаж Готово к въезду
Преимущества
  • Класс А
  • Пешком от метро
  • Кондиционирование и вентиляция
  • Свой паркинг
  • Развитая инфраструктура

Сдаем в прямую аренду офисный блок класса А общей площадью 1664 квадр. метров в бизнес-центре "Marr Plaza"... подробнее

>

Виртуальный тур

Презентация по предложению

Собираете информацию? Получите подробную презентацию в удобном формате!

БЕЗ КОМИССИИ ID: 76496 Рейтинг8.2 КлассB+

Москва, улица Красная Пресня, 22

Краснопресненская → 541 м
~ 5 мин
Арендная плата в месяц 8 020 833 ₽ 55 000 ₽/м² в год С учётом НДС
Характеристики 1 750 м² 2 - 3 этаж Готово к въезду
Преимущества
  • Класс B+
  • Пешком от метро
  • Кондиционирование и вентиляция
  • Свой паркинг
  • Несколько провайдеров связи
  • Развитая инфраструктура

Предлагаем в прямую аренду офисный блок класса B+ площадью 1750 кв.м в бизнес-центре... подробнее

Презентация по предложению

Собираете информацию? Получите подробную презентацию в удобном формате!

БЕЗ КОМИССИИ ID: 306438 Рейтинг8.2 КлассB+

Москва, улица Красная Пресня, 22

Краснопресненская → 541 м
~ 5 мин
Арендная плата в месяц 6 402 917 ₽ 55 000 ₽/м² в год С учётом НДС
Характеристики 1 397 м² 2 - 3 этаж Готово к въезду
Преимущества
  • Класс B+
  • Пешком от метро
  • Кондиционирование и вентиляция
  • Свой паркинг
  • Несколько провайдеров связи
  • Развитая инфраструктура

Сдается в долгосрочную аренду офис класса B+ площадью 1397 кв. метров в бизнес-центре... подробнее

Презентация по предложению

Собираете информацию? Получите подробную презентацию в удобном формате!

БЕЗ КОМИССИИ ID: 270165 Рейтинг8.0 КлассB+

Москва, Малая Грузинская улица, 3

Краснопресненская → 583 м
~ 6 мин
Арендная плата в месяц 6 216 000 ₽ 48 000 ₽/м² в год С учётом НДС
Характеристики 1 554 м² 6 - 8 этаж Готово к въезду
Преимущества
  • Класс B+
  • Пешком от метро
  • Кондиционирование и вентиляция
  • Свой паркинг

Предлагается в аренду офис класса B+ площадью 1554 кв. метров в бизнес-центре "Тропикано 2"... подробнее

Презентация по предложению

Собираете информацию? Получите подробную презентацию в удобном формате!

Посмотреть все похожие предложения
Отнеситесь рационально к процессу поиска нового офиса!

Просто ответьте на 3 вопроса, и наши специалисты сами предложат оптимальные варианты под ваш бюджет

.