8.2
Смотреть все фото
БЕЗ КОМИССИИ ID: 1380976 Рейтинг8.6 КлассB+

Москва, улица Ленинская Слобода, 26 с5

Автозаводская → 677 м
~ 7 мин
Арендная плата в месяц 725 700 ₽ 37 700 ₽/м² в год С учётом НДС

Презентация по предложению

Собираете информацию? Получите подробную презентацию в удобном формате!

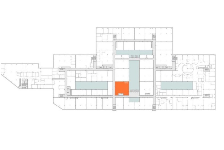
Площадь 231 м²
Состояние Готово к въезду
Планировка Смешанная
Этаж 5

Описание

Преимущества
  • Класс B+
  • Пешком от метро
  • Кондиционирование и вентиляция
  • Свой паркинг
Предлагаем в долгосрочную аренду офисное помещение класса B+ общей площадью 231 квадр. метров в недавно отреконструированном бизнес-центре "Симонов Плаза".

Москва, ЮАО, улица Ленинская Слобода, 26 с5

Удобная локация здания:
- Автомобиль: близость транспортных магистралей, таких как Проспект Андропова, Третье Транспортное Кольцо и других.
- Возможность аренды парковочных мест.
- Ближайшее метро: от метро "Автозаводская" всего 7 мин пешком

Офис класса B+:
- Офис с отделкой, полностью готов к аренде
- Вентиляция: Приточно-вытяжная вентиляция
- Кондиционирование: центральное
- Презентабельный центральный ресепшн
- Круглосуточная охрана и видеонаблюдение


Если данное предложение подходит Вашему запросу:

1. Мы отправим Вам подробную презентацию с планировкой и фотографиями в течение 10 минут после звонка, чтобы Вы могли поделиться информацией с руководством или с коллегами.
2. Задайте любые вопросы менеджеру по телефону, готовы обсуждать любые предложения по финансовым условиям договора аренды.
3. Оперативно организуем просмотр помещения, договоримся на любое удобное время, подготовим виртуальный тур.

Звоните нам в любое время. По будням мы сможем ответить на Ваши вопросы до 19:00. В выходные или вечернее время мы передадим Ваш контакт нашему менеджеру по аренде.

Коммерческие условия

Арендная плата 725 730 ₽
Ставка арендной платы 37 700 ₽ м²/год
Эксплуатационные расходы Включены в ставку
Налоги С учётом НДС
Тип договора Прямая аренда
Срок договора от 11 месяцев
Размер платежей 1 месяц
Обеспечительный платеж 1 месяц
Статус Свободен

О бизнес-центре

Класс B+
Этажность 5
Лифты Есть
Общая площадь 48 815 м²
Год постройки 2015
Паркинг Наземный
Вентиляция приточно-вытяжная
Кондиционирование центральное
Телекоммуникации Интернет/Телефония

Расположение

Подробная презентацию по предложению

Собираете информацию? Получите подробную презентацию в удобном формате, чтобы обсудить вариант с коллегами или переслать руководству!

Похожие предложения в других зданиях

БЕЗ КОМИССИИ ID: 1329033 Рейтинг8.5 КлассB+

Москва, 2-й Павелецкий проезд, 5 с1

Павелецкая → 3.73 км
~ 14 мин
Арендная плата в месяц 735 000 ₽ 36 000 ₽/м² в год С учётом НДС
Характеристики 245 м² 4 этаж Готово к въезду
Преимущества
  • Класс B+
  • Кондиционирование и вентиляция
  • Свой паркинг

Сдается в прямую аренду офисный блок класса B+ площадью 245 квадр. метров в бизнес-центре "Riverdale"... подробнее

Презентация по предложению

Собираете информацию? Получите подробную презентацию в удобном формате!

БЕЗ КОМИССИИ ID: 1285370 Рейтинг9.4 КлассА

Москва, Шарикоподшипниковская улица, 5

Дубровка → 937 м
~ 9 мин
Арендная плата в месяц 660 000 ₽ 39 600 ₽/м² в год С учётом НДС
Характеристики 200 м² 7 этаж Под отделку
Преимущества
  • Класс А
  • Пешком от метро
  • Кондиционирование и вентиляция
  • Свой паркинг

Сдается в прямую аренду помещение под офис класса А площадью 200 кв.м в новом бизнес-центре "Dominion Tower"... подробнее

Презентация по предложению

Собираете информацию? Получите подробную презентацию в удобном формате!

БЕЗ КОМИССИИ ID: 1325495 Рейтинг8.3 КлассB+

Москва, Варшавское шоссе, 9

Тульская → 959 м
~ 10 мин
Арендная плата в месяц 706 667 ₽ 40 000 ₽/м² в год С учётом НДС
Характеристики 212 м² 2 этаж Готово к въезду
Преимущества
  • Класс B+
  • Пешком от метро
  • Кондиционирование и вентиляция
  • Свой паркинг
  • Развитая инфраструктура

Предлагается в долгосрочную аренду офис класса B+ общей площадью 212 квадр. метров в историческом недавно отреконструированном бизнес-центре "Даниловская Мануфактура"... подробнее

Презентация по предложению

Собираете информацию? Получите подробную презентацию в удобном формате!

БЕЗ КОМИССИИ ID: 1374704 Рейтинг8.6 КлассА

Москва, Варшавское шоссе, 25А с6

Верхние Котлы → 651 м
~ 8 мин
Арендная плата в месяц 600 000 ₽ 36 000 ₽/м² в год С учётом НДС
Характеристики 200 м² 1 этаж Готово к въезду
Преимущества
  • Класс А
  • Пешком от метро
  • Кондиционирование и вентиляция
  • Свой паркинг
  • Несколько провайдеров связи

Сдается в долгосрочную аренду офисный блок класса А общей площадью 200 кв.м в недавно отреконструированном бизнес-центре "Чайка Плаза 10"... подробнее

>

Виртуальный тур

Презентация по предложению

Собираете информацию? Получите подробную презентацию в удобном формате!

БЕЗ КОМИССИИ ID: 1317806 Рейтинг8.2 КлассB

Москва, проспект Андропова, 11

Технопарк → 1.44 км
~ 14 мин
Арендная плата в месяц 587 125 ₽ 32 000 ₽/м² в год С учётом НДС
Характеристики 220 м² 1 этаж Под отделку
Преимущества
  • Класс B
  • Пешком от метро
  • Кондиционирование и вентиляция

Предлагаем в долгосрочную прямую аренду офисное помещение класса B общей площадью 220 квадр. метров в бизнес-центре... подробнее

Презентация по предложению

Собираете информацию? Получите подробную презентацию в удобном формате!

Посмотреть все похожие предложения
Отнеситесь рационально к процессу поиска нового офиса!

Просто ответьте на 3 вопроса, и наши специалисты сами предложат оптимальные варианты под ваш бюджет

.