8.2

Виртуальный тур

Смотреть все фото
БЕЗ КОМИССИИ ID: 1175506 Рейтинг8.4 КлассB+
Бизнес-центр «Сириус Парк»

Аренда офиса 2887 м²

Москва, Каширское шоссе, 3к2 с2

Нагатинская → 1.59 км
~ 16 мин
Арендная плата в месяц 6 616 000 ₽ 27 500 ₽/м² в год С учётом НДС

Презентация по предложению

Собираете информацию? Получите подробную презентацию в удобном формате!

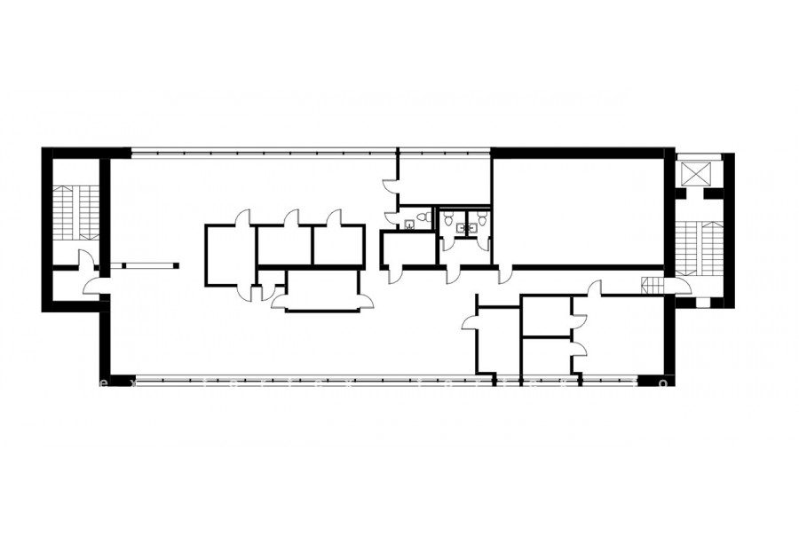
Площадь 2 887 м²
Состояние Готово к въезду
Планировка Кабинетная
Этаж 1 - 6

Описание

Преимущества
  • Класс B+
  • Пешком от метро
  • Кондиционирование и вентиляция
  • Свой паркинг
  • Несколько провайдеров связи
Сдается в долгосрочную аренду помещение под офис класса B+ общей площадью 2990 квадратных метров в новом бизнес-центре "Сириус Парк".

Москва, ЮАО, Каширское шоссе, 3к2 с2

Удобная локация здания:
- Автомобиль: близость транспортных магистралей, таких как Проспект Андропова, Каширское шоссе, Варшавское шоссе и других.
- Возможность аренды парковочных мест.
- Ближайшее метро: от метро "Нагатинская" всего 18 мин пешком

Офис класса B+:
- Помещение с отделкой, готово к въезду
- Вентиляция: Приточно-вытяжная вентиляция
- Кондиционирование: центральное


Что еще можно узнать о предложении:

1. Мы отправим Вам подробную презентацию с планировкой и фотографиями в течение 10 минут после звонка, чтобы Вы могли поделиться информацией с руководством или с коллегами.
2. Мы готовы ответить на любые Ваши вопросы о помещении и коммерческих условиях аренды.
3. Покажем помещение в удобное для Вас время с менеджером в здании, при необходимости подготовим виртуальный тур.

Звоните нам в любое время. По будням мы сможем ответить на Ваши вопросы до 19:00. В выходные или вечернее время мы передадим Ваш контакт нашему менеджеру по аренде.

Коммерческие условия

Арендная плата 6 014 580 ₽
Ставка арендной платы 27 500 ₽ м²/год
Эксплуатационные расходы Включены в ставку
Налоги С учётом НДС
Тип договора Прямая аренда
Срок договора от 11 месяцев
Размер платежей 1 месяц
Обеспечительный платеж 1 месяц
Статус Сдан

О бизнес-центре

Класс B+
Этажность 8
Лифты Есть
Общая площадь 85 000 м²
Год постройки 2014
Паркинг Наземный
Вентиляция приточно-вытяжная
Кондиционирование центральное
Телекоммуникации Интернет/Телефония

Расположение

Подробная презентацию по предложению

Собираете информацию? Получите подробную презентацию в удобном формате, чтобы обсудить вариант с коллегами или переслать руководству!

Похожие предложения в других зданиях

БЕЗ КОМИССИИ ID: 1315365 Рейтинг8.4 КлассB+

Москва, Варшавское шоссе, 26

Нагатинская → 42 м
~ 1 мин
Арендная плата в месяц 7 630 875 ₽ 31 500 ₽/м² в год С учётом НДС
Характеристики 2 907 м² 5 этаж Готово к въезду
Преимущества
  • Класс B+
  • Пешком от метро
  • Кондиционирование и вентиляция
  • Свой паркинг
  • Развитая инфраструктура

Предлагается в долгосрочную прямую аренду офис класса B+ общей площадью 2907 кв.м в недавно отреконструированном бизнес-центре "Варшавская Плаза"... подробнее

Презентация по предложению

Собираете информацию? Получите подробную презентацию в удобном формате!

БЕЗ КОМИССИИ ID: 1315363 Рейтинг8.4 КлассB+

Москва, Варшавское шоссе, 26

Нагатинская → 42 м
~ 1 мин
Арендная плата в месяц 6 562 500 ₽ 31 500 ₽/м² в год С учётом НДС
Характеристики 2 500 м² 3 этаж Готово к въезду
Преимущества
  • Класс B+
  • Пешком от метро
  • Кондиционирование и вентиляция
  • Свой паркинг
  • Развитая инфраструктура

Предлагается в долгосрочную прямую аренду помещение под офис класса B+ общей площадью 2500 квадратных метров в недавно отреконструированном бизнес-центре "Варшавская Плаза"... подробнее

Презентация по предложению

Собираете информацию? Получите подробную презентацию в удобном формате!

БЕЗ КОМИССИИ ID: 1301366 Рейтинг7.7 КлассB+

Москва, Большая Черёмушкинская улица, 13 с1

Крымская → 1.16 км
~ 12 мин
Арендная плата в месяц 5 173 875 ₽ 23 600 ₽/м² в год С учётом НДС
Характеристики 2 628 м² 4 - 5 этаж Готово к въезду
Преимущества
  • Класс B+
  • Пешком от метро
  • Кондиционирование и вентиляция
  • Свой паркинг
  • Развитая инфраструктура

Сдается в долгосрочную прямую аренду офисный блок класса B+ общей площадью 2628 кв. метров в недавно отреконструированном бизнес-центре... подробнее

>

Виртуальный тур

Презентация по предложению

Собираете информацию? Получите подробную презентацию в удобном формате!

БЕЗ КОМИССИИ ID: 269479 Рейтинг7.7 КлассB+

Москва, Варшавское шоссе, 9 с1

Тульская → 1.25 км
~ 13 мин
Арендная плата в месяц 6 500 000 ₽ 26 000 ₽/м² в год С учётом НДС
Характеристики 3 000 м² 1 - 2 этаж Под отделку
Преимущества
  • Класс B+
  • Пешком от метро
  • Кондиционирование и вентиляция

Сдаем в долгосрочную прямую аренду офис класса B+ площадью 3000 кв. метров в бизнес-центре... подробнее

Презентация по предложению

Собираете информацию? Получите подробную презентацию в удобном формате!

БЕЗ КОМИССИИ ID: 271252 Рейтинг7.7 КлассB+

Москва, Варшавское шоссе, 9 с1

Тульская → 1.25 км
~ 13 мин
Арендная плата в месяц 5 833 333 ₽ 28 000 ₽/м² в год С учётом НДС
Характеристики 2 500 м² 1 - 3 этаж Готово к въезду
Преимущества
  • Класс B+
  • Пешком от метро
  • Кондиционирование и вентиляция

Предлагается в аренду помещение под офис класса B+ общей площадью 2500 кв.м в бизнес-центре... подробнее

Презентация по предложению

Собираете информацию? Получите подробную презентацию в удобном формате!

Посмотреть все похожие предложения
Отнеситесь рационально к процессу поиска нового офиса!

Просто ответьте на 3 вопроса, и наши специалисты сами предложат оптимальные варианты под ваш бюджет

.