8.2
Смотреть все фото
БЕЗ КОМИССИИ ID: 289823 Рейтинг8.4 КлассB+
Бизнес-центр «Сириус Парк»

Аренда офиса 7993 м²

Москва, Каширское шоссе, 3к2 с2

Нагатинская → 1.59 км
~ 16 мин
Арендная плата в месяц 23 646 000 ₽ 35 500 ₽/м² в год С учётом НДС

Презентация по предложению

Собираете информацию? Получите подробную презентацию в удобном формате!

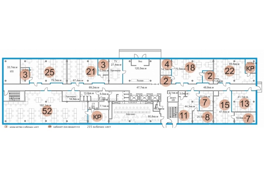
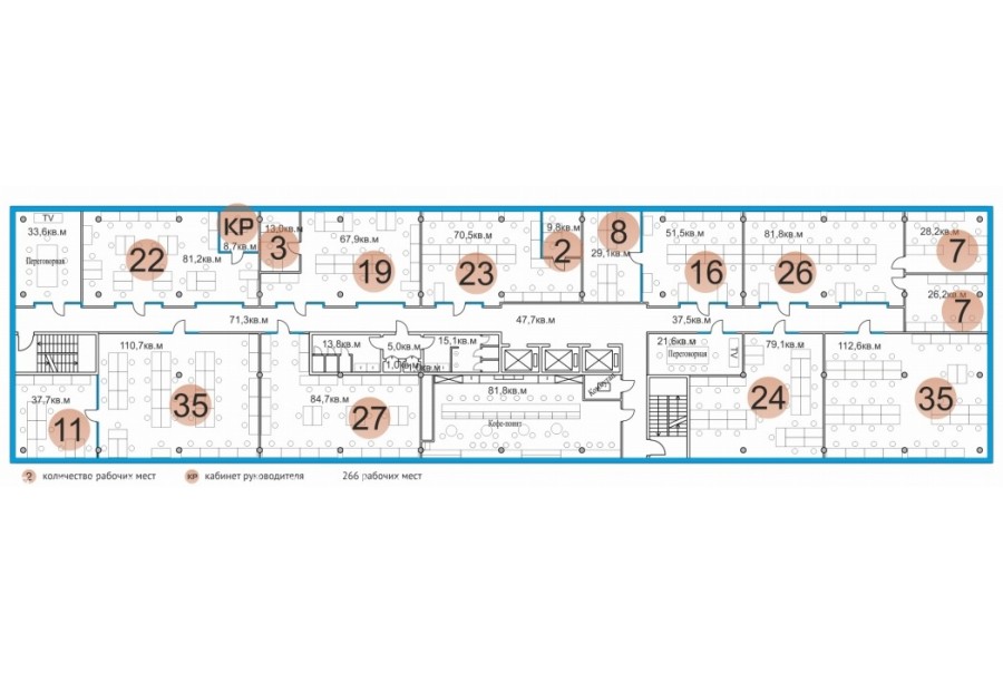
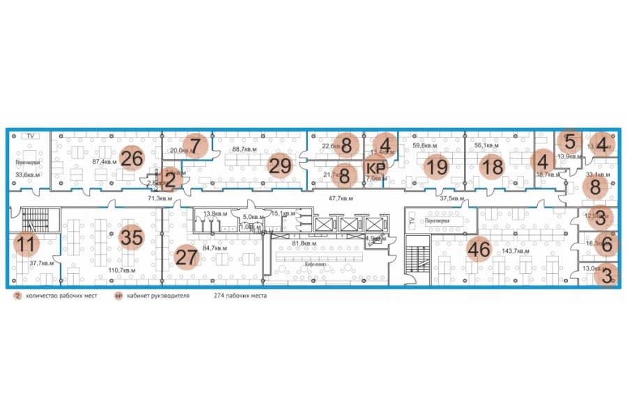
Площадь 7 993 м²
Состояние Готово к въезду
Планировка Смешанная
Этаж 1 - 6

Описание

Преимущества
  • Класс B+
  • Пешком от метро
  • Кондиционирование и вентиляция
  • Свой паркинг
  • Несколько провайдеров связи
Предлагается в прямую аренду офисное помещение класса B+ общей площадью 7993 квадр. метров в бизнес-центре "Сириус Парк".

Москва, ЮАО, Каширское шоссе, 3к2 с2

Характеристики местоположения:
- Автомобиль: близость транспортных магистралей, таких как Каширское шоссе, Варшавское шоссе, Проспект Андропова и других.
- Возможность аренды парковочных мест.
- Ближайшее метро: от метро "Нагатинская" можно добраться пешком или на городском транспорте

Офис класса B+:
- Помещение с отделкой, готово к въезду
- Вентиляция: Приточно-вытяжная вентиляция
- Кондиционирование: центральное


Если данное предложение подходит Вашему запросу:

1. Мы подготовили презентацию с информацией о помещении, фотографиями и планировкой, чтобы Вы могли поделиться ей с коллегами или руководством. Попросите об этом нашего менеджера по телефону в объявлении.
2. Мы готовы ответить на любые Ваши вопросы о помещении и коммерческих условиях аренды.
3. Оперативно организуем просмотр помещения с менеджерами на объекте или подготовим виртуальный тур.

Вы можете позвонить нам в любое время. Мы ответим на Ваши вопросы по будням до 19:00, а поздно вечером или в выходные зафиксируем Ваш контакт и перезвоним в рабочее время.

Коммерческие условия

Арендная плата 11 989 500 ₽
Ставка арендной платы 35 500 ₽ м²/год
Эксплуатационные расходы Включены в ставку
Налоги С учётом НДС
Тип договора Прямая аренда
Срок договора от 11 месяцев
Размер платежей 1 месяц
Обеспечительный платеж 2 месяц
Статус Сдан

О бизнес-центре

Класс B+
Этажность 8
Лифты Есть
Общая площадь 85 000 м²
Год постройки 2014
Паркинг Наземный
Вентиляция приточно-вытяжная
Кондиционирование центральное
Телекоммуникации Интернет/Телефония

Расположение

Подробная презентацию по предложению

Собираете информацию? Получите подробную презентацию в удобном формате, чтобы обсудить вариант с коллегами или переслать руководству!

Похожие предложения в других зданиях

БЕЗ КОМИССИИ ID: 71795 Рейтинг8.6 КлассА

Москва, 1-й Нагатинский проезд, 10 с1

Нагатинская → 1.07 км
~ 14 мин
Арендная плата в месяц 28 335 833 ₽ 37 000 ₽/м² в год С учётом НДС
Характеристики 9 190 м² 8 - 11 этаж Готово к въезду
Преимущества
  • Класс А
  • Пешком от метро
  • Кондиционирование и вентиляция
  • Свой паркинг

Предлагается в долгосрочную прямую аренду офис класса А площадью 9190 кв.м в бизнес-центре "Ньютон Плаза"... подробнее

Презентация по предложению

Собираете информацию? Получите подробную презентацию в удобном формате!

БЕЗ КОМИССИИ ID: 1294337 Рейтинг8.6 КлассА

Москва, Варшавское шоссе, 25А с6

Верхние Котлы → 651 м
~ 8 мин
Арендная плата в месяц 19 668 367 ₽ 30 800 ₽/м² в год С учётом НДС
Характеристики 7 663 м² 1 - 2 этаж Готово к въезду
Преимущества
  • Класс А
  • Пешком от метро
  • Кондиционирование и вентиляция
  • Свой паркинг
  • Несколько провайдеров связи

Собственник сдает в прямую аренду офисное помещение класса А площадью 7663 кв.м в недавно отреконструированном бизнес-центре "Чайка Плаза 10"... подробнее

Презентация по предложению

Собираете информацию? Получите подробную презентацию в удобном формате!

БЕЗ КОМИССИИ ID: 1372810 Рейтинг9.3 КлассА

Москва, проспект Лихачёва, 8

Технопарк → 630 м
~ 6 мин
Арендная плата в месяц 33 773 260 ₽ 56 700 ₽/м² в год С учётом НДС
Характеристики 7 144 м² 2 - 4 этаж Под отделку
Преимущества
  • Класс А
  • Пешком от метро
  • Новое строительство
  • Кондиционирование и вентиляция
  • Свой паркинг

Сдается в прямую аренду офисное помещение класса А общей площадью 7144 квадр. метров в современном бизнес-центре "Тесла"... подробнее

Презентация по предложению

Собираете информацию? Получите подробную презентацию в удобном формате!

БЕЗ КОМИССИИ ID: 1265418 Рейтинг8.3 КлассB+

Москва, Варшавское шоссе, 9

Тульская → 959 м
~ 10 мин
Арендная плата в месяц 25 473 676 ₽ 36 900 ₽/м² в год С учётом НДС
Характеристики 8 283 м² 3 - 4 этаж Готово к въезду
Преимущества
  • Класс B+
  • Пешком от метро
  • Кондиционирование и вентиляция
  • Свой паркинг
  • Развитая инфраструктура

Сдается в долгосрочную прямую аренду помещение под офис класса B+ площадью 8283 квадр. метров в историческом недавно отреконструированном бизнес-центре "Даниловская Мануфактура"... подробнее

Презентация по предложению

Собираете информацию? Получите подробную презентацию в удобном формате!

Посмотреть все похожие предложения
Отнеситесь рационально к процессу поиска нового офиса!

Просто ответьте на 3 вопроса, и наши специалисты сами предложат оптимальные варианты под ваш бюджет

.