8.2
Смотреть все фото
БЕЗ КОМИССИИ ID: 1282072 Рейтинг7.0 КлассА
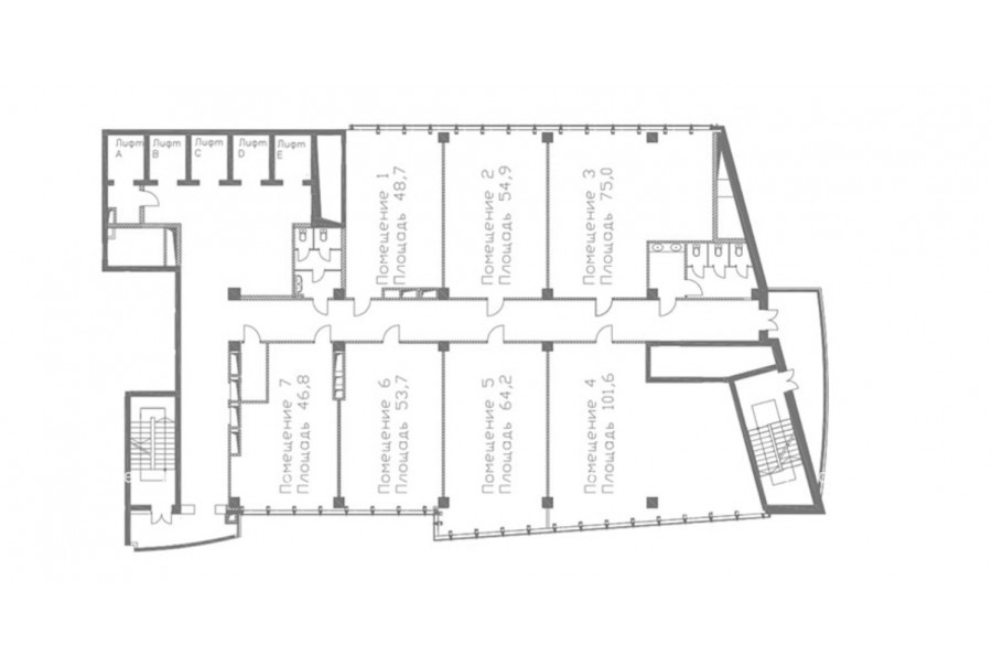
Бизнес-центр «SK-Royal»

Аренда офиса 918 м²

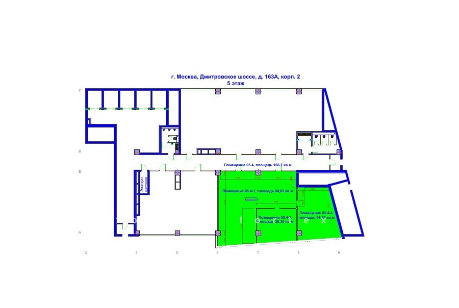
Москва, Дмитровское шоссе, 163А

Алтуфьево → 4.42 км
~ 23 мин
Арендная плата в месяц 1 293 800 ₽ 16 900 ₽/м² в год С учётом НДС

Презентация по предложению

Собираете информацию? Получите подробную презентацию в удобном формате!

Площадь 918 м²
Состояние Готово к въезду
Планировка Смешанная
Этаж 12

Описание

Преимущества
  • Класс А
  • Кондиционирование и вентиляция
  • Развитая инфраструктура
Сдается в долгосрочную аренду офисное помещение класса А общей площадью 918 квадр. метров в бизнес-центре "SK-Royal".

Москва, СВАО, Дмитровское шоссе, 163А

Характеристики местоположения:
- Ближайшее метро: метро "Алтуфьево", далее городской транспорт до здания

Офис класса А:
- Помещение с отделкой, готово к въезду
- Вентиляция: Приточно-вытяжная вентиляция
- Кондиционирование: центральное
- Презентабельный центральный рецепшн
- Круглосуточная охрана и видеонаблюдение
- Развитая инфраструктура внутри здания


Если предложение предварительно Вам подходит:

1. Мы отправим Вам подробную презентацию с планировкой и фотографиями в течение 10 минут после звонка, чтобы Вы могли поделиться информацией с руководством или с коллегами.
2. Ответим на любые Ваши вопросы, готовы обсуждать любые предложения по коммерческим условиям аренды помещения.
3. Оперативно организуем просмотр помещения, договоримся на любое удобное время, подготовим виртуальный тур.

Звоните нам в любое время. По будням мы сможем ответить на Ваши вопросы до 19:00. В выходные или вечернее время мы передадим Ваш контакт нашему менеджеру по аренде.

Коммерческие условия

Арендная плата 1 176 260 ₽
Ставка арендной платы 16 900 ₽ м²/год
Эксплуатационные расходы Включены в ставку
Налоги С учётом НДС
Тип договора Прямая аренда
Срок договора от 11 месяцев
Размер платежей 1 месяц
Обеспечительный платеж 2 месяц
Статус Сдан

О бизнес-центре

Класс А
Этажность 25
Лифты Есть
Общая площадь 22 000 м²
Паркинг Стихийный
Вентиляция приточно-вытяжная
Кондиционирование центральное
Телекоммуникации Интернет/Телефония

Расположение

Подробная презентацию по предложению

Собираете информацию? Получите подробную презентацию в удобном формате, чтобы обсудить вариант с коллегами или переслать руководству!

Похожие предложения в других зданиях

БЕЗ КОМИССИИ ID: 196273 Рейтинг7.0 КлассB

Москва, Алтуфьевское шоссе, 102к2 с1

Алтуфьево → 852 м
~ 9 мин
Арендная плата в месяц 1 502 083 ₽ 17 500 ₽/м² в год С учётом НДС
Характеристики 1 030 м² 1 - 2 этаж Готово к въезду
Преимущества
  • Класс B
  • Пешком от метро
  • Кондиционирование и вентиляция
  • Свой паркинг

Предлагается в долгосрочную аренду офисное помещение класса B площадью 1030 кв. метров в бизнес-центре... подробнее

Презентация по предложению

Собираете информацию? Получите подробную презентацию в удобном формате!

БЕЗ КОМИССИИ ID: 166009 Рейтинг7.5 КлассB

Москва, Алтуфьевское шоссе, 44

Отрадное → 2.03 км
~ 10 мин
Арендная плата в месяц 966 667 ₽ 14 500 ₽/м² в год С учётом НДС
Характеристики 800 м² 4 этаж Готово к въезду
Преимущества
  • Класс B
  • Кондиционирование и вентиляция
  • Свой паркинг
  • Развитая инфраструктура

Предлагается в долгосрочную прямую аренду офисное помещение класса B площадью 800 квадратных метров в бизнес-центре "Альтеза"... подробнее

Презентация по предложению

Собираете информацию? Получите подробную презентацию в удобном формате!

БЕЗ КОМИССИИ ID: 1301489 Рейтинг7.3 КлассB

Москва, Чермянский проезд, 7

Медведково → 1.97 км
~ 20 мин
Арендная плата в месяц 1 412 600 ₽ 16 800 ₽/м² в год С учётом НДС
Характеристики 1 009 м² 2 - 4 этаж Готово к въезду
Преимущества
  • Класс B
  • Пешком от метро
  • Кондиционирование и вентиляция
  • Свой паркинг
  • Несколько провайдеров связи
  • Развитая инфраструктура

Предлагается в прямую аренду помещение под офис класса B общей площадью 1093 квадратных метров в бизнес-центре "Чермянский"... подробнее

Презентация по предложению

Собираете информацию? Получите подробную презентацию в удобном формате!

Посмотреть все похожие предложения
Отнеситесь рационально к процессу поиска нового офиса!

Просто ответьте на 3 вопроса, и наши специалисты сами предложат оптимальные варианты под ваш бюджет

.