8.2
Смотреть все фото
БЕЗ КОМИССИИ ID: 1374375 Рейтинг7.8 КлассB+
Бизнес-центр «Слобода»

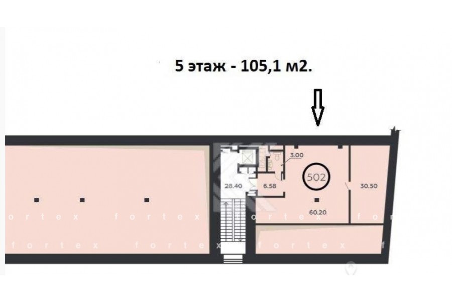
Аренда офиса 105 м²

Москва, Нижний Кисловский переулок, 5 с1

Арбатская → 284 м
~ 4 мин
Арендная плата в месяц 402 500 ₽ 46 000 ₽/м² в год С учётом НДС

Презентация по предложению

Собираете информацию? Получите подробную презентацию в удобном формате!

Площадь 105 м²
Состояние Готово к въезду
Планировка Смешанная
Этаж 5

Описание

Преимущества
  • Класс B+
  • Пешком от метро
  • Кондиционирование и вентиляция
Предлагается в долгосрочную прямую аренду офис класса B+ площадью 105 квадр. метров в историческом недавно отреконструированном бизнес-центре "Слобода".

Москва, ЦАО, Нижний Кисловский переулок, 5 с1

Удобное расположение в пределах Садового кольца:
- Ближайшее метро: буквально 4 мин пешком от метро "Арбатская"

Офис класса B+:
- Офис с отделкой, полностью готов к аренде
- Вентиляция: Приточно-вытяжная вентиляция
- Кондиционирование: центральное


Если данное предложение подходит Вашему запросу:

1. Получите презентацию в течение 10 минут в Whatsapp или на почту с фотографиями и планировкой, чтобы обсудить данный вариант с коллегами или переслать руководству. Для этого позвоните по телефону, указанному в объявлении.
2. Мы готовы ответить на любые Ваши вопросы о помещении и коммерческих условиях аренды.
3. Покажем помещение в удобное для Вас время с менеджером в здании, при необходимости подготовим виртуальный тур.

Звоните нам в любое время. По будням мы сможем ответить на Ваши вопросы до 19:00. В выходные или вечернее время мы передадим Ваш контакт нашему менеджеру по аренде.

Коммерческие условия

Арендная плата 402 500 ₽
Ставка арендной платы 46 000 ₽ м²/год
Эксплуатационные расходы Включены в ставку
Налоги С учётом НДС
Тип договора Прямая аренда
Срок договора от 11 месяцев
Размер платежей 1 месяц
Обеспечительный платеж 2 месяц
Статус Свободен

О бизнес-центре

Класс B+
Этажность 6
Лифты Есть
Общая площадь 4 200 м²
Год постройки 1912
Паркинг Стихийный
Вентиляция приточно-вытяжная
Кондиционирование центральное
Телекоммуникации Интернет/Телефония

Расположение

Подробная презентацию по предложению

Собираете информацию? Получите подробную презентацию в удобном формате, чтобы обсудить вариант с коллегами или переслать руководству!

Похожие предложения в других зданиях

БЕЗ КОМИССИИ ID: 1377245 Рейтинг7.6 КлассB+

Москва, Малый Афанасьевский переулок, 7

Арбатская → 442 м
~ 4 мин
Арендная плата в месяц 480 000 ₽ 48 000 ₽/м² в год Упрощённая система налогообложения
Характеристики 120 м² 5 этаж Готово к въезду
Преимущества
  • Класс B+
  • Пешком от метро
  • Кондиционирование и вентиляция

Предлагается в долгосрочную аренду помещение под офис класса B+ общей площадью 120 кв. метров в историческом недавно отреконструированном бизнес-центре... подробнее

Презентация по предложению

Собираете информацию? Получите подробную презентацию в удобном формате!

БЕЗ КОМИССИИ ID: 1378607 Рейтинг5.1 КлассB

Москва, переулок Сивцев Вражек, 29/16

Смоленская → 629 м
~ 6 мин
Арендная плата в месяц 375 000 ₽ 45 000 ₽/м² в год Упрощённая система налогообложения
Характеристики 100 м² 1 этаж Готово к въезду
Преимущества
  • Класс B
  • Пешком от метро
  • Кондиционирование и вентиляция
  • Развитая инфраструктура

Предлагается в прямую аренду офисное помещение класса B площадью 100 квадр. метров в историческом бизнес-центре... подробнее

Презентация по предложению

Собираете информацию? Получите подробную презентацию в удобном формате!

БЕЗ КОМИССИИ ID: 1316555 Рейтинг5.3 КлассB

Москва, улица Большая Дмитровка, 32 с1

Чеховская → 247 м
~ 2 мин
Арендная плата в месяц 437 500 ₽ 50 000 ₽/м² в год Упрощённая система налогообложения
Характеристики 105 м² 1 этаж Готово к въезду
Преимущества
  • Класс B
  • Пешком от метро
  • Кондиционирование и вентиляция
  • Развитая инфраструктура

Предлагаем в прямую аренду помещение под офис класса B площадью 105 квадратных метров в историческом бизнес-центре... подробнее

Презентация по предложению

Собираете информацию? Получите подробную презентацию в удобном формате!

Посмотреть все похожие предложения
Отнеситесь рационально к процессу поиска нового офиса!

Просто ответьте на 3 вопроса, и наши специалисты сами предложат оптимальные варианты под ваш бюджет

.