8.2
Смотреть все фото
БЕЗ КОМИССИИ ID: 512530 Рейтинг7.5 КлассB
Бизнес-центр «Слободской 6 с3»

Аренда офиса 2062 м²

Москва, Слободской переулок, 6 с3

Римская → 1.78 км
~ 18 мин
Арендная плата в месяц 945 100 ₽ 5 500 ₽/м² в год С учётом НДС

Презентация по предложению

Собираете информацию? Получите подробную презентацию в удобном формате!

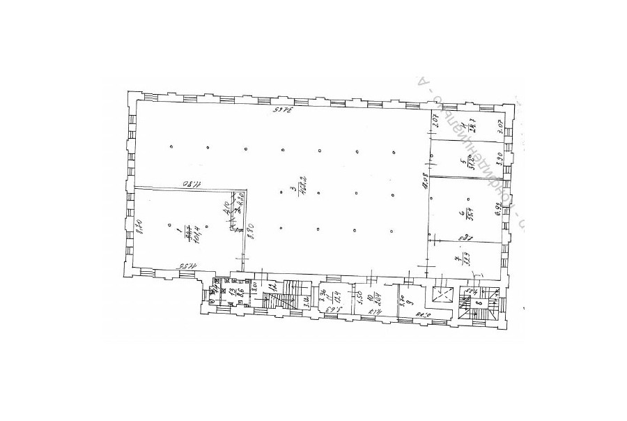
Площадь 2 062 м²
Состояние Под отделку
Планировка Открытая
Этаж 2 - 4

Описание

Преимущества
  • Класс B
  • Пешком от метро
  • Кондиционирование и вентиляция
  • Свой паркинг
Сдаем в прямую аренду офис класса B общей площадью 2062 кв. метров в бизнес-центре.

Москва, ЮВАО, Слободской переулок, 6 с3

Характеристики местоположения:
- Автомобиль: близость транспортных магистралей, таких как Третье Транспортное Кольцо и других.
- Возможность аренды парковочных мест.
- Ближайшее метро: метро "Римская", далее городской транспорт до здания

Офис класса B:
- Помещение без отделки
- Вентиляция: Приточно-вытяжная вентиляция
- Кондиционирование: сплит-системы


Если данное предложение подходит Вашему запросу:

1. Мы подготовили презентацию с информацией о помещении, фотографиями и планировкой, чтобы Вы могли поделиться ей с коллегами или руководством. Попросите об этом нашего менеджера по телефону в объявлении.
2. Мы готовы ответить на любые Ваши вопросы о помещении и коммерческих условиях аренды.
3. Оперативно организуем просмотр помещения с менеджерами на объекте или подготовим виртуальный тур.

Вы можете позвонить нам в любое время. Мы ответим на Ваши вопросы по будням до 19:00, а поздно вечером или в выходные сможем передать Ваш контакт нашему менеджеру.

Коммерческие условия

Арендная плата 945 080 ₽
Ставка арендной платы 5 500 ₽ м²/год
Эксплуатационные расходы Включены в ставку
Налоги С учётом НДС
Тип договора Прямая аренда
Срок договора от 11 месяцев
Размер платежей 1 месяц
Обеспечительный платеж 1 месяц
Статус Сдан

О бизнес-центре

Класс B
Этажность 4
Лифты Есть
Общая площадь 3 205 м²
Паркинг Наземный
Вентиляция приточно-вытяжная
Кондиционирование сплит-системы
Телекоммуникации Интернет/Телефония

Расположение

Подробная презентацию по предложению

Собираете информацию? Получите подробную презентацию в удобном формате, чтобы обсудить вариант с коллегами или переслать руководству!

Отнеситесь рационально к процессу поиска нового офиса!

Просто ответьте на 3 вопроса, и наши специалисты сами предложат оптимальные варианты под ваш бюджет

.