8.2

Виртуальный тур

Смотреть все фото
БЕЗ КОМИССИИ ID: 1206036 Рейтинг8.3 КлассB

Москва, Смирновская улица, 4А с3

Нижегородская → 1.85 км
~ 11 мин
Арендная плата в месяц 1 210 000 ₽ 13 200 ₽/м² в год С учётом НДС

Презентация по предложению

Собираете информацию? Получите подробную презентацию в удобном формате!

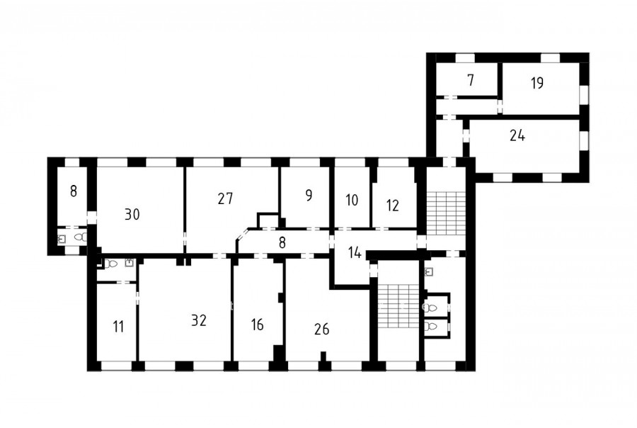
Площадь 1 100 м²
Состояние Готово к въезду
Планировка Кабинетная
Этаж 1 - 3

Описание

Преимущества
  • Класс B
  • Кондиционирование и вентиляция
  • Свой паркинг
Сдаем в долгосрочную аренду офисный блок класса B общей площадью 1100 кв.м в бизнес-центре.

Москва, ЮВАО, Смирновская улица, 4А с3

Характеристики местоположения:
- Автомобиль: близость транспортных магистралей, таких как Шоссе Энтузиастов, Рязанский проспект, Третье Транспортное Кольцо, Волгоградский проспект и других.
- Возможность аренды парковочных мест.
- Ближайшее метро: от метро "Нижегородская" можно добраться пешком или на городском транспорте

Офис класса B:
- Помещение с отделкой, готово к въезду
- Вентиляция: Приточно-вытяжная вентиляция
- Кондиционирование: центральное

Возможность заключения контракта в соответствии с 44ФЗ по госзакупкам.

Что еще можно узнать о предложении:

1. Получите презентацию в течение 10 минут в Whatsapp или на почту с фотографиями и планировкой, чтобы обсудить данный вариант с коллегами или переслать руководству. Для этого позвоните по телефону, указанному в объявлении.
2. Ответим на любые Ваши вопросы, готовы обсуждать любые предложения по коммерческим условиям аренды помещения.
3. Покажем помещение в удобное для Вас время с менеджером в здании, при необходимости подготовим виртуальный тур.

Вы можете позвонить нам в любое время. Мы ответим на Ваши вопросы по будням до 19:00, а поздно вечером или в выходные сможем передать Ваш контакт нашему менеджеру.

Коммерческие условия

Арендная плата 1 100 000 ₽
Ставка арендной платы 13 200 ₽ м²/год
Эксплуатационные расходы Включены в ставку
Налоги С учётом НДС
Тип договора Прямая аренда
Срок договора от 11 месяцев
Размер платежей 1 месяц
Обеспечительный платеж 1 месяц
Статус Сдан

О бизнес-центре

Класс B
Этажность 3
Лифты Нет
Общая площадь 0 м²
Паркинг Наземный
Вентиляция приточно-вытяжная
Кондиционирование центральное
Телекоммуникации Интернет/Телефония

Расположение

Подробная презентацию по предложению

Собираете информацию? Получите подробную презентацию в удобном формате, чтобы обсудить вариант с коллегами или переслать руководству!

Похожие предложения в других зданиях

БЕЗ КОМИССИИ ID: 14270 Рейтинг7.0 КлассB

Москва, Нижегородская улица, 50

Площадь Ильича → 2.05 км
~ 9 мин
Арендная плата в месяц 950 000 ₽ 12 000 ₽/м² в год С учётом НДС
Характеристики 950 м² 3 этаж Под отделку
Преимущества
  • Класс B
  • Кондиционирование и вентиляция
  • Свой паркинг
  • Несколько провайдеров связи
  • Развитая инфраструктура

Собственник сдает в долгосрочную прямую аренду офисный блок класса B площадью 950 кв. метров в бизнес-центре "Три-D"... подробнее

Презентация по предложению

Собираете информацию? Получите подробную презентацию в удобном формате!

БЕЗ КОМИССИИ ID: 208418 Рейтинг6.5 КлассB

Москва, Подъёмная улица, 12 с1

Авиамоторная → 1.79 км
~ 18 мин
Арендная плата в месяц 896 000 ₽ 11 200 ₽/м² в год С учётом НДС
Характеристики 960 м² 5 этаж Готово к въезду
Преимущества
  • Класс B
  • Пешком от метро
  • Кондиционирование и вентиляция
  • Свой паркинг

Предлагаем в прямую аренду офис класса B площадью 960 кв. метров в историческом бизнес-центре... подробнее

Презентация по предложению

Собираете информацию? Получите подробную презентацию в удобном формате!

БЕЗ КОМИССИИ ID: 247345 Рейтинг7.4 КлассB

Москва, Душинская улица, 7 с1

Авиамоторная → 1.3 км
~ 13 мин
Арендная плата в месяц 1 125 000 ₽ 13 500 ₽/м² в год С учётом НДС
Характеристики 1 000 м² 1 - 4 этаж Готово к въезду
Преимущества
  • Класс B
  • Пешком от метро
  • Кондиционирование и вентиляция
  • Свой паркинг
  • Развитая инфраструктура

Сдается в долгосрочную аренду помещение под офис класса B общей площадью 1000 квадратных метров в бизнес-центре... подробнее

Презентация по предложению

Собираете информацию? Получите подробную презентацию в удобном формате!

БЕЗ КОМИССИИ ID: 185638 Рейтинг8.0 КлассB

Москва, Авиамоторная улица, 59

Авиамоторная → 1.22 км
~ 12 мин
Арендная плата в месяц 1 204 875 ₽ 11 900 ₽/м² в год С учётом НДС
Характеристики 1 215 м² 1 - 2 этаж Готово к въезду
Преимущества
  • Класс B
  • Пешком от метро
  • Кондиционирование и вентиляция
  • Свой паркинг

Предлагаем в долгосрочную аренду офисное помещение класса B общей площадью 1215 кв. метров в историческом недавно отреконструированном бизнес-центре... подробнее

Презентация по предложению

Собираете информацию? Получите подробную презентацию в удобном формате!

БЕЗ КОМИССИИ ID: 54362 Рейтинг6.6 КлассB

Москва, шоссе Энтузиастов, 7

Авиамоторная → 1.1 км
~ 11 мин
Арендная плата в месяц 1 045 000 ₽ 12 000 ₽/м² в год С учётом НДС
Характеристики 1 045 м² 1 - 4 этаж Готово к въезду
Преимущества
  • Класс B
  • Пешком от метро
  • Кондиционирование и вентиляция
  • Свой паркинг
  • Несколько провайдеров связи
  • Развитая инфраструктура

Предлагается в долгосрочную прямую аренду помещение под офис класса B общей площадью 1045 кв.м в историческом недавно отреконструированном бизнес-центре... подробнее

Презентация по предложению

Собираете информацию? Получите подробную презентацию в удобном формате!

Посмотреть все похожие предложения
Отнеситесь рационально к процессу поиска нового офиса!

Просто ответьте на 3 вопроса, и наши специалисты сами предложат оптимальные варианты под ваш бюджет

.