8.2
Смотреть все фото
БЕЗ КОМИССИИ ID: 1316167 Рейтинг8.2 КлассB+
Бизнес-центр «Смоленский 4»

Аренда офиса 2504 м²

Москва, Смоленский бульвар, 4

Парк культуры → 772 м
~ 8 мин
Арендная плата в месяц 13 563 300 ₽ 65 000 ₽/м² в год С учётом НДС

Презентация по предложению

Собираете информацию? Получите подробную презентацию в удобном формате!

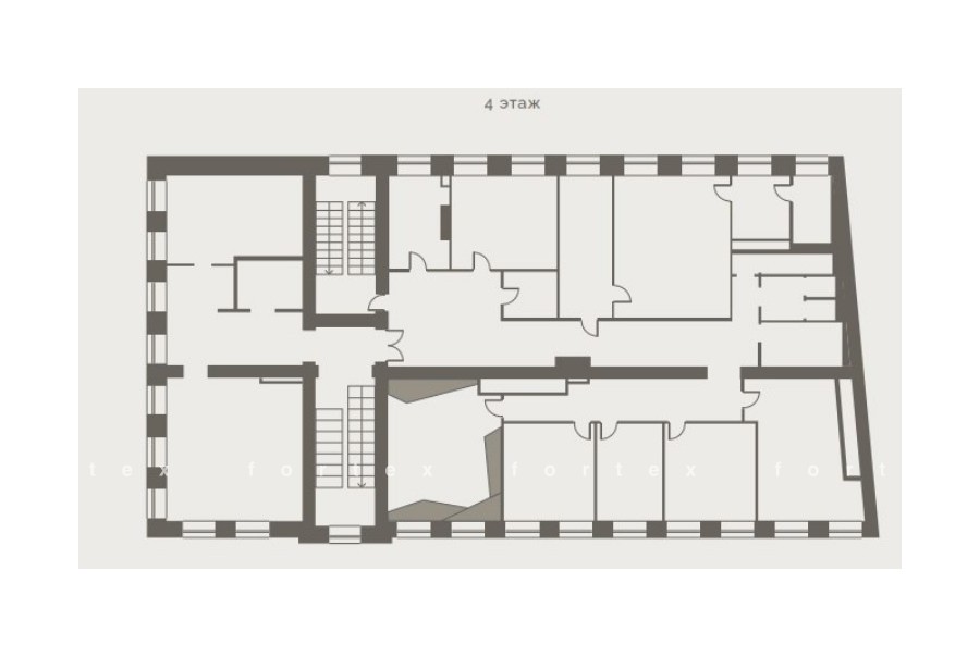
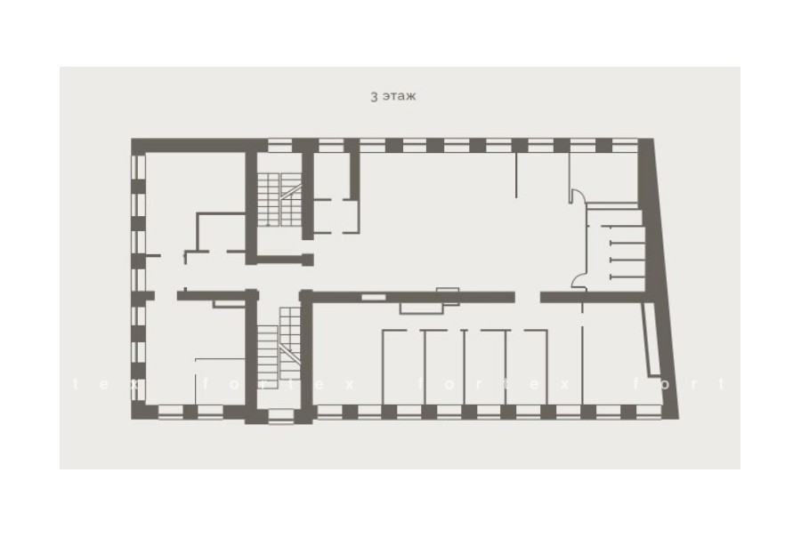
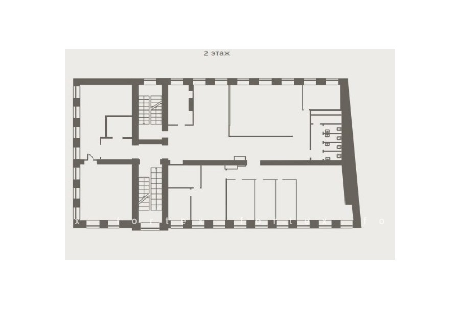
Площадь 2 504 м²
Состояние Готово к въезду
Планировка Смешанная
Этаж -1 - 5

Описание

Преимущества
  • Класс B+
  • Пешком от метро
  • Кондиционирование и вентиляция
  • Свой паркинг
  • Развитая инфраструктура
Сдается в долгосрочную прямую аренду помещение под офис класса B+ общей площадью 2504 кв. метров в историческом бизнес-центре.

Москва, ЦАО, Смоленский бульвар, 4

Удобное расположение в пределах Садового кольца:
- Возможность аренды парковочных мест.
- Ближайшее метро: от метро "Парк культуры" всего 8 мин пешком

Офис класса B+:
- Помещение готово к въезду
- Вентиляция: Приточно-вытяжная вентиляция
- Кондиционирование: центральное
- Развитая инфраструктура внутри здания

Возможность заключения контракта в соответствии с 44ФЗ по госзакупкам.

Если данное предложение подходит Вашему запросу:

1. Мы подготовили презентацию с информацией о помещении, фотографиями и планировкой, чтобы Вы могли поделиться ей с коллегами или руководством. Попросите об этом нашего менеджера по телефону в объявлении.
2. Задайте любые вопросы менеджеру по телефону, готовы обсуждать любые предложения по финансовым условиям договора аренды.
3. Покажем помещение в удобное для Вас время с менеджером в здании, при необходимости подготовим виртуальный тур.

Вы можете позвонить нам в любое время. Мы ответим на Ваши вопросы по будням до 19:00, а поздно вечером или в выходные зафиксируем Ваш контакт и перезвоним в рабочее время.

Коммерческие условия

Арендная плата 13 563 330 ₽
Ставка арендной платы 65 000 ₽ м²/год
Эксплуатационные расходы Включены в ставку
Налоги С учётом НДС
Тип договора Прямая аренда
Срок договора от 11 месяцев
Размер платежей 1 месяц
Обеспечительный платеж 2 месяц
Статус Сдан

О бизнес-центре

Класс B+
Этажность 5
Лифты Есть
Общая площадь 2 100 м²
Год постройки 1905
Паркинг Наземный
Вентиляция приточно-вытяжная
Кондиционирование центральное
Телекоммуникации Интернет/Телефония

Расположение

Подробная презентацию по предложению

Собираете информацию? Получите подробную презентацию в удобном формате, чтобы обсудить вариант с коллегами или переслать руководству!

Похожие предложения в других зданиях

БЕЗ КОМИССИИ ID: 284929 Рейтинг8.9 КлассА

Москва, улица Тимура Фрунзе, 11 к1

Парк культуры → 722 м
~ 7 мин
Арендная плата в месяц 14 535 000 ₽ 68 000 ₽/м² в год С учётом НДС
Характеристики 2 565 м² 6 этаж Готово к въезду
Преимущества
  • Класс А
  • Пешком от метро
  • Кондиционирование и вентиляция
  • Свой паркинг

Предлагаем в долгосрочную прямую аренду помещение под офис класса А общей площадью 2565 квадр. метров в недавно отреконструированном бизнес-центре "Демидов"... подробнее

>

Виртуальный тур

Презентация по предложению

Собираете информацию? Получите подробную презентацию в удобном формате!

БЕЗ КОМИССИИ ID: 1281635 Рейтинг8.1 КлассB

Москва, Зубовский бульвар, 17 с1

Парк культуры → 220 м
~ 2 мин
Арендная плата в месяц 13 298 902 ₽ 60 900 ₽/м² в год С учётом НДС
Характеристики 2 620 м² 4 - 6 этаж Готово к въезду
Преимущества
  • Класс B
  • Пешком от метро
  • Кондиционирование и вентиляция
  • Свой паркинг
  • Развитая инфраструктура

Сдаем в прямую аренду офис класса B общей площадью 2620 квадратных метров в бизнес-центре... подробнее

Презентация по предложению

Собираете информацию? Получите подробную презентацию в удобном формате!

БЕЗ КОМИССИИ ID: 1330176 Рейтинг8.9 КлассА

Москва, Смоленская площадь, 3

Смоленская → 208 м
~ 2 мин
Арендная плата в месяц 15 641 010 ₽ 65 900 ₽/м² в год С учётом НДС
Характеристики 2 849 м² 6 - 8 этаж Готово к въезду
Преимущества
  • Класс А
  • Пешком от метро
  • Кондиционирование и вентиляция
  • Свой паркинг
  • Развитая инфраструктура

Сдается в прямую аренду офисный блок класса А площадью 2849 кв. метров в недавно отреконструированном бизнес-центре "Смоленский пассаж"... подробнее

Презентация по предложению

Собираете информацию? Получите подробную презентацию в удобном формате!

БЕЗ КОМИССИИ ID: 1282806 Рейтинг8.9 КлассА

Москва, Смоленская площадь, 3

Смоленская → 208 м
~ 2 мин
Арендная плата в месяц 14 343 296 ₽ 64 400 ₽/м² в год С учётом НДС
Характеристики 2 672 м² 7 этаж Готово к въезду
Преимущества
  • Класс А
  • Пешком от метро
  • Кондиционирование и вентиляция
  • Свой паркинг
  • Развитая инфраструктура

Предлагается в прямую аренду помещение под офис класса А общей площадью 2672 квадр. метров в недавно отреконструированном бизнес-центре "Смоленский пассаж"... подробнее

>

Виртуальный тур

Презентация по предложению

Собираете информацию? Получите подробную презентацию в удобном формате!

БЕЗ КОМИССИИ ID: 467760 Рейтинг9.0 КлассА

Москва, Смоленская площадь, дом 5

Смоленская → 311 м
~ 3 мин
Арендная плата в месяц 13 051 350 ₽ 62 100 ₽/м² в год С учётом НДС
Характеристики 2 522 м² 8 этаж Готово к въезду
Преимущества
  • Класс А
  • Пешком от метро
  • Кондиционирование и вентиляция
  • Свой паркинг

Предлагаем в долгосрочную прямую аренду офисное помещение класса А площадью 2522 кв. метров в бизнес-центре "Смоленский пассаж 2"... подробнее

Презентация по предложению

Собираете информацию? Получите подробную презентацию в удобном формате!

Посмотреть все похожие предложения
Отнеситесь рационально к процессу поиска нового офиса!

Просто ответьте на 3 вопроса, и наши специалисты сами предложат оптимальные варианты под ваш бюджет

.