8.2
Смотреть все фото
БЕЗ КОМИССИИ ID: 203763 Рейтинг7.0 КлассB
Бизнес-центр «Смольная 2»

Аренда офиса 618 м²

Москва, Смольная улица, 2

Водный стадион → 1.08 км
~ 11 мин
Арендная плата в месяц 1 735 500 ₽ 33 700 ₽/м² в год С учётом НДС

Презентация по предложению

Собираете информацию? Получите подробную презентацию в удобном формате!

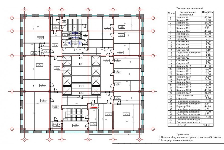
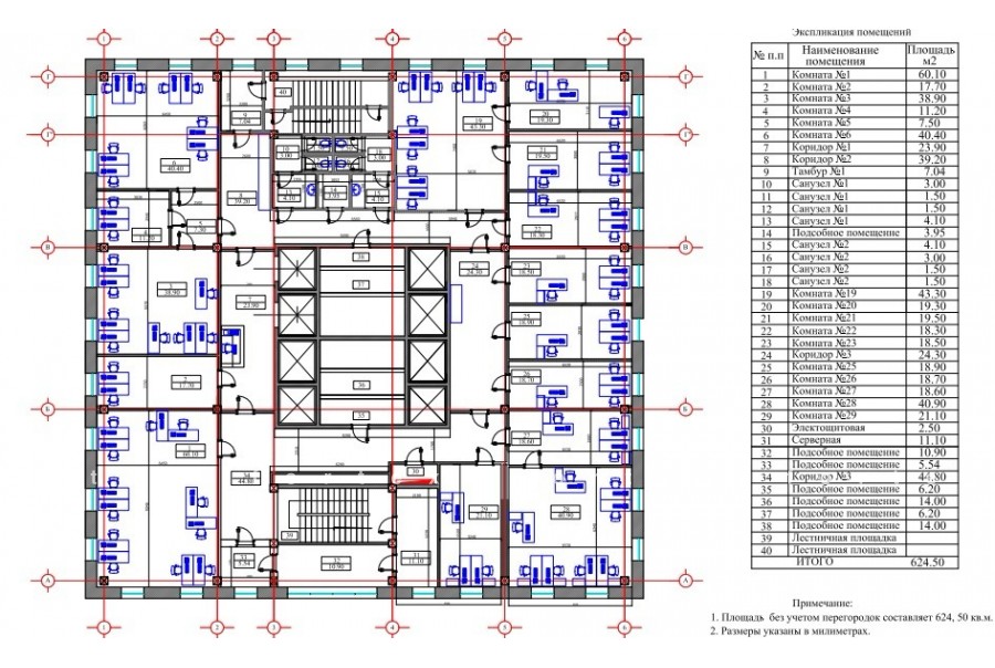
Площадь 618 м²
Состояние Готово к въезду
Планировка Кабинетная
Этаж 8

Описание

Преимущества
  • Класс B
  • Пешком от метро
  • Кондиционирование и вентиляция
  • Развитая инфраструктура
Сдается в долгосрочную прямую аренду офис класса B площадью 618 квадратных метров в бизнес-центре.

Москва, САО, Смольная улица, 2

Удобная локация здания:
- Автомобиль: близость транспортных магистралей, таких как Ленинградское шоссе и других.
- Ближайшее метро: от метро "Водный стадион" всего 11 мин пешком

Офис класса B:
- Офис с отделкой, полностью готов к аренде
- Вентиляция: Приточно-вытяжная вентиляция
- Кондиционирование: сплит-системы
- Презентабельный центральный ресепшн
- Круглосуточная охрана и видеонаблюдение
- Развитая инфраструктура внутри здания


Если данное предложение подходит Вашему запросу:

1. Мы подготовили презентацию с информацией о помещении, фотографиями и планировкой, чтобы Вы могли поделиться ей с коллегами или руководством. Попросите об этом нашего менеджера по телефону в объявлении.
2. Мы готовы ответить на любые Ваши вопросы о помещении и коммерческих условиях аренды.
3. Проводим показы ежедневно, договоримся на удобное для Вас время. Можем организовать виртуальный тур по офисному блоку.

Вы можете позвонить нам в любое время. Мы ответим на Ваши вопросы по будням до 19:00, а поздно вечером или в выходные зафиксируем Ваш контакт и перезвоним в рабочее время.

Коммерческие условия

Арендная плата 632 570 ₽
Ставка арендной платы 33 700 ₽ м²/год
Эксплуатационные расходы Включены в ставку
Налоги С учётом НДС
Тип договора Прямая аренда
Срок договора от 11 месяцев
Размер платежей 1 месяц
Обеспечительный платеж 1 месяц
Статус Сдан

О бизнес-центре

Класс B
Этажность 17
Лифты Есть
Общая площадь 15 296 м²
Год постройки 1989
Паркинг Стихийный
Вентиляция приточно-вытяжная
Кондиционирование сплит-системы
Телекоммуникации Интернет/Телефония

Расположение

Подробная презентацию по предложению

Собираете информацию? Получите подробную презентацию в удобном формате, чтобы обсудить вариант с коллегами или переслать руководству!

Похожие предложения в других зданиях

БЕЗ КОМИССИИ ID: 1310746 Рейтинг7.6 КлассB+

Москва, Смольная улица, 24Д

Речной вокзал → 1.31 км
~ 13 мин
Арендная плата в месяц 1 779 750 ₽ 31 500 ₽/м² в год С учётом НДС
Характеристики 678 м² 10 этаж Готово к въезду
Преимущества
  • Класс B+
  • Пешком от метро
  • Кондиционирование и вентиляция
  • Свой паркинг

Предлагается в прямую аренду офисное помещение класса B+ общей площадью 678 кв.м в бизнес-центре "Меридиан"... подробнее

Презентация по предложению

Собираете информацию? Получите подробную презентацию в удобном формате!

БЕЗ КОМИССИИ ID: 258731 Рейтинг9.0 КлассА

Москва, Сходненская улица, 56

Сходненская → 204 м
~ 3 мин
Арендная плата в месяц 1 729 950 ₽ 34 200 ₽/м² в год С учётом НДС
Характеристики 607 м² 6 этаж Готово к въезду
Преимущества
  • Класс А
  • Пешком от метро
  • Кондиционирование и вентиляция
  • Свой паркинг

Предлагаем в долгосрочную прямую аренду офис класса А общей площадью 607 кв. метров в бизнес-центре "Калейдоскоп"... подробнее

Презентация по предложению

Собираете информацию? Получите подробную презентацию в удобном формате!

БЕЗ КОМИССИИ ID: 74507 Рейтинг6.7 КлассB

Москва, улица Усиевича, 20 к1

Сокол → 668 м
~ 7 мин
Арендная плата в месяц 1 672 417 ₽ 32 900 ₽/м² в год С учётом НДС
Характеристики 610 м² 1 - 2 этаж Готово к въезду
Преимущества
  • Класс B
  • Пешком от метро
  • Кондиционирование и вентиляция
  • Свой паркинг

Предлагаем в долгосрочную аренду офис класса B площадью 610 квадр. метров в историческом недавно отреконструированном бизнес-центре "Сокол Плаза"... подробнее

Презентация по предложению

Собираете информацию? Получите подробную презентацию в удобном формате!

БЕЗ КОМИССИИ ID: 285441 Рейтинг8.3 КлассB

Москва, Ленинградский проспект, 74А

Сокол → 223 м
~ 2 мин
Арендная плата в месяц 1 759 542 ₽ 34 900 ₽/м² в год С учётом НДС
Характеристики 605 м² 3 этаж Готово к въезду
Преимущества
  • Класс B
  • Пешком от метро
  • Кондиционирование и вентиляция
  • Свой паркинг
  • Развитая инфраструктура

Предлагается в долгосрочную прямую аренду офис класса B общей площадью 605 кв.м в бизнес-центре "Сокол Центр"... подробнее

Презентация по предложению

Собираете информацию? Получите подробную презентацию в удобном формате!

БЕЗ КОМИССИИ ID: 1328626 Рейтинг7.8 КлассB+

Москва, 1-й Волоколамский проезд, 10

Панфиловская → 1.07 км
~ 11 мин
Арендная плата в месяц 1 728 740 ₽ 31 700 ₽/м² в год С учётом НДС
Характеристики 654 м² 9 этаж Готово к въезду
Преимущества
  • Класс B+
  • Пешком от метро
  • Кондиционирование и вентиляция
  • Свой паркинг
  • Несколько провайдеров связи
  • Развитая инфраструктура

Предлагаем в прямую аренду офисный блок класса B+ общей площадью 654 кв. метров в бизнес-центре "Диапазон"... подробнее

>

Виртуальный тур

Презентация по предложению

Собираете информацию? Получите подробную презентацию в удобном формате!

Посмотреть все похожие предложения
Отнеситесь рационально к процессу поиска нового офиса!

Просто ответьте на 3 вопроса, и наши специалисты сами предложат оптимальные варианты под ваш бюджет

.