8.2
Смотреть все фото
БЕЗ КОМИССИИ ID: 867353 Рейтинг6.7 КлассB
Бизнес-центр «Сокол Плаза»

Аренда офиса 262 м²

Москва, улица Усиевича, 20 к1

Сокол → 668 м
~ 7 мин
Арендная плата в месяц 545 800 ₽ 25 000 ₽/м² в год С учётом НДС

Презентация по предложению

Собираете информацию? Получите подробную презентацию в удобном формате!

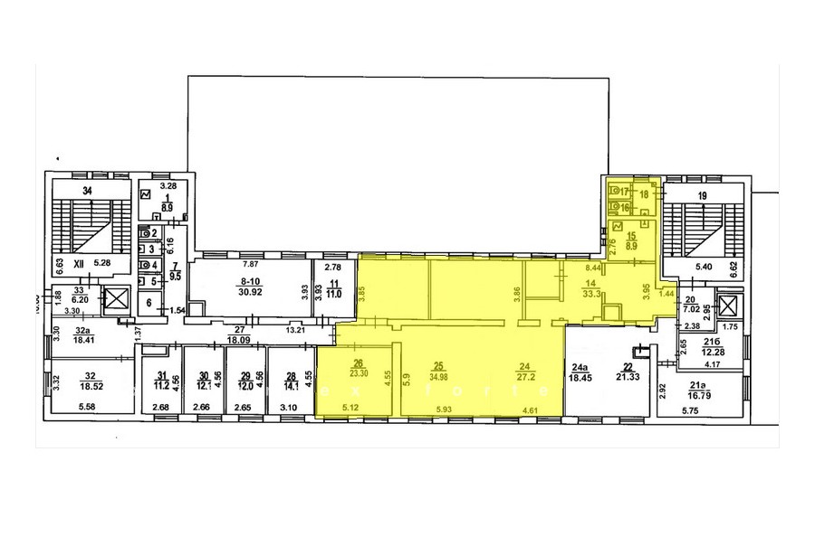
Площадь 262 м²
Состояние Готово к въезду
Планировка Смешанная
Этаж 4

Описание

Преимущества
  • Класс B
  • Пешком от метро
  • Кондиционирование и вентиляция
  • Свой паркинг
Предлагаем в долгосрочную аренду офис класса B площадью 262 квадр. метров в историческом недавно отреконструированном бизнес-центре "Сокол Плаза".

Москва, САО, улица Усиевича, 20 к1

Удобная локация здания:
- Автомобиль: близость транспортных магистралей, таких как Ленинградское шоссе, Волоколамское шоссе, Ленинградский проспект и других.
- Возможность аренды парковочных мест.
- Ближайшее метро: от метро "Сокол" всего 6 мин пешком

Офис класса B:
- Помещение готово к въезду
- Вентиляция: Приточно-вытяжная вентиляция
- Кондиционирование: сплит-системы


Если предложение предварительно Вам подходит:

1. Получите презентацию в течение 10 минут в Whatsapp или на почту с фотографиями и планировкой, чтобы обсудить данный вариант с коллегами или переслать руководству. Для этого позвоните по телефону, указанному в объявлении.
2. Мы готовы ответить на любые Ваши вопросы о помещении и коммерческих условиях аренды.
3. Оперативно организуем просмотр помещения, договоримся на любое удобное время, подготовим виртуальный тур.

Звоните нам в любое время. По будням мы сможем ответить на Ваши вопросы до 19:00. В выходные или вечернее время мы передадим Ваш контакт нашему менеджеру по аренде.

Коммерческие условия

Арендная плата 545 830 ₽
Ставка арендной платы 25 000 ₽ м²/год
Эксплуатационные расходы Включены в ставку
Налоги С учётом НДС
Тип договора Прямая аренда
Срок договора Краткосрочный
Размер платежей 1 месяц
Обеспечительный платеж 1 месяц
Статус Сдан

О бизнес-центре

Класс B
Этажность 5
Лифты Есть
Общая площадь 3 500 м²
Год постройки 1940
Паркинг Наземный
Вентиляция приточно-вытяжная
Кондиционирование сплит-системы
Телекоммуникации Интернет/Телефония

Расположение

Подробная презентацию по предложению

Собираете информацию? Получите подробную презентацию в удобном формате, чтобы обсудить вариант с коллегами или переслать руководству!

Похожие предложения в других зданиях

БЕЗ КОМИССИИ ID: 1379961 Рейтинг6.3 КлассB

Москва, Часовая улица, 19 к3

Сокол → 722 м
~ 7 мин
Арендная плата в месяц 681 504 ₽ 28 400 ₽/м² в год С учётом НДС
Характеристики 288 м² 1 этаж Готово к въезду
Преимущества
  • Класс B
  • Пешком от метро
  • Кондиционирование и вентиляция
  • Несколько провайдеров связи

Предлагается в прямую аренду офис класса B общей площадью 288 кв.м в жилом комплексе... подробнее

Презентация по предложению

Собираете информацию? Получите подробную презентацию в удобном формате!

ВОЗМОЖНО ОСВОБОЖДЕНИЕ ID: 257586 Рейтинг7.8 КлассB

Москва, Ленинградский проспект, 68

Сокол → 426 м
~ 4 мин
Арендная плата в месяц 513 750 ₽ 22 500 ₽/м² в год С учётом НДС
Характеристики 274 м² 1 этаж Готово к въезду
Преимущества
  • Класс B
  • Пешком от метро
  • Кондиционирование и вентиляция
  • Свой паркинг
  • Несколько провайдеров связи
  • Развитая инфраструктура

Сдается в долгосрочную прямую аренду офис класса B общей площадью 274 кв. метров в бизнес-центре "Авиапарк"... подробнее

Презентация по предложению

Собираете информацию? Получите подробную презентацию в удобном формате!

БЕЗ КОМИССИИ ID: 1380850 Рейтинг7.6 КлассB

Москва, Ленинградский проспект, 80 к17

Сокол → 498 м
~ 5 мин
Арендная плата в месяц 456 500 ₽ 22 000 ₽/м² в год С учётом НДС
Характеристики 249 м² 3 этаж Готово к въезду
Преимущества
  • Класс B
  • Пешком от метро
  • Кондиционирование и вентиляция
  • Свой паркинг

Предлагаем в долгосрочную аренду офис класса B площадью 249 кв.м в бизнес-центре... подробнее

Презентация по предложению

Собираете информацию? Получите подробную презентацию в удобном формате!

БЕЗ КОМИССИИ ID: 1326828 Рейтинг6.3 КлассB

Москва, Ленинградский проспект, 80 к7

Сокол → 852 м
~ 9 мин
Арендная плата в месяц 625 000 ₽ 25 000 ₽/м² в год С учётом НДС
Характеристики 300 м² 2 этаж Готово к въезду
Преимущества
  • Класс B
  • Пешком от метро
  • Кондиционирование и вентиляция
  • Свой паркинг
  • Развитая инфраструктура

Предлагаем в прямую аренду офис класса B общей площадью 300 квадратных метров в бизнес-центре... подробнее

Презентация по предложению

Собираете информацию? Получите подробную презентацию в удобном формате!

БЕЗ КОМИССИИ ID: 1295465 Рейтинг7.5 КлассB

Москва, Ленинградский проспект, 80 к5

Сокол → 842 м
~ 8 мин
Арендная плата в месяц 543 333 ₽ 22 000 ₽/м² в год С учётом НДС
Характеристики 296 м² 4 этаж Готово к въезду
Преимущества
  • Класс B
  • Пешком от метро
  • Кондиционирование и вентиляция
  • Свой паркинг
  • Несколько провайдеров связи

Предлагаем в аренду офисный блок класса B площадью 296 кв.м в историческом бизнес-центре "Дигалта"... подробнее

Презентация по предложению

Собираете информацию? Получите подробную презентацию в удобном формате!

Посмотреть все похожие предложения
Отнеситесь рационально к процессу поиска нового офиса!

Просто ответьте на 3 вопроса, и наши специалисты сами предложат оптимальные варианты под ваш бюджет

.