8.2
Смотреть все фото
БЕЗ КОМИССИИ ID: 1280885 Рейтинг9.1 КлассА

Москва, Семёновская площадь, 1А

Семеновская → 153 м
~ 2 мин
Арендная плата в месяц 4 010 400 ₽ 27 500 ₽/м² в год С учётом НДС

Презентация по предложению

Собираете информацию? Получите подробную презентацию в удобном формате!

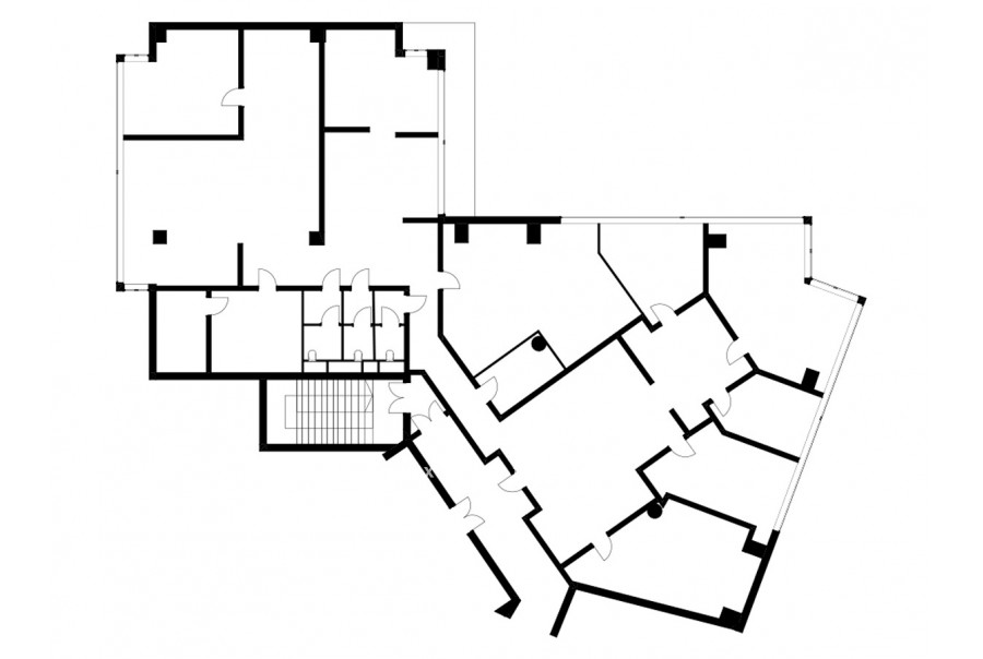
Площадь 1 750 м²
Состояние Готово к въезду
Планировка Смешанная
Этаж 26

Описание

Преимущества
  • Класс А
  • Пешком от метро
  • Кондиционирование и вентиляция
  • Свой паркинг
  • Развитая инфраструктура
Сдаем в долгосрочную прямую аренду помещение под офис класса А площадью 1750 кв. метров в бизнес-центре "Соколиная Гора".

Москва, ВАО, Семёновская площадь, 1А

Удобное расположение здания для всех видов транспорта:
- Автомобиль: близость транспортных магистралей, таких как Большая Черкизовская улица, улица Стромынка и других.
- Возможность аренды парковочных мест.
- Ближайшее метро: буквально 3 мин пешком от метро "Семеновская"

Офис класса А:
- Помещение готово к въезду
- Вентиляция: Приточно-вытяжная вентиляция
- Кондиционирование: центральное
- Презентабельный центральный рецепшн
- Круглосуточная охрана и видеонаблюдение
- Развитая инфраструктура внутри здания

Возможность заключения контракта в соответствии с 44ФЗ по госзакупкам.

Что еще можно узнать о предложении:

1. Получите презентацию в течение 10 минут в Whatsapp или на почту с фотографиями и планировкой, чтобы обсудить данный вариант с коллегами или переслать руководству. Для этого позвоните по телефону, указанному в объявлении.
2. Задайте любые вопросы менеджеру по телефону, готовы обсуждать любые предложения по финансовым условиям договора аренды.
3. Оперативно организуем просмотр помещения, договоримся на любое удобное время, подготовим виртуальный тур.

Вы можете позвонить нам в любое время. Мы ответим на Ваши вопросы по будням до 19:00, а поздно вечером или в выходные сможем передать Ваш контакт нашему менеджеру.

Коммерческие условия

Арендная плата 3 645 830 ₽
Ставка арендной платы 27 500 ₽ м²/год
Эксплуатационные расходы Включены в ставку
Налоги С учётом НДС
Тип договора Прямая аренда
Срок договора от 11 месяцев
Размер платежей 1 месяц
Обеспечительный платеж 2 месяц
Статус Сдан

О бизнес-центре

Класс А
Этажность 35
Лифты Есть
Общая площадь 34 650 м²
Год постройки 2007
Паркинг Подземный
Вентиляция приточно-вытяжная
Кондиционирование центральное
Телекоммуникации Интернет/Телефония

Расположение

Подробная презентацию по предложению

Собираете информацию? Получите подробную презентацию в удобном формате, чтобы обсудить вариант с коллегами или переслать руководству!

Похожие предложения в других зданиях

БЕЗ КОМИССИИ ID: 1281436 Рейтинг7.3 КлассB

Москва, Малая Семёновская улица, 9 с1

Электрозаводская → 443 м
~ 4 мин
Арендная плата в месяц 4 047 396 ₽ 27 600 ₽/м² в год С учётом НДС
Характеристики 1 757 м² 1 этаж Готово к въезду
Преимущества
  • Класс B
  • Пешком от метро
  • Кондиционирование и вентиляция
  • Свой паркинг
  • Несколько провайдеров связи

Собственник сдает в долгосрочную аренду офис класса B общей площадью 1757 кв.м в недавно отреконструированном бизнес-центре "На Семеновской"... подробнее

Презентация по предложению

Собираете информацию? Получите подробную презентацию в удобном формате!

ВОЗМОЖНО ОСВОБОЖДЕНИЕ ID: 1231321 Рейтинг7.3 КлассB

Москва, Малая Семёновская улица, 9 с1

Электрозаводская → 443 м
~ 4 мин
Арендная плата в месяц 3 594 500 ₽ 26 000 ₽/м² в год С учётом НДС
Характеристики 1 659 м² 3 этаж Готово к въезду
Преимущества
  • Класс B
  • Пешком от метро
  • Кондиционирование и вентиляция
  • Свой паркинг
  • Несколько провайдеров связи

Собственник сдает в прямую аренду офис класса B площадью 1659 квадратных метров в недавно отреконструированном бизнес-центре "На Семеновской"... подробнее

Презентация по предложению

Собираете информацию? Получите подробную презентацию в удобном формате!

БЕЗ КОМИССИИ ID: 193071 Рейтинг6.8 КлассB

Москва, Электрозаводская улица, 24

Преображенская площадь → 967 м
~ 10 мин
Арендная плата в месяц 4 750 000 ₽ 28 500 ₽/м² в год С учётом НДС
Характеристики 2 000 м² 2 этаж Готово к въезду
Преимущества
  • Класс B
  • Пешком от метро
  • Кондиционирование и вентиляция
  • Свой паркинг
  • Развитая инфраструктура

Предлагается в прямую аренду офис класса B общей площадью 2000 квадр. метров в бизнес-центре "Преображенский"... подробнее

Презентация по предложению

Собираете информацию? Получите подробную презентацию в удобном формате!

БЕЗ КОМИССИИ ID: 193070 Рейтинг6.8 КлассB

Москва, Электрозаводская улица, 24

Преображенская площадь → 967 м
~ 10 мин
Арендная плата в месяц 3 562 500 ₽ 28 500 ₽/м² в год С учётом НДС
Характеристики 1 500 м² 2 этаж Готово к въезду
Преимущества
  • Класс B
  • Пешком от метро
  • Кондиционирование и вентиляция
  • Свой паркинг
  • Развитая инфраструктура

Сдается в долгосрочную аренду помещение под офис класса B площадью 1500 кв.м в бизнес-центре "Преображенский"... подробнее

Презентация по предложению

Собираете информацию? Получите подробную презентацию в удобном формате!

БЕЗ КОМИССИИ ID: 1376340 Рейтинг8.4 КлассB+

Москва, Электрозаводская улица, 27 с1

Преображенская площадь → 841 м
~ 8 мин
Арендная плата в месяц 4 997 000 ₽ 38 000 ₽/м² в год С учётом НДС
Характеристики 1 578 м² 5 этаж Готово к въезду
Преимущества
  • Класс B+
  • Пешком от метро
  • Кондиционирование и вентиляция
  • Свой паркинг
  • Несколько провайдеров связи

Предлагается в прямую аренду офис класса B+ площадью 1627 кв.м в бизнес-центре "ЛеФорт"... подробнее

Презентация по предложению

Собираете информацию? Получите подробную презентацию в удобном формате!

Посмотреть все похожие предложения
Отнеситесь рационально к процессу поиска нового офиса!

Просто ответьте на 3 вопроса, и наши специалисты сами предложат оптимальные варианты под ваш бюджет

.