8.2

Виртуальный тур

Смотреть все фото
БЕЗ КОМИССИИ ID: 981641 Рейтинг8.2 КлассB
Бизнес-центр «Спасский 8 с1»

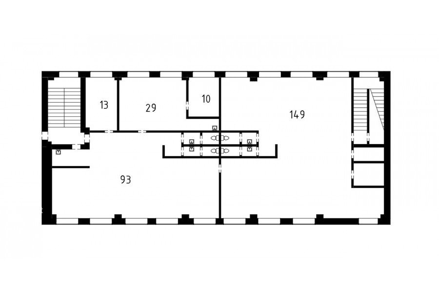
Аренда офиса 358 м²

Москва, Спасский тупик, 8 с1

Комсомольская → 803 м
~ 8 мин
Арендная плата в месяц 596 700 ₽ 20 000 ₽/м² в год С учётом НДС

Презентация по предложению

Собираете информацию? Получите подробную презентацию в удобном формате!

Площадь 358 м²
Состояние Готово к въезду
Планировка Смешанная
Этаж 1

Описание

Преимущества
  • Класс B
  • Пешком от метро
  • Кондиционирование и вентиляция
  • Свой паркинг
Сдается в долгосрочную аренду помещение под офис класса B общей площадью 358 квадратных метров в бизнес-центре.

Москва, ЦАО, Спасский тупик, 8 с1

Удобная локация здания:
- Автомобиль: близость транспортных магистралей, таких как Садовое Кольцо, Проспект Мира и других.
- Возможность аренды парковочных мест.
- Ближайшее метро: от метро "Комсомольская" всего 12 мин пешком

Офис класса B:
- Помещение с отделкой, готово к въезду
- Вентиляция: Приточно-вытяжная вентиляция
- Кондиционирование: центральное


Если предложение предварительно Вам подходит:

1. Мы отправим Вам подробную презентацию с планировкой и фотографиями в течение 10 минут после звонка, чтобы Вы могли поделиться информацией с руководством или с коллегами.
2. Мы готовы ответить на любые Ваши вопросы о помещении и коммерческих условиях аренды.
3. Оперативно организуем просмотр помещения, договоримся на любое удобное время, подготовим виртуальный тур.

Вы можете позвонить нам в любое время. Мы ответим на Ваши вопросы по будням до 19:00, а поздно вечером или в выходные сможем передать Ваш контакт нашему менеджеру.

Коммерческие условия

Арендная плата 686 170 ₽
Ставка арендной платы 20 000 ₽ м²/год
Эксплуатационные расходы Включены в ставку
Налоги С учётом НДС
Тип договора Прямая аренда
Срок договора от 11 месяцев
Размер платежей 1 месяц
Обеспечительный платеж 2 месяц
Статус Сдан

О бизнес-центре

Класс B
Этажность 3
Лифты Нет
Общая площадь 1 150 м²
Паркинг Наземный
Вентиляция приточно-вытяжная
Кондиционирование центральное
Телекоммуникации Интернет/Телефония

Расположение

Подробная презентацию по предложению

Собираете информацию? Получите подробную презентацию в удобном формате, чтобы обсудить вариант с коллегами или переслать руководству!

Похожие предложения в других зданиях

БЕЗ КОМИССИИ ID: 270309 Рейтинг7.8 КлассB

Москва, Грохольский переулок, 32 с2

Комсомольская → 952 м
~ 10 мин
Арендная плата в месяц 642 333 ₽ 18 800 ₽/м² в год С учётом НДС
Характеристики 410 м² 3 - 4 этаж Готово к въезду
Преимущества
  • Класс B
  • Пешком от метро
  • Кондиционирование и вентиляция
  • Свой паркинг

Сдаем в долгосрочную прямую аренду офисный блок класса B площадью 410 квадр. метров в историческом бизнес-центре... подробнее

Презентация по предложению

Собираете информацию? Получите подробную презентацию в удобном формате!

БЕЗ КОМИССИИ ID: 100665 Рейтинг5.6 КлассB

Москва, Каланчёвская улица, 17

Комсомольская → 424 м
~ 4 мин
Арендная плата в месяц 547 500 ₽ 18 000 ₽/м² в год С учётом НДС
Характеристики 365 м² 6 этаж Готово к въезду
Преимущества
  • Класс B
  • Пешком от метро
  • Кондиционирование и вентиляция
  • Свой паркинг
  • Развитая инфраструктура

Предлагается в долгосрочную прямую аренду офисное помещение класса B общей площадью 365 кв. метров в историческом бизнес-центре... подробнее

Презентация по предложению

Собираете информацию? Получите подробную презентацию в удобном формате!

БЕЗ КОМИССИИ ID: 380125 Рейтинг4.1 КлассB

Москва, Большой Балканский переулок, 20 с1

Комсомольская → 995 м
~ 10 мин
Арендная плата в месяц 616 667 ₽ 18 500 ₽/м² в год С учётом НДС
Характеристики 400 м² 3 этаж Готово к въезду
Преимущества
  • Класс B
  • Пешком от метро
  • Кондиционирование и вентиляция
  • Свой паркинг

Сдается в долгосрочную прямую аренду офисный блок класса B площадью 400 квадратных метров в бизнес-центре... подробнее

Презентация по предложению

Собираете информацию? Получите подробную презентацию в удобном формате!

БЕЗ КОМИССИИ ID: 1379930 Рейтинг7.7 КлассB

Москва, Грохольский переулок, 28

Проспект Мира → 845 м
~ 8 мин
Арендная плата в месяц 550 000 ₽ 22 000 ₽/м² в год Упрощённая система налогообложения
Характеристики 300 м² 3 этаж Готово к въезду
Преимущества
  • Класс B
  • Пешком от метро
  • Кондиционирование и вентиляция
  • Свой паркинг

Сдается в долгосрочную прямую аренду помещение под офис класса B площадью 300 кв. метров в жилом комплексе... подробнее

Презентация по предложению

Собираете информацию? Получите подробную презентацию в удобном формате!

БЕЗ КОМИССИИ ID: 1379372 Рейтинг7.3 КлассB+

Москва, Новорязанская улица, 8А с1

Комсомольская → 427 м
~ 4 мин
Арендная плата в месяц 640 192 ₽ 20 000 ₽/м² в год С учётом НДС
Характеристики 384 м² -1 этаж Готово к въезду
Преимущества
  • Класс B+
  • Пешком от метро
  • Кондиционирование и вентиляция
  • Свой паркинг

Предлагаем в прямую аренду офис класса B+ общей площадью 384 кв. метров в историческом недавно отреконструированном бизнес-центре... подробнее

Презентация по предложению

Собираете информацию? Получите подробную презентацию в удобном формате!

Посмотреть все похожие предложения
Отнеситесь рационально к процессу поиска нового офиса!

Просто ответьте на 3 вопроса, и наши специалисты сами предложат оптимальные варианты под ваш бюджет

.