8.2
Смотреть все фото
БЕЗ КОМИССИИ ID: 205001 Рейтинг7.4 КлассB+

Москва, Средний Тишинский переулок, 8

Белорусская → 847 м
~ 8 мин
Арендная плата в месяц 598 500 ₽ 18 900 ₽/м² в год С учётом НДС

Презентация по предложению

Собираете информацию? Получите подробную презентацию в удобном формате!

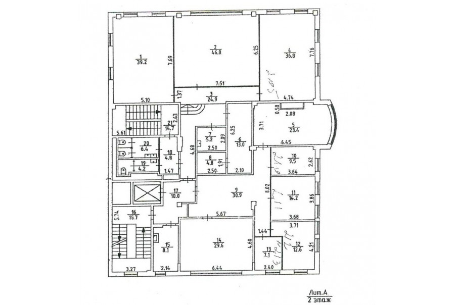
Площадь 380 м²
Состояние Готово к въезду
Планировка Кабинетная
Этаж 2

Описание

Преимущества
  • Класс B+
  • Пешком от метро
  • Кондиционирование и вентиляция
Сдается в долгосрочную аренду офис класса B+ общей площадью 380 квадр. метров в бизнес-центре.

Москва, ЦАО, Средний Тишинский переулок, 8

Удобная локация здания:
- Автомобиль: близость транспортных магистралей, таких как Садовое Кольцо, Ленинградский проспект и других.
- Ближайшее метро: от метро "Белорусская" всего 8 мин пешком

Офис класса B+:
- Помещение готово к въезду
- Вентиляция: Приточно-вытяжная вентиляция
- Кондиционирование: центральное


Если предложение предварительно Вам подходит:

1. Получите презентацию в течение 10 минут в Whatsapp или на почту с фотографиями и планировкой, чтобы обсудить данный вариант с коллегами или переслать руководству. Для этого позвоните по телефону, указанному в объявлении.
2. Мы готовы ответить на любые Ваши вопросы о помещении и коммерческих условиях аренды.
3. Оперативно организуем просмотр помещения с менеджерами на объекте или подготовим виртуальный тур.

Звоните нам в любое время. По будням мы сможем ответить на Ваши вопросы до 19:00. В выходные или вечернее время мы передадим Ваш контакт нашему менеджеру по аренде.

Коммерческие условия

Арендная плата 599 990 ₽
Ставка арендной платы 18 900 ₽ м²/год
Эксплуатационные расходы Включены в ставку
Налоги С учётом НДС
Тип договора Прямая аренда
Срок договора от 11 месяцев
Размер платежей 1 месяц
Обеспечительный платеж 1 месяц
Статус Сдан

О бизнес-центре

Класс B+
Этажность 7
Лифты Есть
Общая площадь 2 265 м²
Год постройки 2006
Паркинг Стихийный
Вентиляция приточно-вытяжная
Кондиционирование центральное
Телекоммуникации Интернет/Телефония

Расположение

Подробная презентацию по предложению

Собираете информацию? Получите подробную презентацию в удобном формате, чтобы обсудить вариант с коллегами или переслать руководству!

Похожие предложения в других зданиях

БЕЗ КОМИССИИ ID: 58556 Рейтинг5.5 КлассB

Москва, Средний Тишинский переулок, 5 с1

Белорусская → 1.03 км
~ 10 мин
Арендная плата в месяц 525 000 ₽ 18 000 ₽/м² в год С учётом НДС
Характеристики 350 м² 1 этаж Готово к въезду
Преимущества
  • Класс B
  • Пешком от метро
  • Кондиционирование и вентиляция
  • Несколько провайдеров связи

Сдаем в прямую аренду офисное помещение класса B общей площадью 350 квадратных метров в историческом бизнес-центре... подробнее

Презентация по предложению

Собираете информацию? Получите подробную презентацию в удобном формате!

БЕЗ КОМИССИИ ID: 131766 Рейтинг6.6 КлассB

Москва, улица Юлиуса Фучика, 6 с2

Маяковская → 799 м
~ 8 мин
Арендная плата в месяц 666 667 ₽ 20 000 ₽/м² в год С учётом НДС
Характеристики 400 м² 2 - 6 этаж Готово к въезду
Преимущества
  • Класс B
  • Пешком от метро
  • Кондиционирование и вентиляция
  • Свой паркинг

Собственник сдает в долгосрочную прямую аренду помещение под офис класса B общей площадью 400 кв.м в историческом недавно отреконструированном бизнес-центре... подробнее

Презентация по предложению

Собираете информацию? Получите подробную презентацию в удобном формате!

ВОЗМОЖНО ОСВОБОЖДЕНИЕ ID: 892786 Рейтинг5.7 КлассB

Москва, улица Красина, 14 с7

Маяковская → 766 м
~ 8 мин
Арендная плата в месяц 699 600 ₽ 21 200 ₽/м² в год С учётом НДС
Характеристики 396 м² 1 - 2 этаж Готово к въезду
Преимущества
  • Класс B
  • Пешком от метро
  • Кондиционирование и вентиляция
  • Свой паркинг

Сдается в долгосрочную аренду офисный блок класса B общей площадью 396 квадр. метров в историческом недавно отреконструированном бизнес-центре... подробнее

>

Виртуальный тур

Презентация по предложению

Собираете информацию? Получите подробную презентацию в удобном формате!

БЕЗ КОМИССИИ ID: 168671 Рейтинг6.8 КлассB

Москва, 2-я Брестская улица, 5

Маяковская → 646 м
~ 6 мин
Арендная плата в месяц 529 500 ₽ 18 000 ₽/м² в год С учётом НДС
Характеристики 353 м² 6 этаж Готово к въезду
Преимущества
  • Класс B
  • Пешком от метро
  • Кондиционирование и вентиляция
  • Свой паркинг

Предлагается в прямую аренду офисное помещение класса B общей площадью 353 квадр. метров в бизнес-центре... подробнее

Презентация по предложению

Собираете информацию? Получите подробную презентацию в удобном формате!

БЕЗ КОМИССИИ ID: 57638 Рейтинг6.0 КлассB

Москва, улица Пресненский Вал, 27 с2

Белорусская → 1.03 км
~ 10 мин
Арендная плата в месяц 606 667 ₽ 20 000 ₽/м² в год С учётом НДС
Характеристики 364 м² 2 - 4 этаж Готово к въезду
Преимущества
  • Класс B
  • Пешком от метро
  • Кондиционирование и вентиляция
  • Свой паркинг

Предлагаем в долгосрочную прямую аренду помещение под офис класса B общей площадью 364 кв.м в бизнес-центре... подробнее

Презентация по предложению

Собираете информацию? Получите подробную презентацию в удобном формате!

Посмотреть все похожие предложения
Отнеситесь рационально к процессу поиска нового офиса!

Просто ответьте на 3 вопроса, и наши специалисты сами предложат оптимальные варианты под ваш бюджет

.