8.2
Смотреть все фото
БЕЗ КОМИССИИ ID: 267307 Рейтинг9.1 КлассА

Москва, Последний переулок, 19

Сухаревская → 458 м
~ 5 мин
Арендная плата в месяц 3 504 000 ₽ 69 500 ₽/м² в год С учётом НДС

Презентация по предложению

Собираете информацию? Получите подробную презентацию в удобном формате!

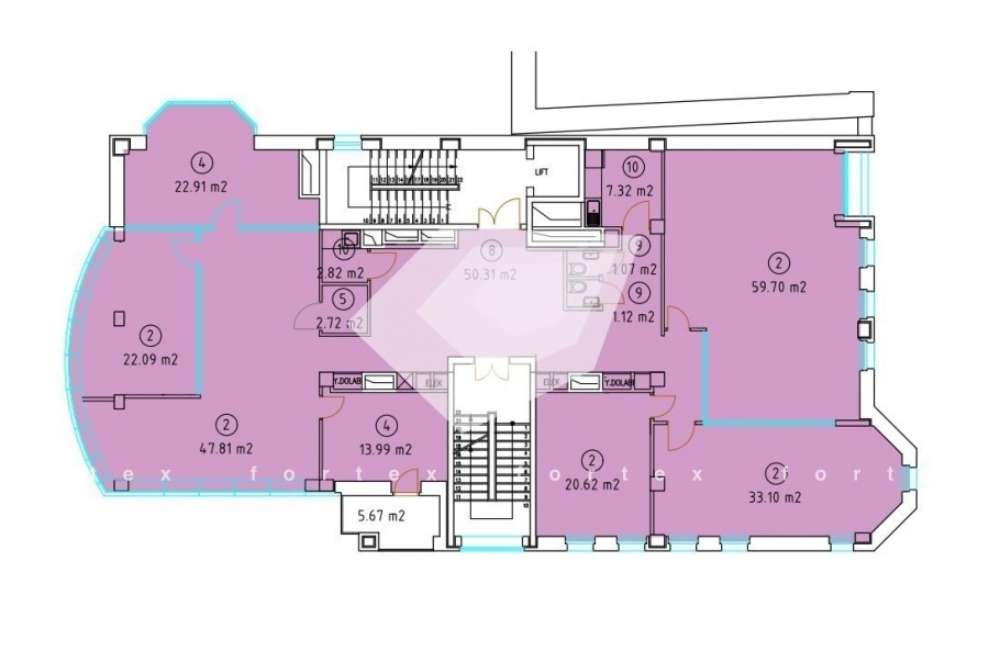
Площадь 605 м²
Состояние Готово к въезду
Планировка Смешанная
Этаж 1 - 2

Описание

Преимущества
  • Класс А
  • Пешком от метро
  • Кондиционирование и вентиляция
  • Свой паркинг
Сдается в долгосрочную аренду офисный блок класса А площадью 605 квадр. метров в бизнес-центре "Сретенка Комплекс".

Москва, ЦАО, Последний переулок, 19

Удобное расположение в пределах Садового кольца:
- Возможность аренды парковочных мест.
- Ближайшее метро: от метро "Сухаревская" всего 5 мин пешком

Офис класса А:
- Помещение готово к въезду
- Вентиляция: Приточно-вытяжная вентиляция
- Кондиционирование: центральное
- Круглосуточная охрана и видеонаблюдение

Возможность заключения контракта в соответствии с 44ФЗ по госзакупкам.

Если предложение предварительно Вам подходит:

1. Получите презентацию в течение 10 минут в Whatsapp или на почту с фотографиями и планировкой, чтобы обсудить данный вариант с коллегами или переслать руководству. Для этого позвоните по телефону, указанному в объявлении.
2. Задайте любые вопросы менеджеру по телефону, готовы обсуждать любые предложения по финансовым условиям договора аренды.
3. Проводим показы ежедневно, договоримся на удобное для Вас время. Можем организовать виртуальный тур по офисному блоку.

Вы можете позвонить нам в любое время. Мы ответим на Ваши вопросы по будням до 19:00, а поздно вечером или в выходные зафиксируем Ваш контакт и перезвоним в рабочее время.

Коммерческие условия

Арендная плата 2 660 980 ₽
Ставка арендной платы 69 500 ₽ м²/год
Эксплуатационные расходы Включены в ставку
Налоги С учётом НДС
Тип договора Прямая аренда
Срок договора Долгосрочный
Размер платежей 3 месяц
Обеспечительный платеж 3 месяц
Статус Сдан

О бизнес-центре

Класс А
Этажность 4
Лифты Есть
Общая площадь 5 800 м²
Год постройки 1996
Паркинг Подземный
Вентиляция приточно-вытяжная
Кондиционирование центральное
Телекоммуникации Интернет/Телефония

Расположение

Подробная презентацию по предложению

Собираете информацию? Получите подробную презентацию в удобном формате, чтобы обсудить вариант с коллегами или переслать руководству!

Похожие предложения в других зданиях

БЕЗ КОМИССИИ ID: 1310159 Рейтинг7.5 КлассА

Москва, Колокольников переулок, 11

Трубная → 529 м
~ 5 мин
Арендная плата в месяц 3 606 750 ₽ 63 000 ₽/м² в год С учётом НДС
Характеристики 687 м² 7 этаж Готово к въезду
Преимущества
  • Класс А
  • Пешком от метро
  • Кондиционирование и вентиляция

Предлагается в долгосрочную аренду офисное помещение класса А общей площадью 687 квадратных метров в бизнес-центре "Европа Хаус"... подробнее

Презентация по предложению

Собираете информацию? Получите подробную презентацию в удобном формате!

БЕЗ КОМИССИИ ID: 1378231 Рейтинг7.9 КлассB

Москва, Милютинский переулок, 13 с1

Сретенский бульвар → 462 м
~ 5 мин
Арендная плата в месяц 3 190 000 ₽ 60 000 ₽/м² в год С учётом НДС
Характеристики 638 м² 6 этаж Готово к въезду
Преимущества
  • Класс B
  • Пешком от метро
  • Кондиционирование и вентиляция
  • Свой паркинг

Сдается в долгосрочную прямую аренду офис класса B площадью 638 квадратных метров в историческом недавно отреконструированном бизнес-центре... подробнее

>

Виртуальный тур

Презентация по предложению

Собираете информацию? Получите подробную презентацию в удобном формате!

БЕЗ КОМИССИИ ID: 1378230 Рейтинг7.9 КлассB

Москва, Милютинский переулок, 13 с1

Сретенский бульвар → 462 м
~ 5 мин
Арендная плата в месяц 3 005 000 ₽ 60 000 ₽/м² в год С учётом НДС
Характеристики 601 м² 5 этаж Готово к въезду
Преимущества
  • Класс B
  • Пешком от метро
  • Кондиционирование и вентиляция
  • Свой паркинг

Сдается в долгосрочную прямую аренду офис класса B площадью 601 кв.м в историческом недавно отреконструированном бизнес-центре... подробнее

>

Виртуальный тур

Презентация по предложению

Собираете информацию? Получите подробную презентацию в удобном формате!

БЕЗ КОМИССИИ ID: 242599 Рейтинг8.3 КлассB

Москва, 1-й Колобовский переулок, 17 с1

Трубная → 398 м
~ 4 мин
Арендная плата в месяц 3 349 500 ₽ 63 000 ₽/м² в год С учётом НДС
Характеристики 638 м² 1 - 4 этаж Готово к въезду
Преимущества
  • Класс B
  • Пешком от метро
  • Кондиционирование и вентиляция
  • Свой паркинг

Предлагается в прямую аренду помещение под офис класса B площадью 638 кв. метров в недавно отреконструированном бизнес-центре... подробнее

Презентация по предложению

Собираете информацию? Получите подробную презентацию в удобном формате!

БЕЗ КОМИССИИ ID: 1298004 Рейтинг9.2 КлассА

Москва, Садовая-Спасская улица, 28

Красные Ворота → 101 м
~ 1 мин
Арендная плата в месяц 2 621 667 ₽ 60 500 ₽/м² в год С учётом НДС
Характеристики 520 м² 4 этаж Готово к въезду
Преимущества
  • Класс А
  • Пешком от метро
  • Кондиционирование и вентиляция
  • Свой паркинг

Предлагаем в долгосрочную аренду офисное помещение класса А общей площадью 520 кв. метров в бизнес-центре... подробнее

>

Виртуальный тур

Презентация по предложению

Собираете информацию? Получите подробную презентацию в удобном формате!

Посмотреть все похожие предложения
Отнеситесь рационально к процессу поиска нового офиса!

Просто ответьте на 3 вопроса, и наши специалисты сами предложат оптимальные варианты под ваш бюджет

.