8.2
Смотреть все фото
БЕЗ КОМИССИИ ID: 1312683 Рейтинг6.6 КлассB
Бизнес-центр «Станция»

Аренда офиса 1067 м²

Москва, Переведеновский переулок, 13 с16

Электрозаводская → 1.4 км
~ 14 мин
Арендная плата в месяц 2 156 700 ₽ 24 300 ₽/м² в год С учётом НДС

Презентация по предложению

Собираете информацию? Получите подробную презентацию в удобном формате!

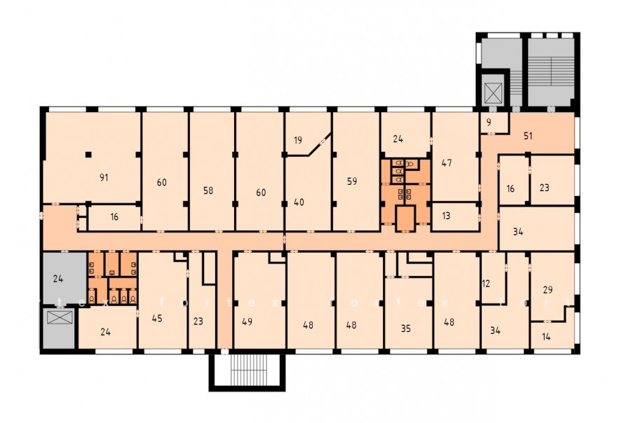
Площадь 1 067 м²
Состояние Готово к въезду
Планировка Кабинетная
Этаж 1

Описание

Преимущества
  • Класс B
  • Пешком от метро
  • Кондиционирование и вентиляция
  • Свой паркинг
  • Развитая инфраструктура
Предлагаем в прямую аренду помещение под офис класса B общей площадью 1067 кв.м в историческом бизнес-центре "Станция".

Москва, ЦАО, Переведеновский переулок, 13 с16

Удобная локация здания:
- Автомобиль: близость транспортных магистралей, таких как Третье Транспортное Кольцо, Большая Черкизовская улица, улица Стромынка, Русаковская улица и других.
- Возможность аренды парковочных мест.
- Ближайшее метро: от метро "Бауманская" всего 16 мин пешком

Офис класса B:
- Помещение с отделкой, готово к въезду
- Вентиляция: Приточно-вытяжная вентиляция
- Кондиционирование: сплит-системы
- Круглосуточная охрана и видеонаблюдение
- Развитая инфраструктура внутри здания

Возможность заключения контракта в соответствии с 44ФЗ по госзакупкам.

Если предложение предварительно Вам подходит:

1. Мы подготовили презентацию с информацией о помещении, фотографиями и планировкой, чтобы Вы могли поделиться ей с коллегами или руководством. Попросите об этом нашего менеджера по телефону в объявлении.
2. Ответим на любые Ваши вопросы, готовы обсуждать любые предложения по коммерческим условиям аренды помещения.
3. Покажем помещение в удобное для Вас время с менеджером в здании, при необходимости подготовим виртуальный тур.

Звоните нам в любое время. По будням мы сможем ответить на Ваши вопросы до 19:00. В выходные или вечернее время мы передадим Ваш контакт нашему менеджеру по аренде.

Коммерческие условия

Арендная плата 2 053 980 ₽
Ставка арендной платы 24 300 ₽ м²/год
Эксплуатационные расходы Включены в ставку
Налоги С учётом НДС
Тип договора Прямая аренда
Срок договора Долгосрочный
Размер платежей 1 месяц
Обеспечительный платеж 2 месяц
Статус Сдан

О бизнес-центре

Класс B
Этажность 7
Лифты Есть
Общая площадь 17 549 м²
Год постройки 1939
Паркинг Наземный
Вентиляция приточно-вытяжная
Кондиционирование сплит-системы
Телекоммуникации Интернет/Телефония

Расположение

Подробная презентацию по предложению

Собираете информацию? Получите подробную презентацию в удобном формате, чтобы обсудить вариант с коллегами или переслать руководству!

Похожие предложения в других зданиях

БЕЗ КОМИССИИ ID: 1317557 Рейтинг7.0 КлассB

Москва, Переведеновский переулок, 13 с6

Бауманская → 1.34 км
~ 13 мин
Арендная плата в месяц 2 102 100 ₽ 24 300 ₽/м² в год С учётом НДС
Характеристики 1 040 м² 1 этаж Готово к въезду
Преимущества
  • Класс B
  • Пешком от метро
  • Кондиционирование и вентиляция
  • Свой паркинг

Предлагаем в долгосрочную аренду офисное помещение класса B общей площадью 1040 кв.м в бизнес-центре... подробнее

Презентация по предложению

Собираете информацию? Получите подробную презентацию в удобном формате!

БЕЗ КОМИССИИ ID: 306671 Рейтинг6.2 КлассB

Москва, Новая Переведеновская улица, 6 с3

Бауманская → 1.16 км
~ 12 мин
Арендная плата в месяц 2 362 500 ₽ 27 000 ₽/м² в год С учётом НДС
Характеристики 1 050 м² 1 - 3 этаж Отделка под арендатора
Преимущества
  • Класс B
  • Пешком от метро
  • Кондиционирование и вентиляция
  • Свой паркинг

Сдаем в долгосрочную прямую аренду офисный блок класса B площадью 1050 квадратных метров в историческом бизнес-центре... подробнее

Презентация по предложению

Собираете информацию? Получите подробную презентацию в удобном формате!

БЕЗ КОМИССИИ ID: 1321918 Рейтинг6.3 КлассB+

Москва, Большая Почтовая улица, 39 с1

Электрозаводская → 1.1 км
~ 11 мин
Арендная плата в месяц 2 380 000 ₽ 30 000 ₽/м² в год С учётом НДС
Характеристики 952 м² -1 - 4 этаж Готово к въезду
Преимущества
  • Класс B+
  • Пешком от метро
  • Кондиционирование и вентиляция
  • Свой паркинг

Сдаем в прямую аренду офисное здание класса B+ общей площадью 952 квадратных метров. .. подробнее

>

Виртуальный тур

Презентация по предложению

Собираете информацию? Получите подробную презентацию в удобном формате!

БЕЗ КОМИССИИ ID: 1302855 Рейтинг6.3 КлассB+

Москва, Большая Почтовая улица, 39 с1

Электрозаводская → 1.1 км
~ 11 мин
Арендная плата в месяц 2 098 731 ₽ 25 700 ₽/м² в год С учётом НДС
Характеристики 979 м² -1 - 4 этаж Готово к въезду
Преимущества
  • Класс B+
  • Пешком от метро
  • Кондиционирование и вентиляция
  • Свой паркинг

Предлагается в прямую аренду офисное помещение класса B+ площадью 971 квадр. метров в бизнес-центре... подробнее

Презентация по предложению

Собираете информацию? Получите подробную презентацию в удобном формате!

ВОЗМОЖНО ОСВОБОЖДЕНИЕ ID: 72509 Рейтинг4.5 КлассB

Москва, 2-й Ирининский переулок, 3

Бауманская → 842 м
~ 8 мин
Арендная плата в месяц 1 916 667 ₽ 23 000 ₽/м² в год С учётом НДС
Характеристики 1 000 м² 1 - 2 этаж Готово к въезду
Преимущества
  • Класс B
  • Пешком от метро

Сдаем в прямую аренду офисный блок класса B общей площадью 1000 квадр. метров в бизнес-центре... подробнее

Презентация по предложению

Собираете информацию? Получите подробную презентацию в удобном формате!

Посмотреть все похожие предложения
Отнеситесь рационально к процессу поиска нового офиса!

Просто ответьте на 3 вопроса, и наши специалисты сами предложат оптимальные варианты под ваш бюджет

.