8.2
Смотреть все фото
БЕЗ КОМИССИИ ID: 220050 Рейтинг8.0 КлассB+

Москва, Старая Басманная улица, 18 с3

Курская → 1.12 км
~ 11 мин
Арендная плата в месяц 893 200 ₽ 23 000 ₽/м² в год С учётом НДС

Презентация по предложению

Собираете информацию? Получите подробную презентацию в удобном формате!

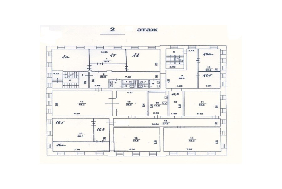
Площадь 466 м²
Состояние Готово к въезду
Планировка Кабинетная
Этаж 2

Описание

Преимущества
  • Класс B+
  • Пешком от метро
  • Кондиционирование и вентиляция
  • Свой паркинг
Предлагаем в долгосрочную прямую аренду офисный блок класса B+ площадью 466 кв.м в бизнес-центре.

Москва, ЦАО, Старая Басманная улица, 18 с3

Удобная локация здания:
- Автомобиль: близость транспортных магистралей, таких как Садовое Кольцо и других.
- Возможность аренды парковочных мест.
- Ближайшее метро: от метро "Курская" всего 12 мин пешком

Офис класса B+:
- Офис с отделкой, полностью готов к аренде
- Вентиляция: Приточно-вытяжная вентиляция
- Кондиционирование: центральное


Если предложение предварительно Вам подходит:

1. Мы отправим Вам подробную презентацию с планировкой и фотографиями в течение 10 минут после звонка, чтобы Вы могли поделиться информацией с руководством или с коллегами.
2. Ответим на любые Ваши вопросы, готовы обсуждать любые предложения по коммерческим условиям аренды помещения.
3. Проводим показы ежедневно, договоримся на удобное для Вас время. Можем организовать виртуальный тур по офисному блоку.

Вы можете позвонить нам в любое время. Мы ответим на Ваши вопросы по будням до 19:00, а поздно вечером или в выходные зафиксируем Ваш контакт и перезвоним в рабочее время.

Коммерческие условия

Арендная плата 893 170 ₽
Ставка арендной платы 23 000 ₽ м²/год
Эксплуатационные расходы Включены в ставку
Налоги С учётом НДС
Тип договора Прямая аренда
Срок договора от 11 месяцев
Размер платежей 1 месяц
Обеспечительный платеж 1 месяц
Статус Сдан

О бизнес-центре

Класс B+
Этажность 4
Лифты Нет
Общая площадь 1 602 м²
Паркинг Наземный
Вентиляция приточно-вытяжная
Кондиционирование центральное
Телекоммуникации Интернет/Телефония

Расположение

Подробная презентацию по предложению

Собираете информацию? Получите подробную презентацию в удобном формате, чтобы обсудить вариант с коллегами или переслать руководству!

Похожие предложения в других зданиях

ВОЗМОЖНО ОСВОБОЖДЕНИЕ ID: 303378 Рейтинг5.7 КлассB

Москва, Гороховский переулок, 14

Курская → 1.12 км
~ 11 мин
Арендная плата в месяц 899 967 ₽ 20 300 ₽/м² в год С учётом НДС
Характеристики 532 м² 1 - 2 этаж Готово к въезду
Преимущества
  • Класс B
  • Пешком от метро
  • Кондиционирование и вентиляция
  • Свой паркинг

Сдается в прямую аренду офисный блок класса B площадью 532 квадр. метров в историческом бизнес-центре... подробнее

>

Виртуальный тур

Презентация по предложению

Собираете информацию? Получите подробную презентацию в удобном формате!

БЕЗ КОМИССИИ ID: 892803 Рейтинг5.7 КлассB

Москва, Гороховский переулок, 14

Курская → 1.12 км
~ 11 мин
Арендная плата в месяц 797 483 ₽ 23 500 ₽/м² в год С учётом НДС
Характеристики 407 м² 1 - 2 этаж Готово к въезду
Преимущества
  • Класс B
  • Пешком от метро
  • Кондиционирование и вентиляция
  • Свой паркинг

Собственник сдает в долгосрочную прямую аренду офисный блок класса B площадью 407 квадратных метров в историческом бизнес-центре... подробнее

Презентация по предложению

Собираете информацию? Получите подробную презентацию в удобном формате!

ВОЗМОЖНО ОСВОБОЖДЕНИЕ ID: 103637 Рейтинг7.8 КлассB+

Москва, Новая Басманная улица, 28 с2

Бауманская → 955 м
~ 10 мин
Арендная плата в месяц 895 833 ₽ 25 000 ₽/м² в год С учётом НДС
Характеристики 430 м² 1 - 2 этаж Готово к въезду
Преимущества
  • Класс B+
  • Пешком от метро
  • Кондиционирование и вентиляция
  • Свой паркинг

Предлагается в прямую аренду помещение под офис класса B+ общей площадью 430 квадр. метров в историческом недавно отреконструированном бизнес-центре "Особняк-Разгуляй"... подробнее

Презентация по предложению

Собираете информацию? Получите подробную презентацию в удобном формате!

БЕЗ КОМИССИИ ID: 305188 Рейтинг6.7 КлассB

Москва, Старая Басманная улица, 38/2 с1

Бауманская → 839 м
~ 8 мин
Арендная плата в месяц 796 667 ₽ 23 900 ₽/м² в год С учётом НДС
Характеристики 400 м² 1 этаж Готово к въезду
Преимущества
  • Класс B
  • Пешком от метро
  • Кондиционирование и вентиляция
  • Свой паркинг

Сдается в долгосрочную прямую аренду помещение под офис класса B площадью 400 кв. метров в бизнес-центре... подробнее

Презентация по предложению

Собираете информацию? Получите подробную презентацию в удобном формате!

БЕЗ КОМИССИИ ID: 192241 Рейтинг8.2 КлассB+

Москва, Путейский тупик, 6

Курская → 287 м
~ 3 мин
Арендная плата в месяц 837 500 ₽ 25 000 ₽/м² в год С учётом НДС
Характеристики 402 м² 3 этаж Готово к въезду
Преимущества
  • Класс B+
  • Пешком от метро
  • Кондиционирование и вентиляция
  • Свой паркинг

Сдается в долгосрочную прямую аренду офисный блок класса B+ площадью 402 квадр. метров в бизнес-центре "Путейский"... подробнее

Презентация по предложению

Собираете информацию? Получите подробную презентацию в удобном формате!

Посмотреть все похожие предложения
Отнеситесь рационально к процессу поиска нового офиса!

Просто ответьте на 3 вопроса, и наши специалисты сами предложат оптимальные варианты под ваш бюджет

.