8.2
Смотреть все фото
БЕЗ КОМИССИИ ID: 1329153 Рейтинг9.3 КлассА

Москва, Дмитровский проезд, вл1Г

Дмитровская → 420 м
~ 4 мин
Стоимость 151.54 млн ₽ 451 000 ₽/м²

Презентация по предложению

Собираете информацию? Получите подробную презентацию в удобном формате!

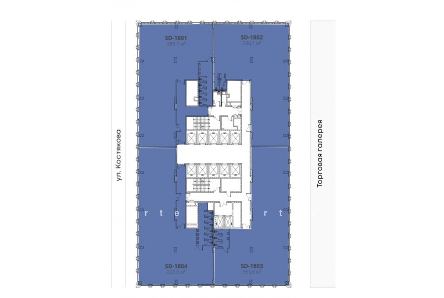
Площадь 336 м²
Состояние Под отделку
Планировка Открытая
Этаж 18

Описание

Преимущества
  • Класс А
  • Пешком от метро
  • Новое строительство
  • Кондиционирование и вентиляция
  • Свой паркинг
В продаже офисный блок площадью 336 квадратных метров в бизнес-центре "STONE Дмитровская".

Помещение можно адаптировать под любой бизнес благодаря функциональной планировке - идеальный баланс комфорта и экономической выгоды. Оптимальное решение для стабильного бизнеса или выгодных инвестиций.

Офис класса А:
- Офис в состоянии shell & core
- Вентиляция: Приточно-вытяжная вентиляция
- Кондиционирование: центральное

О офисном центре:
Москва, САО, Дмитровский проезд, вл1Г

Удобное расположение здания для всех видов транспорта:
- Автомобиль: близость транспортных магистралей, таких как Третье Транспортное Кольцо, Дмитровское шоссе, Бутырская улица и других.
- Возможность аренды парковочных мест.
- Ближайшее метро: от метро "Дмитровская" всего 4 мин пешком



Если данное предложение подходит Вашему запросу:

1. Мы отправим Вам подробную презентацию с планировкой и фотографиями в течение 10 минут после звонка, чтобы Вы могли поделиться информацией с руководством или с коллегами.
2. Мы готовы ответить на любые Ваши вопросы о помещении и коммерческих условиях продажи.

Звоните нам в любое время. По будням мы сможем ответить на Ваши вопросы до 19:00. В выходные или вечернее время мы передадим Ваш контакт нашему менеджеру.

О бизнес-центре

Класс А
Этажность 23
Лифты Есть
Общая площадь 49 000 м²
Год постройки 2026
Паркинг Подземный
Вентиляция приточно-вытяжная
Кондиционирование центральное
Телекоммуникации Интернет/Телефония

Расположение

Подробная презентацию по предложению

Собираете информацию? Получите подробную презентацию в удобном формате, чтобы обсудить вариант с коллегами или переслать руководству!

Похожие предложения в других зданиях

БЕЗ КОМИССИИ ID: 1378535 Рейтинг7.6 КлассB

Москва, Большая Новодмитровская улица, 36 с4

Дмитровская → 640 м
~ 6 мин
Стоимость 39 865 681 ₽ 447 900 ₽/м²
Характеристики 89 м² 3 этаж Готово к въезду
Преимущества
  • Класс B
  • Пешком от метро
  • Кондиционирование и вентиляция
  • Свой паркинг
  • Развитая инфраструктура

Продается офисное помещение площадью 89 кв. метров в бизнес-центре "Флакон". .. подробнее

Презентация по предложению

Собираете информацию? Получите подробную презентацию в удобном формате!

БЕЗ КОМИССИИ ID: 303247 Рейтинг8.1 КлассB+

Москва, Бутырская улица, 62

Дмитровская → 713 м
~ 7 мин
Стоимость 168 000 120 ₽ 346 400 ₽/м²
Характеристики 485 м² 5 - 6 этаж Готово к въезду
Преимущества
  • Класс B+
  • Пешком от метро
  • Кондиционирование и вентиляция
  • Свой паркинг
  • Развитая инфраструктура

Продается офисное помещение площадью 485 кв.м в бизнес-центре "Z-Plaza". .. подробнее

Презентация по предложению

Собираете информацию? Получите подробную презентацию в удобном формате!

БЕЗ КОМИССИИ ID: 303245 Рейтинг8.1 КлассB+

Москва, Бутырская улица, 62

Дмитровская → 713 м
~ 7 мин
Стоимость 85 000 160 ₽ 418 700 ₽/м²
Характеристики 203 м² 6 этаж Готово к въезду
Преимущества
  • Класс B+
  • Пешком от метро
  • Кондиционирование и вентиляция
  • Свой паркинг
  • Развитая инфраструктура

В продаже офис общей площадью 203 кв. метров в бизнес-центре "Z-Plaza". .. подробнее

Презентация по предложению

Собираете информацию? Получите подробную презентацию в удобном формате!

БЕЗ КОМИССИИ ID: 273728 Рейтинг8.1 КлассB+

Москва, Бутырская улица, 62

Дмитровская → 713 м
~ 7 мин
Стоимость 83 000 214 ₽ 294 300 ₽/м²
Характеристики 282 м² 5 этаж Готово к въезду
Преимущества
  • Класс B+
  • Пешком от метро
  • Кондиционирование и вентиляция
  • Свой паркинг
  • Развитая инфраструктура

В продаже офис общей площадью 282 кв. метров в бизнес-центре "Z-Plaza". .. подробнее

Презентация по предложению

Собираете информацию? Получите подробную презентацию в удобном формате!

БЕЗ КОМИССИИ ID: 1379458 Рейтинг8.2 КлассB+

Москва, Новодмитровская улица, 2 к1

Дмитровская → 864 м
~ 9 мин
Стоимость 663 680 000 ₽ 320 000 ₽/м²
Характеристики 1 700 м² 4 этаж Готово к въезду
Преимущества
  • Класс B+
  • Пешком от метро
  • Кондиционирование и вентиляция
  • Развитая инфраструктура

Продается офисный блок площадью 1700 кв. метров в бизнес-центре "Савеловский Сити". .. подробнее

Презентация по предложению

Собираете информацию? Получите подробную презентацию в удобном формате!

Посмотреть все похожие предложения
Отнеситесь рационально к процессу поиска нового офиса!

Просто ответьте на 3 вопроса, и наши специалисты сами предложат оптимальные варианты под ваш бюджет

.