8.2
Смотреть все фото
БЕЗ КОМИССИИ ID: 1314214 Рейтинг9.0 КлассА
Бизнес-центр «STONE Ходынка 2»

Продажа офиса 71 м²

Москва, Ходынский бульвар, 20А/2

ЦСКА → 828 м
~ 8 мин
Стоимость 45.87 млн ₽ 646 000 ₽/м²

Презентация по предложению

Собираете информацию? Получите подробную презентацию в удобном формате!

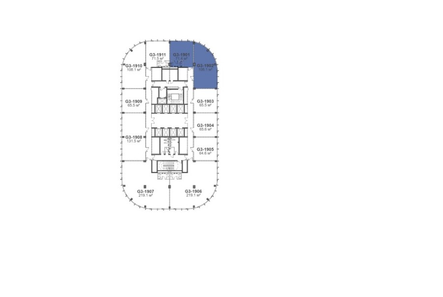
Площадь 71 м²
Состояние Под отделку
Планировка Открытая
Этаж 19

Описание

Преимущества
  • Класс А
  • Пешком от метро
  • Новое строительство
  • Кондиционирование и вентиляция
  • Свой паркинг
Продается офисное помещение общей площадью 71 кв. метров в строящемся бизнес-центре "STONE Ходынка 2". Год ввода в экслуатацию 2028.

Помещение можно адаптировать под любой бизнес благодаря функциональной планировке - идеальный баланс комфорта и экономической выгоды. Оптимальное решение для стабильного бизнеса или выгодных инвестиций.

Офис класса А:
- Помещение без отделки
- Вентиляция: Приточно-вытяжная вентиляция
- Кондиционирование: центральное

О офисном центре:
Москва, САО, Ходынский бульвар, 20А/2

Удобная локация здания:
- Автомобиль: близость транспортных магистралей, таких как Ленинградский проспект и других.
- Возможность аренды парковочных мест.
- Ближайшее метро: от метро "ЦСКА" всего 8 мин пешком



Если предложение предварительно Вам подходит:

1. Мы подготовили презентацию с информацией о помещении, фотографиями и планировкой, чтобы Вы могли поделиться ей с коллегами или руководством. Попросите об этом нашего менеджера по телефону в объявлении.
2. Задайте любые вопросы менеджеру по телефону, готовы обсуждать любые предложения по финансовым условиям договора продажи.

Звоните нам в любое время. По будням мы сможем ответить на Ваши вопросы до 19:00. В выходные или вечернее время мы передадим Ваш контакт нашему менеджеру.

О бизнес-центре

Класс А
Этажность 23
Лифты Есть
Общая площадь 100 000 м²
Год постройки 2028
Паркинг Подземный
Вентиляция приточно-вытяжная
Кондиционирование центральное
Телекоммуникации Интернет/Телефония

Расположение

Подробная презентацию по предложению

Собираете информацию? Получите подробную презентацию в удобном формате, чтобы обсудить вариант с коллегами или переслать руководству!

Похожие предложения в других зданиях

БЕЗ КОМИССИИ ID: 1327776 Рейтинг9.5 КлассА

Москва, Ходынский бульвар, 4/1

ЦСКА → 499 м
~ 5 мин
Стоимость 825 089 200 ₽ 525 200 ₽/м²
Характеристики 1 571 м² 20 этаж Под отделку
Преимущества
  • Класс А
  • Пешком от метро
  • Новое строительство
  • Кондиционирование и вентиляция
  • Свой паркинг

В продаже офисный блок общей площадью 1571 квадратных метров в строящемся бизнес-центре "ЭИР". Год ввода в экслуатацию 2028. .. подробнее

Презентация по предложению

Собираете информацию? Получите подробную презентацию в удобном формате!

БЕЗ КОМИССИИ ID: 1327775 Рейтинг9.5 КлассА

Москва, Ходынский бульвар, 4/1

ЦСКА → 499 м
~ 5 мин
Стоимость 452 323 200 ₽ 593 600 ₽/м²
Характеристики 762 м² 19 этаж Под отделку
Преимущества
  • Класс А
  • Пешком от метро
  • Новое строительство
  • Кондиционирование и вентиляция
  • Свой паркинг

Продается офисное помещение площадью 762 квадратных метров в строящемся бизнес-центре "ЭИР". Год ввода в экслуатацию 2028. .. подробнее

Презентация по предложению

Собираете информацию? Получите подробную презентацию в удобном формате!

БЕЗ КОМИССИИ ID: 1327774 Рейтинг9.5 КлассА

Москва, Ходынский бульвар, 4/1

ЦСКА → 499 м
~ 5 мин
Стоимость 440 952 500 ₽ 582 500 ₽/м²
Характеристики 757 м² 19 этаж Под отделку
Преимущества
  • Класс А
  • Пешком от метро
  • Новое строительство
  • Кондиционирование и вентиляция
  • Свой паркинг

В продаже офисный блок площадью 757 кв.м в строящемся бизнес-центре "ЭИР". Год ввода в экслуатацию 2028. .. подробнее

Презентация по предложению

Собираете информацию? Получите подробную презентацию в удобном формате!

БЕЗ КОМИССИИ ID: 1317413 Рейтинг9.5 КлассА

Москва, Ходынский бульвар, 4/1

ЦСКА → 499 м
~ 5 мин
Стоимость 429 416 400 ₽ 562 800 ₽/м²
Характеристики 763 м² 18 этаж Под отделку
Преимущества
  • Класс А
  • Пешком от метро
  • Новое строительство
  • Кондиционирование и вентиляция
  • Свой паркинг

В продаже офисный блок общей площадью 763 кв. метров в строящемся бизнес-центре "ЭИР". Год ввода в экслуатацию 2028. .. подробнее

Презентация по предложению

Собираете информацию? Получите подробную презентацию в удобном формате!

БЕЗ КОМИССИИ ID: 1327784 Рейтинг9.5 КлассА

Москва, Ходынский бульвар, 4/1

ЦСКА → 499 м
~ 5 мин
Стоимость 420 092 200 ₽ 565 400 ₽/м²
Характеристики 743 м² 19 этаж Под отделку
Преимущества
  • Класс А
  • Пешком от метро
  • Новое строительство
  • Кондиционирование и вентиляция
  • Свой паркинг

В продаже офис площадью 743 квадратных метров в строящемся бизнес-центре "ЭИР". Год ввода в экслуатацию 2028. .. подробнее

Презентация по предложению

Собираете информацию? Получите подробную презентацию в удобном формате!

Посмотреть все похожие предложения
Отнеситесь рационально к процессу поиска нового офиса!

Просто ответьте на 3 вопроса, и наши специалисты сами предложат оптимальные варианты под ваш бюджет

.