8.2
Смотреть все фото
БЕЗ КОМИССИИ ID: 1311568 Рейтинг9.0 КлассА
Бизнес-центр «STONE Калужская»

Продажа офиса 307 м²

Москва, Старокалужское шоссе, 64

Воронцовская → 509 м
~ 5 мин
Стоимость 99.78 млн ₽ 325 000 ₽/м²

Презентация по предложению

Собираете информацию? Получите подробную презентацию в удобном формате!

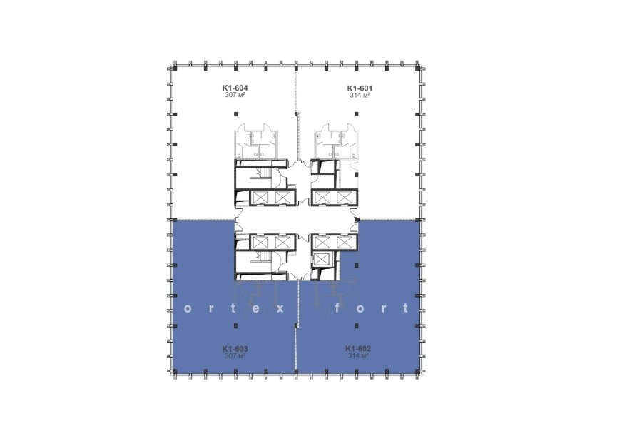
Площадь 307 м²
Состояние Под отделку
Планировка Открытая
Этаж 6

Описание

Преимущества
  • Класс А
  • Пешком от метро
  • Новое строительство
  • Кондиционирование и вентиляция
  • Свой паркинг
В продаже офис площадью 307 квадратных метров в строящемся бизнес-центре "STONE Калужская". Год ввода в экслуатацию 2028.

Помещение можно адаптировать под любой бизнес благодаря функциональной планировке - идеальный баланс комфорта и экономической выгоды. Оптимальное решение для стабильного бизнеса или выгодных инвестиций.

Офис класса А:
- Помещение без отделки
- Вентиляция: Приточно-вытяжная вентиляция
- Кондиционирование: центральное

О офисном центре:
Москва, ЮЗАО, Старокалужское шоссе, 64

Удобное расположение здания для всех видов транспорта:
- Автомобиль: близость транспортных магистралей, таких как Профсоюзная улица, Ленинский проспект и других.
- Возможность аренды парковочных мест.
- Ближайшее метро: от метро "Воронцовская" всего 8 мин пешком



Что еще можно узнать о предложении:

1. Мы подготовили презентацию с информацией о помещении, фотографиями и планировкой, чтобы Вы могли поделиться ей с коллегами или руководством. Попросите об этом нашего менеджера по телефону в объявлении.
2. Задайте любые вопросы менеджеру по телефону, готовы обсуждать любые предложения по финансовым условиям договора продажи.

Вы можете позвонить нам в любое время. Мы ответим на Ваши вопросы по будням до 19:00, а поздно вечером или в выходные сможем передать Ваш контакт нашему менеджеру.

О бизнес-центре

Класс А
Этажность 13
Лифты Есть
Общая площадь 93 000 м²
Год постройки 2028
Паркинг Подземный
Вентиляция приточно-вытяжная
Кондиционирование центральное
Телекоммуникации Интернет/Телефония

Расположение

Подробная презентацию по предложению

Собираете информацию? Получите подробную презентацию в удобном формате, чтобы обсудить вариант с коллегами или переслать руководству!

Похожие предложения в других зданиях

ВОЗМОЖНО ОСВОБОЖДЕНИЕ ID: 1326934 Рейтинг9.5 КлассА

Москва, улица Академика Семенихина, 2

Воронцовская → 291 м
~ 3 мин
Стоимость 263 985 183 ₽ 380 900 ₽/м²
Характеристики 693 м² 19 этаж Готово к въезду
Преимущества
  • Класс А
  • Пешком от метро
  • Новое строительство
  • Кондиционирование и вентиляция
  • Свой паркинг

Продается офисное помещение площадью 693 квадратных метров в строящемся бизнес-центре "Level Воронцовская". Год ввода в экслуатацию 2026. .. подробнее

Презентация по предложению

Собираете информацию? Получите подробную презентацию в удобном формате!

ВОЗМОЖНО ОСВОБОЖДЕНИЕ ID: 1318704 Рейтинг9.5 КлассА

Москва, улица Академика Семенихина, 2

Воронцовская → 291 м
~ 3 мин
Стоимость 257 126 628 ₽ 372 100 ₽/м²
Характеристики 691 м² 16 этаж Под отделку
Преимущества
  • Класс А
  • Пешком от метро
  • Новое строительство
  • Кондиционирование и вентиляция
  • Свой паркинг

Продается офисное помещение площадью 691 кв. метров в строящемся бизнес-центре "Level Воронцовская". Год ввода в экслуатацию 2026. .. подробнее

Презентация по предложению

Собираете информацию? Получите подробную презентацию в удобном формате!

ВОЗМОЖНО ОСВОБОЖДЕНИЕ ID: 1326933 Рейтинг9.5 КлассА

Москва, улица Академика Семенихина, 2

Воронцовская → 291 м
~ 3 мин
Стоимость 232 460 520 ₽ 400 800 ₽/м²
Характеристики 580 м² 19 этаж Готово к въезду
Преимущества
  • Класс А
  • Пешком от метро
  • Новое строительство
  • Кондиционирование и вентиляция
  • Свой паркинг

В продаже офисное помещение площадью 580 кв.м в строящемся бизнес-центре "Level Воронцовская". Год ввода в экслуатацию 2026. .. подробнее

Презентация по предложению

Собираете информацию? Получите подробную презентацию в удобном формате!

ВОЗМОЖНО ОСВОБОЖДЕНИЕ ID: 1318706 Рейтинг9.5 КлассА

Москва, улица Академика Семенихина, 2

Воронцовская → 291 м
~ 3 мин
Стоимость 227 076 380 ₽ 391 500 ₽/м²
Характеристики 580 м² 16 этаж Под отделку
Преимущества
  • Класс А
  • Пешком от метро
  • Новое строительство
  • Кондиционирование и вентиляция
  • Свой паркинг

Продается офисное помещение общей площадью 580 квадратных метров в строящемся бизнес-центре "Level Воронцовская". Год ввода в экслуатацию 2026. .. подробнее

Презентация по предложению

Собираете информацию? Получите подробную презентацию в удобном формате!

ВОЗМОЖНО ОСВОБОЖДЕНИЕ ID: 1323633 Рейтинг9.5 КлассА

Москва, улица Академика Семенихина, 2

Воронцовская → 291 м
~ 3 мин
Стоимость 176 541 882 ₽ 404 000 ₽/м²
Характеристики 437 м² 12 этаж Под отделку
Преимущества
  • Класс А
  • Пешком от метро
  • Новое строительство
  • Кондиционирование и вентиляция
  • Свой паркинг

В продаже офисное помещение общей площадью 437 кв.м в строящемся бизнес-центре "Level Воронцовская". Год ввода в экслуатацию 2026. .. подробнее

Презентация по предложению

Собираете информацию? Получите подробную презентацию в удобном формате!

Посмотреть все похожие предложения
Отнеситесь рационально к процессу поиска нового офиса!

Просто ответьте на 3 вопроса, и наши специалисты сами предложат оптимальные варианты под ваш бюджет