8.2
Смотреть все фото
БЕЗ КОМИССИИ ID: 1311582 Рейтинг9.0 КлассА
Бизнес-центр «STONE Калужская»

Продажа офиса 314 м²

Москва, Старокалужское шоссе, 64

Воронцовская → 509 м
~ 5 мин
Стоимость 109.9 млн ₽ 350 000 ₽/м²

Презентация по предложению

Собираете информацию? Получите подробную презентацию в удобном формате!

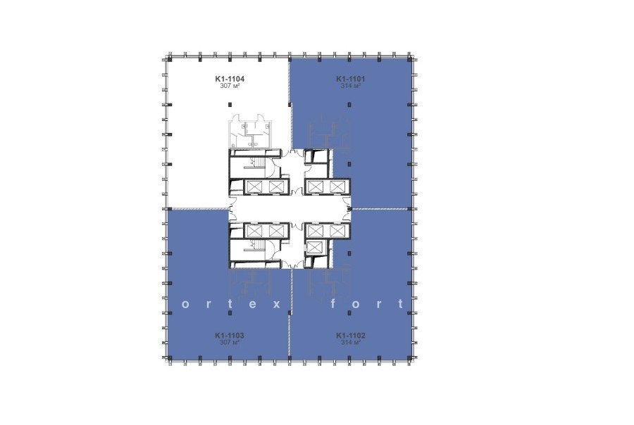
Площадь 314 м²
Состояние Под отделку
Планировка Открытая
Этаж 11

Описание

Преимущества
  • Класс А
  • Пешком от метро
  • Новое строительство
  • Кондиционирование и вентиляция
  • Свой паркинг
Продается офисный блок площадью 314 кв.м в строящемся бизнес-центре "STONE Калужская". Год ввода в экслуатацию 2028.

Помещение можно адаптировать под любой бизнес благодаря функциональной планировке - идеальный баланс комфорта и экономической выгоды. Оптимальное решение для стабильного бизнеса или выгодных инвестиций.

Офис класса А:
- Офис в состоянии shell & core
- Вентиляция: Приточно-вытяжная вентиляция
- Кондиционирование: центральное

О офисном центре:
Москва, ЮЗАО, Старокалужское шоссе, 64

Удобное расположение здания для всех видов транспорта:
- Автомобиль: близость транспортных магистралей, таких как Ленинский проспект, Профсоюзная улица и других.
- Возможность аренды парковочных мест.
- Ближайшее метро: от метро "Воронцовская" всего 5 мин пешком



Что еще можно узнать о предложении:

1. Мы подготовили презентацию с информацией о помещении, фотографиями и планировкой, чтобы Вы могли поделиться ей с коллегами или руководством. Попросите об этом нашего менеджера по телефону в объявлении.
2. Ответим на любые Ваши вопросы, готовы обсуждать любые предложения по коммерческим условиям продажи помещения.

Звоните нам в любое время. По будням мы сможем ответить на Ваши вопросы до 19:00. В выходные или вечернее время мы передадим Ваш контакт нашему менеджеру.

О бизнес-центре

Класс А
Этажность 14
Лифты Есть
Общая площадь 93 000 м²
Год постройки 2028
Паркинг Подземный
Вентиляция приточно-вытяжная
Кондиционирование центральное
Телекоммуникации Интернет/Телефония

Расположение

Подробная презентацию по предложению

Собираете информацию? Получите подробную презентацию в удобном формате, чтобы обсудить вариант с коллегами или переслать руководству!

Похожие предложения в других зданиях

БЕЗ КОМИССИИ ID: 1329504 Рейтинг9.5 КлассА

Москва, улица Академика Семенихина, 2

Воронцовская → 291 м
~ 3 мин
Стоимость 623 453 726 ₽ 459 100 ₽/м²
Характеристики 1 358 м² 21 этаж Под отделку
Преимущества
  • Класс А
  • Пешком от метро
  • Новое строительство
  • Кондиционирование и вентиляция
  • Свой паркинг

В продаже офисное помещение общей площадью 1358 кв. метров в бизнес-центре "Level Воронцовская". .. подробнее

Презентация по предложению

Собираете информацию? Получите подробную презентацию в удобном формате!

БЕЗ КОМИССИИ ID: 1329505 Рейтинг9.5 КлассА

Москва, улица Академика Семенихина, 2

Воронцовская → 291 м
~ 3 мин
Стоимость 619 090 472 ₽ 455 900 ₽/м²
Характеристики 1 358 м² 20 этаж Под отделку
Преимущества
  • Класс А
  • Пешком от метро
  • Новое строительство
  • Кондиционирование и вентиляция
  • Свой паркинг

Продается офисный блок общей площадью 1358 кв.м в бизнес-центре "Level Воронцовская". .. подробнее

Презентация по предложению

Собираете информацию? Получите подробную презентацию в удобном формате!

БЕЗ КОМИССИИ ID: 1376441 Рейтинг9.5 КлассА

Москва, улица Академика Семенихина, 2

Воронцовская → 291 м
~ 3 мин
Стоимость 287 171 577 ₽ 414 400 ₽/м²
Характеристики 693 м² 19 этаж Под отделку
Преимущества
  • Класс А
  • Пешком от метро
  • Новое строительство
  • Кондиционирование и вентиляция
  • Свой паркинг

Продается офис общей площадью 693 кв. метров в бизнес-центре "Level Воронцовская". .. подробнее

Презентация по предложению

Собираете информацию? Получите подробную презентацию в удобном формате!

БЕЗ КОМИССИИ ID: 1376443 Рейтинг9.5 КлассА

Москва, улица Академика Семенихина, 2

Воронцовская → 291 м
~ 3 мин
Стоимость 284 132 290 ₽ 411 200 ₽/м²
Характеристики 691 м² 18 этаж Под отделку
Преимущества
  • Класс А
  • Пешком от метро
  • Новое строительство
  • Кондиционирование и вентиляция
  • Свой паркинг

В продаже офис площадью 691 кв.м в бизнес-центре "Level Воронцовская". .. подробнее

Презентация по предложению

Собираете информацию? Получите подробную презентацию в удобном формате!

БЕЗ КОМИССИИ ID: 1318704 Рейтинг9.5 КлассА

Москва, улица Академика Семенихина, 2

Воронцовская → 291 м
~ 3 мин
Стоимость 281 921 781 ₽ 408 000 ₽/м²
Характеристики 691 м² 17 этаж Под отделку
Преимущества
  • Класс А
  • Пешком от метро
  • Новое строительство
  • Кондиционирование и вентиляция
  • Свой паркинг

В продаже офисное помещение общей площадью 691 кв.м в бизнес-центре "Level Воронцовская". .. подробнее

Презентация по предложению

Собираете информацию? Получите подробную презентацию в удобном формате!

Посмотреть все похожие предложения
Отнеситесь рационально к процессу поиска нового офиса!

Просто ответьте на 3 вопроса, и наши специалисты сами предложат оптимальные варианты под ваш бюджет

.