8.2
Смотреть все фото
БЕЗ КОМИССИИ ID: 1377197 Рейтинг8.5 КлассА
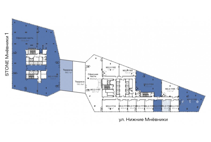
Бизнес-центр «STONE Мневники»

Продажа офиса 49 м²

Москва, улица Нижние Мнёвники, 41

Терехово → 1.26 км
~ 13 мин
Стоимость 39.15 млн ₽ 799 000 ₽/м²

Презентация по предложению

Собираете информацию? Получите подробную презентацию в удобном формате!

Площадь 49 м²
Состояние Под отделку
Планировка Открытая
Этаж 11

Описание

Преимущества
  • Класс А
  • Пешком от метро
  • Новое строительство
  • Кондиционирование и вентиляция
  • Свой паркинг
Продается офис площадью 49 кв. метров в строящемся бизнес-центре "STONE Мневники". Год ввода в экслуатацию 2028.

Помещение можно адаптировать под любой бизнес благодаря функциональной планировке - идеальный баланс комфорта и экономической выгоды. Оптимальное решение для стабильного бизнеса или выгодных инвестиций.

Офис класса А:
- Помещение без отделки
- Вентиляция: Приточно-вытяжная вентиляция
- Кондиционирование: центральное

О офисном центре:
Москва, СЗАО, улица Нижние Мнёвники, 41

Удобная локация здания:
- Автомобиль: близость транспортных магистралей, таких как Рублевское шоссе и других.
- Возможность аренды парковочных мест.
- Ближайшее метро: от метро "Терехово" всего 13 мин пешком



Если предложение предварительно Вам подходит:

1. Мы подготовили презентацию с информацией о помещении, фотографиями и планировкой, чтобы Вы могли поделиться ей с коллегами или руководством. Попросите об этом нашего менеджера по телефону в объявлении.
2. Ответим на любые Ваши вопросы, готовы обсуждать любые предложения по коммерческим условиям продажи помещения.

Вы можете позвонить нам в любое время. Мы ответим на Ваши вопросы по будням до 19:00, а поздно вечером или в выходные сможем передать Ваш контакт нашему менеджеру.

О бизнес-центре

Класс А
Этажность 16
Лифты Есть
Общая площадь 0 м²
Год постройки 2028
Паркинг Подземный
Вентиляция приточно-вытяжная
Кондиционирование центральное
Телекоммуникации Интернет/Телефония

Расположение

Подробная презентацию по предложению

Собираете информацию? Получите подробную презентацию в удобном формате, чтобы обсудить вариант с коллегами или переслать руководству!

Похожие предложения в других зданиях

БЕЗ КОМИССИИ ID: 1376313 Рейтинг8.5 КлассА

Москва, Молдавская улица, 1 с1

Кунцевская → 949 м
~ 9 мин
Стоимость 787 950 000 ₽ 850 000 ₽/м²
Характеристики 927 м² 5 этаж Под отделку
Преимущества
  • Класс А
  • Пешком от метро
  • Новое строительство
  • Кондиционирование и вентиляция
  • Свой паркинг

Продается офисное помещение площадью 927 кв. метров в бизнес-центре "Апсайд Кунцево". .. подробнее

Презентация по предложению

Собираете информацию? Получите подробную презентацию в удобном формате!

БЕЗ КОМИССИИ ID: 1376315 Рейтинг8.5 КлассА

Москва, Молдавская улица, 1 с1

Кунцевская → 949 м
~ 9 мин
Стоимость 786 250 000 ₽ 850 000 ₽/м²
Характеристики 925 м² 6 этаж Под отделку
Преимущества
  • Класс А
  • Пешком от метро
  • Новое строительство
  • Кондиционирование и вентиляция
  • Свой паркинг

В продаже офис площадью 925 кв. метров в бизнес-центре "Апсайд Кунцево". .. подробнее

Презентация по предложению

Собираете информацию? Получите подробную презентацию в удобном формате!

БЕЗ КОМИССИИ ID: 1376317 Рейтинг8.5 КлассА

Москва, Молдавская улица, 1 с1

Кунцевская → 949 м
~ 9 мин
Стоимость 769 250 000 ₽ 850 000 ₽/м²
Характеристики 905 м² 7 этаж Под отделку
Преимущества
  • Класс А
  • Пешком от метро
  • Новое строительство
  • Кондиционирование и вентиляция
  • Свой паркинг

Продается офис общей площадью 905 кв. метров в бизнес-центре "Апсайд Кунцево". .. подробнее

Презентация по предложению

Собираете информацию? Получите подробную презентацию в удобном формате!

БЕЗ КОМИССИИ ID: 1376318 Рейтинг8.5 КлассА

Москва, Молдавская улица, 1 с1

Кунцевская → 949 м
~ 9 мин
Стоимость 759 050 000 ₽ 850 000 ₽/м²
Характеристики 893 м² 6 этаж Под отделку
Преимущества
  • Класс А
  • Пешком от метро
  • Новое строительство
  • Кондиционирование и вентиляция
  • Свой паркинг

В продаже офисное помещение общей площадью 893 квадратных метров в бизнес-центре "Апсайд Кунцево". .. подробнее

Презентация по предложению

Собираете информацию? Получите подробную презентацию в удобном формате!

БЕЗ КОМИССИИ ID: 1323811 Рейтинг8.5 КлассА

Москва, Молдавская улица, 1 с1

Кунцевская → 949 м
~ 9 мин
Стоимость 643 163 700 ₽ 725 100 ₽/м²
Характеристики 887 м² 7 этаж Под отделку
Преимущества
  • Класс А
  • Пешком от метро
  • Новое строительство
  • Кондиционирование и вентиляция
  • Свой паркинг

Продается офис площадью 887 квадратных метров в бизнес-центре "Апсайд Кунцево". .. подробнее

Презентация по предложению

Собираете информацию? Получите подробную презентацию в удобном формате!

Посмотреть все похожие предложения
Отнеситесь рационально к процессу поиска нового офиса!

Просто ответьте на 3 вопроса, и наши специалисты сами предложат оптимальные варианты под ваш бюджет

.