8.2
Смотреть все фото
БЕЗ КОМИССИИ ID: 1309519 Рейтинг10.0 КлассА
Бизнес-центр «STONE Римская»

Продажа офиса 70 м²

Москва, Золоторожский Вал, 11а С2

Римская → 214 м
~ 2 мин
Стоимость 30.8 млн ₽ 440 000 ₽/м²

Презентация по предложению

Собираете информацию? Получите подробную презентацию в удобном формате!

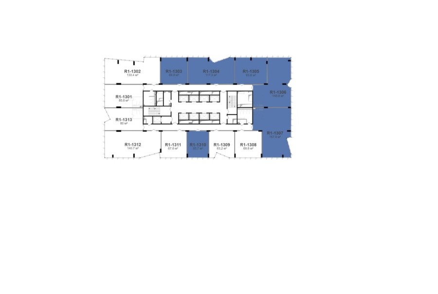
Площадь 70 м²
Состояние Под отделку
Планировка Открытая
Этаж 13

Описание

Преимущества
  • Класс А
  • Пешком от метро
  • Новое строительство
  • Кондиционирование и вентиляция
  • Свой паркинг
В продаже офис площадью 70 квадратных метров в строящемся бизнес-центре "STONE Римская". Год ввода в экслуатацию 2028.

Помещение можно адаптировать под любой бизнес благодаря функциональной планировке - идеальный баланс комфорта и экономической выгоды. Оптимальное решение для стабильного бизнеса или выгодных инвестиций.

Офис класса А:
- Офис в состоянии shell & core
- Вентиляция: Приточно-вытяжная вентиляция
- Кондиционирование: центральное

О офисном центре:
Москва, ЮВАО, Золоторожский Вал, 11а С2

Удобное расположение здания для всех видов транспорта:
- Автомобиль: близость транспортных магистралей, таких как Шоссе Энтузиастов, Третье Транспортное Кольцо и других.
- Возможность аренды парковочных мест.
- Ближайшее метро: буквально 2 мин пешком от метро "Площадь Ильича"



Что еще можно узнать о предложении:

1. Мы подготовили презентацию с информацией о помещении, фотографиями и планировкой, чтобы Вы могли поделиться ей с коллегами или руководством. Попросите об этом нашего менеджера по телефону в объявлении.
2. Ответим на любые Ваши вопросы, готовы обсуждать любые предложения по коммерческим условиям продажи помещения.

Вы можете позвонить нам в любое время. Мы ответим на Ваши вопросы по будням до 19:00, а поздно вечером или в выходные сможем передать Ваш контакт нашему менеджеру.

О бизнес-центре

Класс А
Этажность 23
Лифты Есть
Общая площадь 80 000 м²
Год постройки 2028
Паркинг Подземный
Вентиляция приточно-вытяжная
Кондиционирование центральное
Телекоммуникации Интернет/Телефония

Расположение

Подробная презентацию по предложению

Собираете информацию? Получите подробную презентацию в удобном формате, чтобы обсудить вариант с коллегами или переслать руководству!

Похожие предложения в других зданиях

БЕЗ КОМИССИИ ID: 1312305 Рейтинг6.0 КлассB

Москва, Рабочая улица, 91

Площадь Ильича → 1.63 км
~ 16 мин
Стоимость 199 999 662 ₽ 189 800 ₽/м²
Характеристики 1 054 м² -1 - 3 этаж Готово к въезду
Преимущества
  • Класс B
  • Пешком от метро
  • Кондиционирование и вентиляция
  • Свой паркинг

В продаже офисный блок общей площадью 1054 квадратных метров в бизнес-центре. .. подробнее

Презентация по предложению

Собираете информацию? Получите подробную презентацию в удобном формате!

БЕЗ КОМИССИИ ID: 1328904 Рейтинг7.2 КлассB+

Москва, Большая Андроньевская улица, 17А

Римская → 891 м
~ 9 мин
Стоимость 1 900 862 166 ₽ 117 900 ₽/м²
Характеристики 16 125 м² -1 - 6 этаж Готово к въезду
Преимущества
  • Класс B+
  • Пешком от метро
  • Кондиционирование и вентиляция
  • Свой паркинг

В продаже офисное помещение площадью 16125 квадратных метров в бизнес-центре. .. подробнее

Презентация по предложению

Собираете информацию? Получите подробную презентацию в удобном формате!

БЕЗ КОМИССИИ ID: 1376224 Рейтинг5.6 КлассB

Москва, улица Александра Солженицына, 27

Марксистская → 920 м
~ 9 мин
Стоимость 74 687 360 ₽ 424 400 ₽/м²
Характеристики 176 м² 4 этаж Под отделку
Преимущества
  • Класс B
  • Пешком от метро
  • Кондиционирование и вентиляция
  • Свой паркинг
  • Развитая инфраструктура

В продаже офис общей площадью 176 кв. метров в бизнес-центре "Solo". .. подробнее

Презентация по предложению

Собираете информацию? Получите подробную презентацию в удобном формате!

БЕЗ КОМИССИИ ID: 1376205 Рейтинг5.6 КлассB

Москва, улица Александра Солженицына, 27

Марксистская → 920 м
~ 9 мин
Стоимость 71 988 760 ₽ 416 100 ₽/м²
Характеристики 173 м² 2 этаж Под отделку
Преимущества
  • Класс B
  • Пешком от метро
  • Кондиционирование и вентиляция
  • Свой паркинг
  • Развитая инфраструктура

В продаже офис площадью 173 кв.м в бизнес-центре "Solo". .. подробнее

Презентация по предложению

Собираете информацию? Получите подробную презентацию в удобном формате!

БЕЗ КОМИССИИ ID: 1376213 Рейтинг5.6 КлассB

Москва, улица Александра Солженицына, 27

Марксистская → 920 м
~ 9 мин
Стоимость 71 556 160 ₽ 428 500 ₽/м²
Характеристики 167 м² 3 этаж Под отделку
Преимущества
  • Класс B
  • Пешком от метро
  • Кондиционирование и вентиляция
  • Свой паркинг
  • Развитая инфраструктура

Продается офис общей площадью 167 кв. метров в бизнес-центре "Solo". .. подробнее

Презентация по предложению

Собираете информацию? Получите подробную презентацию в удобном формате!

Посмотреть все похожие предложения
Отнеситесь рационально к процессу поиска нового офиса!

Просто ответьте на 3 вопроса, и наши специалисты сами предложат оптимальные варианты под ваш бюджет

.