8.2
Смотреть все фото
БЕЗ КОМИССИИ ID: 1290455 Рейтинг9.5 КлассА

Москва, улица Двинцев, 3

Савеловская → 495 м
~ 5 мин
Арендная плата в месяц 6 028 300 ₽ 47 200 ₽/м² в год С учётом НДС

Презентация по предложению

Собираете информацию? Получите подробную презентацию в удобном формате!

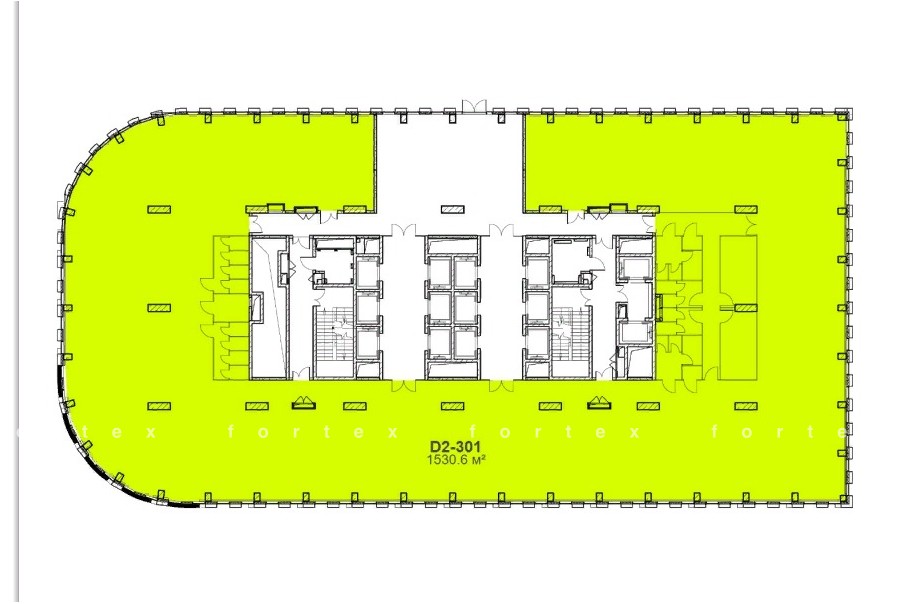
Площадь 1 531 м²
Состояние Под отделку
Планировка Открытая
Этаж 3

Описание

Преимущества
  • Класс А
  • Пешком от метро
  • Новое строительство
  • Кондиционирование и вентиляция
Предлагаем в долгосрочную аренду офис класса А площадью 1531 кв.м в современном бизнес-центре "STONE Савеловская".

Москва, СВАО, улица Двинцев, 3

Удобное расположение здания для всех видов транспорта:
- Автомобиль: близость транспортных магистралей, таких как Дмитровское шоссе, Третье Транспортное Кольцо, Бутырская улица и других.
- Возможность аренды парковочных мест.
- Ближайшее метро: от метро "Савеловская" всего 6 мин пешком

Офис класса А:
- Офис в состоянии shell & core
- Вентиляция: Приточно-вытяжная вентиляция
- Кондиционирование: сплит-системы
- Презентабельный центральный ресепшн
- Круглосуточная охрана и видеонаблюдение

Возможность заключения контракта в соответствии с 44ФЗ по госзакупкам.

Если предложение предварительно Вам подходит:

1. Получите презентацию в течение 10 минут в Whatsapp или на почту с фотографиями и планировкой, чтобы обсудить данный вариант с коллегами или переслать руководству. Для этого позвоните по телефону, указанному в объявлении.
2. Ответим на любые Ваши вопросы, готовы обсуждать любые предложения по коммерческим условиям аренды помещения.
3. Оперативно организуем просмотр помещения с менеджерами на объекте или подготовим виртуальный тур.

Вы можете позвонить нам в любое время. Мы ответим на Ваши вопросы по будням до 19:00, а поздно вечером или в выходные зафиксируем Ваш контакт и перезвоним в рабочее время.

Коммерческие условия

Арендная плата 5 741 250 ₽
Ставка арендной платы 47 200 ₽ м²/год
Эксплуатационные расходы Включены в ставку
Налоги С учётом НДС
Тип договора Прямая аренда
Срок договора Долгосрочный
Размер платежей 1 месяц
Обеспечительный платеж 1 месяц
Статус Сдан

О бизнес-центре

Класс А
Этажность 25
Лифты Есть
Общая площадь 93 000 м²
Год постройки 2024
Паркинг Наземный и подземный
Вентиляция приточно-вытяжная
Кондиционирование сплит-системы
Телекоммуникации Интернет/Телефония

Расположение

Подробная презентацию по предложению

Собираете информацию? Получите подробную презентацию в удобном формате, чтобы обсудить вариант с коллегами или переслать руководству!

Похожие предложения в других зданиях

БЕЗ КОМИССИИ ID: 1380767 Рейтинг6.5 КлассB

Москва, улица Сущёвский Вал, 2

Савеловская → 328 м
~ 3 мин
Арендная плата в месяц 6 428 500 ₽ 51 600 ₽/м² в год С учётом НДС
Характеристики 1 495 м² 2 - 4 этаж Готово к въезду
Преимущества
  • Класс B
  • Пешком от метро

Предлагаем в долгосрочную прямую аренду офисное помещение класса B общей площадью 1495 кв.м в историческом бизнес-центре... подробнее

Презентация по предложению

Собираете информацию? Получите подробную презентацию в удобном формате!

БЕЗ КОМИССИИ ID: 1329559 Рейтинг8.8 КлассА

Москва, улица Сущёвский Вал, 18

Марьина Роща → 926 м
~ 9 мин
Арендная плата в месяц 5 863 250 ₽ 47 000 ₽/м² в год С учётом НДС
Характеристики 1 497 м² 5 этаж Готово к въезду
Преимущества
  • Класс А
  • Пешком от метро
  • Кондиционирование и вентиляция
  • Свой паркинг
  • Несколько провайдеров связи
  • Развитая инфраструктура

Предлагается в прямую аренду офисное помещение класса А площадью 1497 кв. метров в бизнес-центре "NOVO"... подробнее

Презентация по предложению

Собираете информацию? Получите подробную презентацию в удобном формате!

БЕЗ КОМИССИИ ID: 1329561 Рейтинг8.8 КлассА

Москва, улица Сущёвский Вал, 18

Марьина Роща → 926 м
~ 9 мин
Арендная плата в месяц 5 850 000 ₽ 54 000 ₽/м² в год С учётом НДС
Характеристики 1 300 м² 13 этаж Готово к въезду
Преимущества
  • Класс А
  • Пешком от метро
  • Кондиционирование и вентиляция
  • Свой паркинг
  • Несколько провайдеров связи
  • Развитая инфраструктура

Предлагаем в прямую аренду офисное помещение класса А площадью 1300 кв. метров в бизнес-центре "NOVO"... подробнее

Презентация по предложению

Собираете информацию? Получите подробную презентацию в удобном формате!

БЕЗ КОМИССИИ ID: 1380833 Рейтинг8.4 КлассB+

Москва, Вятская улица, 27 с4

Савеловская → 498 м
~ 5 мин
Арендная плата в месяц 6 170 094 ₽ 49 000 ₽/м² в год С учётом НДС
Характеристики 1 512 м² 3 этаж Готово к въезду
Преимущества
  • Класс B+
  • Пешком от метро
  • Кондиционирование и вентиляция
  • Свой паркинг

Сдается в долгосрочную аренду офисное помещение класса B+ площадью 1512 кв.м в бизнес-центре "Фактория"... подробнее

Презентация по предложению

Собираете информацию? Получите подробную презентацию в удобном формате!

БЕЗ КОМИССИИ ID: 1380625 Рейтинг8.4 КлассB+

Москва, Вятская улица, 27 с4

Савеловская → 498 м
~ 5 мин
Арендная плата в месяц 6 156 780 ₽ 44 900 ₽/м² в год С учётом НДС
Характеристики 1 644 м² 3 - 4 этаж Готово к въезду
Преимущества
  • Класс B+
  • Пешком от метро
  • Кондиционирование и вентиляция
  • Свой паркинг

Предлагается в прямую аренду помещение под офис класса B+ площадью 1607 квадратных метров в бизнес-центре "Фактория"... подробнее

Презентация по предложению

Собираете информацию? Получите подробную презентацию в удобном формате!

Посмотреть все похожие предложения
Отнеситесь рационально к процессу поиска нового офиса!

Просто ответьте на 3 вопроса, и наши специалисты сами предложат оптимальные варианты под ваш бюджет

.