8.2
Смотреть все фото
БЕЗ КОМИССИИ ID: 1327350 Рейтинг9.5 КлассА
Бизнес-центр «STONE Савеловская»

Продажа офиса 1825 м²

Москва, улица Двинцев, 3

Савеловская → 495 м
~ 5 мин
Стоимость 1.03 млрд ₽ 566 000 ₽/м²

Презентация по предложению

Собираете информацию? Получите подробную презентацию в удобном формате!

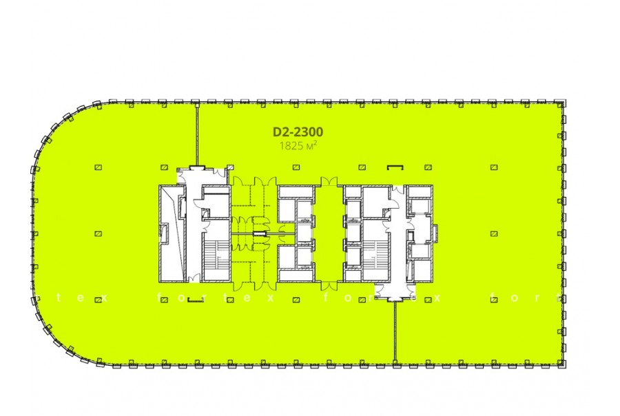
Площадь 1 825 м²
Состояние Под отделку
Планировка Открытая
Этаж 23

Описание

Преимущества
  • Класс А
  • Пешком от метро
  • Новое строительство
  • Кондиционирование и вентиляция
Продается офисный блок общей площадью 1825 кв.м в бизнес-центре "STONE Савеловская".

Помещение можно адаптировать под любой бизнес благодаря функциональной планировке - идеальный баланс комфорта и экономической выгоды. Оптимальное решение для стабильного бизнеса или выгодных инвестиций.

Офис класса А:
- Помещение без отделки
- Вентиляция: Приточно-вытяжная вентиляция
- Кондиционирование: сплит-системы

О офисном центре:
Москва, СВАО, улица Двинцев, 3

Удобное расположение здания для всех видов транспорта:
- Автомобиль: близость транспортных магистралей, таких как Третье Транспортное Кольцо, Дмитровское шоссе, Бутырская улица и других.
- Возможность аренды парковочных мест.
- Ближайшее метро: от метро "Савеловская" всего 5 мин пешком



Если данное предложение подходит Вашему запросу:

1. Мы отправим Вам подробную презентацию с планировкой и фотографиями в течение 10 минут после звонка, чтобы Вы могли поделиться информацией с руководством или с коллегами.
2. Ответим на любые Ваши вопросы, готовы обсуждать любые предложения по коммерческим условиям продажи помещения.

Звоните нам в любое время. По будням мы сможем ответить на Ваши вопросы до 19:00. В выходные или вечернее время мы передадим Ваш контакт нашему менеджеру.

О бизнес-центре

Класс А
Этажность 25
Лифты Есть
Общая площадь 93 000 м²
Год постройки 2024
Паркинг Наземный и подземный
Вентиляция приточно-вытяжная
Кондиционирование сплит-системы
Телекоммуникации Интернет/Телефония

Расположение

Подробная презентацию по предложению

Собираете информацию? Получите подробную презентацию в удобном формате, чтобы обсудить вариант с коллегами или переслать руководству!

Похожие предложения в других зданиях

БЕЗ КОМИССИИ ID: 158387 Рейтинг7.0 КлассB+

Москва, Складочная улица, 1 с15

Савеловская → 678 м
~ 7 мин
Стоимость 915 005 856 ₽ 101 400 ₽/м²
Характеристики 7 400 м² 1 - 6 этаж Готово к въезду
Преимущества
  • Класс B+
  • Пешком от метро
  • Кондиционирование и вентиляция
  • Свой паркинг
  • Несколько провайдеров связи
  • Развитая инфраструктура

В продаже офис общей площадью 7400 кв.м в бизнес-центре "Савеловград". .. подробнее

Презентация по предложению

Собираете информацию? Получите подробную презентацию в удобном формате!

БЕЗ КОМИССИИ ID: 1325254 Рейтинг9.0 КлассB

Москва, Складочная улица, 6

Савеловская → 923 м
~ 9 мин
Стоимость 1 240 262 760 ₽ 327 800 ₽/м²
Характеристики 3 784 м² 7 этаж Под отделку
Преимущества
  • Класс B
  • Пешком от метро
  • Новое строительство
  • Кондиционирование и вентиляция
  • Свой паркинг

В продаже офисное помещение общей площадью 3784 кв. метров в бизнес-центре "Густав". .. подробнее

Презентация по предложению

Собираете информацию? Получите подробную презентацию в удобном формате!

БЕЗ КОМИССИИ ID: 1325253 Рейтинг9.0 КлассB

Москва, Складочная улица, 6

Савеловская → 923 м
~ 9 мин
Стоимость 1 226 897 672 ₽ 324 200 ₽/м²
Характеристики 3 784 м² 6 этаж Под отделку
Преимущества
  • Класс B
  • Пешком от метро
  • Новое строительство
  • Кондиционирование и вентиляция
  • Свой паркинг

Продается офис площадью 3784 квадратных метров в бизнес-центре "Густав". .. подробнее

Презентация по предложению

Собираете информацию? Получите подробную презентацию в удобном формате!

БЕЗ КОМИССИИ ID: 1325197 Рейтинг9.0 КлассB

Москва, Складочная улица, 6

Савеловская → 923 м
~ 9 мин
Стоимость 882 650 054 ₽ 389 500 ₽/м²
Характеристики 2 266 м² 5 этаж Под отделку
Преимущества
  • Класс B
  • Пешком от метро
  • Новое строительство
  • Кондиционирование и вентиляция
  • Свой паркинг

В продаже офисное помещение общей площадью 2266 кв.м в бизнес-центре "Густав". .. подробнее

Презентация по предложению

Собираете информацию? Получите подробную презентацию в удобном формате!

БЕЗ КОМИССИИ ID: 1325203 Рейтинг9.0 КлассB

Москва, Складочная улица, 6

Савеловская → 923 м
~ 9 мин
Стоимость 868 242 826 ₽ 383 200 ₽/м²
Характеристики 2 266 м² 7 этаж Под отделку
Преимущества
  • Класс B
  • Пешком от метро
  • Новое строительство
  • Кондиционирование и вентиляция
  • Свой паркинг

Продается офисное помещение общей площадью 2266 кв.м в бизнес-центре "Густав". .. подробнее

Презентация по предложению

Собираете информацию? Получите подробную презентацию в удобном формате!

Посмотреть все похожие предложения
Отнеситесь рационально к процессу поиска нового офиса!

Просто ответьте на 3 вопроса, и наши специалисты сами предложат оптимальные варианты под ваш бюджет

.