8.2
Смотреть все фото
БЕЗ КОМИССИИ ID: 1311480 Рейтинг7.3 КлассB+
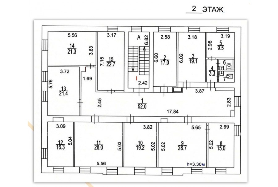
Бизнес-центр «Страстной 13А с2»

Продажа офиса 907 м²

Москва, Страстной бульвар, 13А с2

Пушкинская → 327 м
~ 3 мин
Стоимость 850 млн ₽ 937 200 ₽/м²

Презентация по предложению

Собираете информацию? Получите подробную презентацию в удобном формате!

Площадь 907 м²
Состояние Готово к въезду
Планировка По запросу
Этаж 1 - 3

Описание

Преимущества
  • Класс B+
  • Пешком от метро
  • Кондиционирование и вентиляция
Собственник сдает офисное здание класса B+ площадью 907 квадратных метров.

Москва, ЦАО, Страстной бульвар, 13А с2

Удобное расположение в пределах Садового кольца:
- Ближайшее метро: от метро "Пушкинская" всего 3 мин пешком

Офис класса B+:
- Помещение готово к въезду
- Кондиционирование: центральное

Возможность заключения контракта в соответствии с 44ФЗ по госзакупкам.

Если данное предложение подходит Вашему запросу:

1. Мы подготовили презентацию с информацией о помещении, фотографиями и планировкой, чтобы Вы могли поделиться ей с коллегами или руководством. Попросите об этом нашего менеджера по телефону в объявлении.
2. Мы готовы ответить на любые Ваши вопросы о помещении и коммерческих условиях аренды.
3. Покажем помещение в удобное для Вас время с менеджером в здании, при необходимости подготовим виртуальный тур.

Вы можете позвонить нам в любое время. Мы ответим на Ваши вопросы по будням до 19:00, а поздно вечером или в выходные зафиксируем Ваш контакт и перезвоним в рабочее время.

О бизнес-центре

Класс B+
Этажность 3
Лифты Нет
Общая площадь 472 м²
Год постройки 1917
Паркинг Наземный
Вентиляция естественная
Кондиционирование центральное
Телекоммуникации Интернет/Телефония

Расположение

Подробная презентацию по предложению

Собираете информацию? Получите подробную презентацию в удобном формате, чтобы обсудить вариант с коллегами или переслать руководству!

Похожие предложения в других зданиях

БЕЗ КОМИССИИ ID: 1260433 Рейтинг7.1 КлассB+

Москва, Петровский переулок, 5 с8

Чеховская → 551 м
~ 6 мин
Стоимость 149 999 954 ₽ 590 600 ₽/м²
Характеристики 254 м² -1 - 1 этаж Готово к въезду
Преимущества
  • Класс B+
  • Пешком от метро
  • Кондиционирование и вентиляция

Продается офис общей площадью 254 квадратных метров в жилом комплексе. .. подробнее

>

Виртуальный тур

Презентация по предложению

Собираете информацию? Получите подробную презентацию в удобном формате!

БЕЗ КОМИССИИ ID: 1309276 Рейтинг8.2 КлассB

Москва, Дегтярный переулок, 5 с2

Маяковская → 362 м
~ 5 мин
Стоимость 518 000 000 ₽ 700 000 ₽/м²
Характеристики 740 м² 1 - 4 этаж Готово к въезду
Преимущества
  • Класс B
  • Пешком от метро
  • Кондиционирование и вентиляция
  • Свой паркинг

В продаже офисное помещение общей площадью 740 кв. метров в недавно отреконструированном бизнес-центре. .. подробнее

Презентация по предложению

Собираете информацию? Получите подробную презентацию в удобном формате!

БЕЗ КОМИССИИ ID: 1309273 Рейтинг6.6 КлассB

Москва, Столешников переулок, 6 с3

Охотный Ряд → 661 м
~ 7 мин
Стоимость 1 571 853 000 ₽ 709 000 ₽/м²
Характеристики 2 217 м² -1 - 4 этаж Готово к въезду
Преимущества
  • Класс B
  • Пешком от метро
  • Кондиционирование и вентиляция
  • Свой паркинг

В продаже офисное помещение площадью 2217 кв. метров в бизнес-центре. .. подробнее

Презентация по предложению

Собираете информацию? Получите подробную презентацию в удобном формате!

БЕЗ КОМИССИИ ID: 1262640 Рейтинг7.4 КлассB

Москва, улица Кузнецкий Мост, 4/3 с1

Охотный Ряд → 418 м
~ 4 мин
Стоимость 487 523 075 ₽ 286 300 ₽/м²
Характеристики 1 703 м² 1 - 4 этаж Готово к въезду
Преимущества
  • Класс B
  • Пешком от метро
  • Кондиционирование и вентиляция
  • Развитая инфраструктура

Продается офисный блок общей площадью 1703 кв. метров в недавно отреконструированном бизнес-центре. .. подробнее

Презентация по предложению

Собираете информацию? Получите подробную презентацию в удобном формате!

БЕЗ КОМИССИИ ID: 1379639 Рейтинг8.2 КлассB+

Москва, Большая Садовая улица, 10

Маяковская → 328 м
~ 3 мин
Стоимость 184 200 000 ₽ 600 000 ₽/м²
Характеристики 307 м² 6 этаж Готово к въезду
Преимущества
  • Класс B+
  • Пешком от метро
  • Кондиционирование и вентиляция
  • Развитая инфраструктура

В продаже офисное помещение площадью 307 кв. метров в недавно отреконструированном бизнес-центре "Дом Булгакова". .. подробнее

Презентация по предложению

Собираете информацию? Получите подробную презентацию в удобном формате!

Посмотреть все похожие предложения
Отнеситесь рационально к процессу поиска нового офиса!

Просто ответьте на 3 вопроса, и наши специалисты сами предложат оптимальные варианты под ваш бюджет

.