8.2
Смотреть все фото
БЕЗ КОМИССИИ ID: 897928 Рейтинг7.7 КлассB
Бизнес-центр «Стрелецкий»

Аренда офиса 1000 м²

Москва, улица Большая Молчановка, 30/7 с2

Смоленская → 946 м
~ 9 мин
Арендная плата в месяц 2 583 300 ₽ 31 000 ₽/м² в год С учётом НДС

Презентация по предложению

Собираете информацию? Получите подробную презентацию в удобном формате!

Площадь 1 000 м²
Состояние Готово к въезду
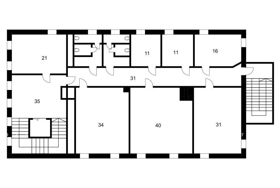
Планировка Кабинетная
Этаж 1 - 4

Описание

Преимущества
  • Класс B
  • Пешком от метро
  • Кондиционирование и вентиляция
  • Свой паркинг
  • Несколько провайдеров связи
Предлагаем в долгосрочную аренду офис класса B общей площадью 1000 квадр. метров в бизнес-центре "Стрелецкий".

Москва, ЦАО, улица Большая Молчановка, 30/7 с2

Удобное расположение в пределах Садового кольца:
- Возможность аренды парковочных мест.
- Ближайшее метро: от метро "Арбатская" всего 12 мин пешком

Офис класса B:
- Офис с отделкой, полностью готов к аренде
- Вентиляция: Приточно-вытяжная вентиляция
- Кондиционирование: центральное

Возможность заключения контракта в соответствии с 44ФЗ по госзакупкам.

Что еще можно узнать о предложении:

1. Получите презентацию в течение 10 минут в Whatsapp или на почту с фотографиями и планировкой, чтобы обсудить данный вариант с коллегами или переслать руководству. Для этого позвоните по телефону, указанному в объявлении.
2. Мы готовы ответить на любые Ваши вопросы о помещении и коммерческих условиях аренды.
3. Проводим показы ежедневно, договоримся на удобное для Вас время. Можем организовать виртуальный тур по офисному блоку.

Звоните нам в любое время. По будням мы сможем ответить на Ваши вопросы до 19:00. В выходные или вечернее время мы передадим Ваш контакт нашему менеджеру по аренде.

Коммерческие условия

Арендная плата 2 777 580 ₽
Ставка арендной платы 31 000 ₽ м²/год
Эксплуатационные расходы Включены в ставку
Налоги С учётом НДС
Тип договора Прямая аренда
Срок договора Долгосрочный
Размер платежей 1 месяц
Обеспечительный платеж 1 месяц
Статус Сдан

О бизнес-центре

Класс B
Этажность 4
Лифты Есть
Общая площадь 1 282 м²
Паркинг Наземный
Вентиляция приточно-вытяжная
Кондиционирование центральное
Телекоммуникации Интернет/Телефония

Расположение

Подробная презентацию по предложению

Собираете информацию? Получите подробную презентацию в удобном формате, чтобы обсудить вариант с коллегами или переслать руководству!

Похожие предложения в других зданиях

БЕЗ КОМИССИИ ID: 1005910 Рейтинг7.1 КлассB+

Москва, улица Новый Арбат, 21

Смоленская → 668 м
~ 7 мин
Арендная плата в месяц 2 431 333 ₽ 28 000 ₽/м² в год С учётом НДС
Характеристики 1 042 м² 12 - 13 этаж Под отделку
Преимущества
  • Класс B+
  • Пешком от метро
  • Кондиционирование и вентиляция
  • Несколько провайдеров связи
  • Развитая инфраструктура

Предлагаем в прямую аренду офисный блок класса B+ общей площадью 1042 кв.м в недавно отреконструированном бизнес-центре "Новый Арбат"... подробнее

Презентация по предложению

Собираете информацию? Получите подробную презентацию в удобном формате!

БЕЗ КОМИССИИ ID: 122592 Рейтинг5.5 КлассB+

Москва, Трубниковский переулок, 6

Смоленская → 533 м
~ 5 мин
Арендная плата в месяц 3 150 000 ₽ 35 000 ₽/м² в год С учётом НДС
Характеристики 1 080 м² 1 - 3 этаж Под отделку
Преимущества
  • Класс B+
  • Пешком от метро
  • Кондиционирование и вентиляция

Сдаем в долгосрочную аренду офисный блок класса B+ площадью 1080 кв.м в бизнес-центре... подробнее

Презентация по предложению

Собираете информацию? Получите подробную презентацию в удобном формате!

БЕЗ КОМИССИИ ID: 165766 Рейтинг7.5 КлассB

Москва, Композиторская улица, 25/5 с1

Смоленская → 434 м
~ 4 мин
Арендная плата в месяц 2 193 333 ₽ 28 000 ₽/м² в год С учётом НДС
Характеристики 940 м² 0 - 3 этаж Готово к въезду
Преимущества
  • Класс B
  • Пешком от метро
  • Кондиционирование и вентиляция
  • Свой паркинг

Предлагается в прямую аренду офис класса B общей площадью 940 квадратных метров в историческом недавно отреконструированном бизнес-центре... подробнее

Презентация по предложению

Собираете информацию? Получите подробную презентацию в удобном формате!

ВОЗМОЖНО ОСВОБОЖДЕНИЕ ID: 457445 Рейтинг8.2 КлассB+

Москва, Новинский бульвар, 3 с1

Смоленская → 278 м
~ 3 мин
Арендная плата в месяц 3 316 250 ₽ 35 000 ₽/м² в год С учётом НДС
Характеристики 1 137 м² 4 - 5 этаж Готово к въезду
Преимущества
  • Класс B+
  • Пешком от метро
  • Кондиционирование и вентиляция
  • Свой паркинг
  • Несколько провайдеров связи

Предлагается в прямую аренду офис класса B+ общей площадью 1137 кв. метров в бизнес-центре... подробнее

Презентация по предложению

Собираете информацию? Получите подробную презентацию в удобном формате!

БЕЗ КОМИССИИ ID: 221515 Рейтинг8.2 КлассB+

Москва, Новинский бульвар, 3 с1

Смоленская → 278 м
~ 3 мин
Арендная плата в месяц 2 591 325 ₽ 29 700 ₽/м² в год С учётом НДС
Характеристики 1 047 м² 1 - 2 этаж Готово к въезду
Преимущества
  • Класс B+
  • Пешком от метро
  • Кондиционирование и вентиляция
  • Свой паркинг
  • Несколько провайдеров связи

Предлагается в долгосрочную аренду помещение под офис класса B+ площадью 1047 квадр. метров в бизнес-центре... подробнее

Презентация по предложению

Собираете информацию? Получите подробную презентацию в удобном формате!

Посмотреть все похожие предложения
Отнеситесь рационально к процессу поиска нового офиса!

Просто ответьте на 3 вопроса, и наши специалисты сами предложат оптимальные варианты под ваш бюджет

.