8.2
Смотреть все фото
БЕЗ КОМИССИИ ID: 897926 Рейтинг7.7 КлассB
Бизнес-центр «Стрелецкий»

Аренда офиса 500 м²

Москва, улица Большая Молчановка, 30/7 с2

Смоленская → 946 м
~ 9 мин
Арендная плата в месяц 1 291 700 ₽ 31 000 ₽/м² в год С учётом НДС

Презентация по предложению

Собираете информацию? Получите подробную презентацию в удобном формате!

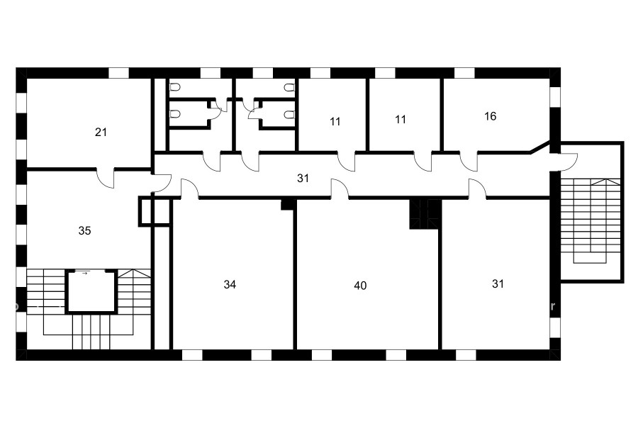
Площадь 500 м²
Состояние Готово к въезду
Планировка Кабинетная
Этаж 1 - 2

Описание

Преимущества
  • Класс B
  • Пешком от метро
  • Кондиционирование и вентиляция
  • Свой паркинг
  • Несколько провайдеров связи
Предлагаем в долгосрочную аренду офисное помещение класса B общей площадью 500 кв.м в бизнес-центре "Стрелецкий".

Москва, ЦАО, улица Большая Молчановка, 30/7 с2

Удобное расположение в пределах Садового кольца:
- Возможность аренды парковочных мест.
- Ближайшее метро: от метро "Арбатская" всего 12 мин пешком

Офис класса B:
- Офис с отделкой, полностью готов к аренде
- Вентиляция: Приточно-вытяжная вентиляция
- Кондиционирование: центральное

Возможность заключения контракта в соответствии с 44ФЗ по госзакупкам.

Если предложение предварительно Вам подходит:

1. Мы отправим Вам подробную презентацию с планировкой и фотографиями в течение 10 минут после звонка, чтобы Вы могли поделиться информацией с руководством или с коллегами.
2. Задайте любые вопросы менеджеру по телефону, готовы обсуждать любые предложения по финансовым условиям договора аренды.
3. Оперативно организуем просмотр помещения с менеджерами на объекте или подготовим виртуальный тур.

Звоните нам в любое время. По будням мы сможем ответить на Ваши вопросы до 19:00. В выходные или вечернее время мы передадим Ваш контакт нашему менеджеру по аренде.

Коммерческие условия

Арендная плата 1 388 790 ₽
Ставка арендной платы 31 000 ₽ м²/год
Эксплуатационные расходы Включены в ставку
Налоги С учётом НДС
Тип договора Прямая аренда
Срок договора Долгосрочный
Размер платежей 1 месяц
Обеспечительный платеж 1 месяц
Статус Сдан

О бизнес-центре

Класс B
Этажность 4
Лифты Есть
Общая площадь 1 282 м²
Паркинг Наземный
Вентиляция приточно-вытяжная
Кондиционирование центральное
Телекоммуникации Интернет/Телефония

Расположение

Подробная презентацию по предложению

Собираете информацию? Получите подробную презентацию в удобном формате, чтобы обсудить вариант с коллегами или переслать руководству!

Похожие предложения в других зданиях

БЕЗ КОМИССИИ ID: 217879 Рейтинг7.1 КлассB+

Москва, улица Новый Арбат, 21

Смоленская → 668 м
~ 7 мин
Арендная плата в месяц 1 213 333 ₽ 28 000 ₽/м² в год С учётом НДС
Характеристики 520 м² 17 этаж Готово к въезду
Преимущества
  • Класс B+
  • Пешком от метро
  • Кондиционирование и вентиляция
  • Несколько провайдеров связи
  • Развитая инфраструктура

Предлагаем в долгосрочную прямую аренду офисный блок класса B+ площадью 520 кв. метров в недавно отреконструированном бизнес-центре "Новый Арбат"... подробнее

Презентация по предложению

Собираете информацию? Получите подробную презентацию в удобном формате!

БЕЗ КОМИССИИ ID: 59122 Рейтинг7.5 КлассB

Москва, Композиторская улица, 25/5 с1

Смоленская → 434 м
~ 4 мин
Арендная плата в месяц 1 618 750 ₽ 35 000 ₽/м² в год С учётом НДС
Характеристики 555 м² -1 - 1 этаж Готово к въезду
Преимущества
  • Класс B
  • Пешком от метро
  • Кондиционирование и вентиляция
  • Свой паркинг

Собственник сдает в долгосрочную аренду офисное помещение класса B площадью 555 квадр. метров в историческом недавно отреконструированном бизнес-центре... подробнее

Презентация по предложению

Собираете информацию? Получите подробную презентацию в удобном формате!

БЕЗ КОМИССИИ ID: 145663 Рейтинг7.5 КлассB

Москва, Композиторская улица, 25/5 с1

Смоленская → 434 м
~ 4 мин
Арендная плата в месяц 1 180 000 ₽ 30 000 ₽/м² в год С учётом НДС
Характеристики 472 м² 1 - 2 этаж Готово к въезду
Преимущества
  • Класс B
  • Пешком от метро
  • Кондиционирование и вентиляция
  • Свой паркинг

Предлагаем в долгосрочную прямую аренду помещение под офис класса B общей площадью 472 квадратных метров в историческом недавно отреконструированном бизнес-центре... подробнее

Презентация по предложению

Собираете информацию? Получите подробную презентацию в удобном формате!

БЕЗ КОМИССИИ ID: 192376 Рейтинг6.8 КлассB

Москва, Карманицкий переулок, 4 с2

Смоленская → 357 м
~ 4 мин
Арендная плата в месяц 1 531 250 ₽ 35 000 ₽/м² в год С учётом НДС
Характеристики 525 м² 0 - 3 этаж Готово к въезду
Преимущества
  • Класс B
  • Пешком от метро
  • Кондиционирование и вентиляция
  • Свой паркинг

Предлагаем в долгосрочную прямую аренду офисное помещение класса B общей площадью 525 кв.м в историческом бизнес-центре... подробнее

Презентация по предложению

Собираете информацию? Получите подробную презентацию в удобном формате!

ВОЗМОЖНО ОСВОБОЖДЕНИЕ ID: 457444 Рейтинг8.2 КлассB+

Москва, Новинский бульвар, 3 с1

Смоленская → 278 м
~ 3 мин
Арендная плата в месяц 1 656 667 ₽ 35 000 ₽/м² в год С учётом НДС
Характеристики 568 м² 5 этаж Готово к въезду
Преимущества
  • Класс B+
  • Пешком от метро
  • Кондиционирование и вентиляция
  • Свой паркинг
  • Несколько провайдеров связи

Сдается в долгосрочную прямую аренду офисное помещение класса B+ площадью 568 кв. метров в бизнес-центре... подробнее

>

Виртуальный тур

Презентация по предложению

Собираете информацию? Получите подробную презентацию в удобном формате!

Посмотреть все похожие предложения
Отнеситесь рационально к процессу поиска нового офиса!

Просто ответьте на 3 вопроса, и наши специалисты сами предложат оптимальные варианты под ваш бюджет

.