8.2
Смотреть все фото
БЕЗ КОМИССИИ ID: 260289 Рейтинг7.9 КлассB+

Москва, шоссе Энтузиастов, 34

Шоссе Энтузиастов → 1.2 км
~ 12 мин
Арендная плата в месяц 958 300 ₽ 12 500 ₽/м² в год С учётом НДС

Презентация по предложению

Собираете информацию? Получите подробную презентацию в удобном формате!

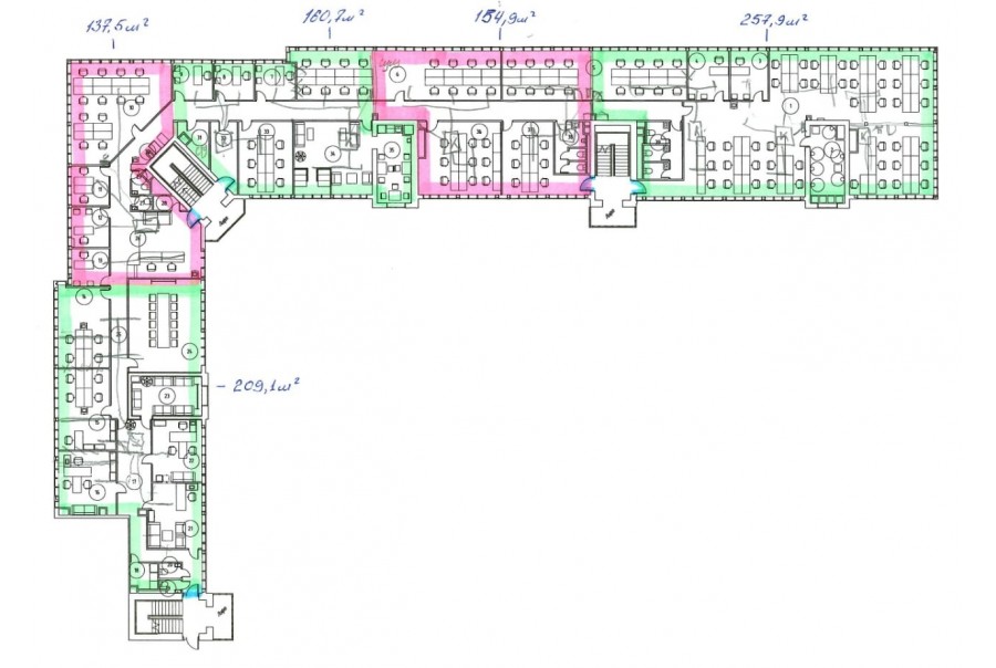
Площадь 920 м²
Состояние Готово к въезду
Планировка Смешанная
Этаж 5

Описание

Преимущества
  • Класс B+
  • Пешком от метро
  • Кондиционирование и вентиляция
  • Свой паркинг
Сдается в долгосрочную прямую аренду помещение под офис класса B+ площадью 920 квадр. метров в бизнес-центре "СтримЛайн Плаза".

Москва, ВАО, шоссе Энтузиастов, 34

Удобная локация здания:
- Автомобиль: близость транспортных магистралей, таких как Шоссе Энтузиастов и других.
- Возможность аренды парковочных мест.
- Ближайшее метро: от метро "Шоссе Энтузиастов" всего 13 мин пешком

Офис класса B+:
- Офис с отделкой, полностью готов к аренде
- Вентиляция: Приточно-вытяжная вентиляция
- Кондиционирование: центральное
- Презентабельный центральный ресепшн
- Круглосуточная охрана и видеонаблюдение


Что еще можно узнать о предложении:

1. Мы подготовили презентацию с информацией о помещении, фотографиями и планировкой, чтобы Вы могли поделиться ей с коллегами или руководством. Попросите об этом нашего менеджера по телефону в объявлении.
2. Задайте любые вопросы менеджеру по телефону, готовы обсуждать любые предложения по финансовым условиям договора аренды.
3. Оперативно организуем просмотр помещения с менеджерами на объекте или подготовим виртуальный тур.

Звоните нам в любое время. По будням мы сможем ответить на Ваши вопросы до 19:00. В выходные или вечернее время мы передадим Ваш контакт нашему менеджеру по аренде.

Коммерческие условия

Арендная плата 958 330 ₽
Ставка арендной платы 12 500 ₽ м²/год
Эксплуатационные расходы Включены в ставку
Налоги С учётом НДС
Тип договора Прямая аренда
Срок договора Краткосрочный
Размер платежей - месяц
Обеспечительный платеж - месяц
Статус Сдан

О бизнес-центре

Класс B+
Этажность 5
Лифты Есть
Общая площадь 13 087 м²
Год постройки 2013
Паркинг Наземный
Вентиляция приточно-вытяжная
Кондиционирование центральное
Телекоммуникации Интернет/Телефония

Расположение

Подробная презентацию по предложению

Собираете информацию? Получите подробную презентацию в удобном формате, чтобы обсудить вариант с коллегами или переслать руководству!

Похожие предложения в других зданиях

БЕЗ КОМИССИИ ID: 234809 Рейтинг7.5 КлассB

Москва, проспект Будённого, 32А

Шоссе Энтузиастов → 1.22 км
~ 12 мин
Арендная плата в месяц 1 148 333 ₽ 13 000 ₽/м² в год С учётом НДС
Характеристики 1 060 м² 1 - 3 этаж Готово к въезду
Преимущества
  • Класс B
  • Пешком от метро
  • Кондиционирование и вентиляция
  • Свой паркинг

Предлагается в долгосрочную аренду офисный блок класса B общей площадью 1060 квадр. метров в историческом бизнес-центре... подробнее

Презентация по предложению

Собираете информацию? Получите подробную презентацию в удобном формате!

БЕЗ КОМИССИИ ID: 652665 Рейтинг7.0 КлассB

Москва, Электродная улица, 2 с18

Шоссе Энтузиастов → 595 м
~ 6 мин
Арендная плата в месяц 1 000 000 ₽ 12 000 ₽/м² в год С учётом НДС
Характеристики 1 000 м² 1 - 4 этаж Готово к въезду
Преимущества
  • Класс B
  • Пешком от метро
  • Кондиционирование и вентиляция
  • Свой паркинг

Собственник сдает в долгосрочную прямую аренду офис класса B общей площадью 1000 квадратных метров в бизнес-центре... подробнее

Презентация по предложению

Собираете информацию? Получите подробную презентацию в удобном формате!

БЕЗ КОМИССИИ ID: 264361 Рейтинг7.0 КлассB

Москва, Электродная улица, 2 с18

Шоссе Энтузиастов → 595 м
~ 6 мин
Арендная плата в месяц 840 000 ₽ 11 200 ₽/м² в год С учётом НДС
Характеристики 900 м² 1 - 5 этаж Готово к въезду
Преимущества
  • Класс B
  • Пешком от метро
  • Кондиционирование и вентиляция
  • Свой паркинг

Собственник сдает в долгосрочную прямую аренду офисное помещение класса B площадью 900 кв. метров в бизнес-центре... подробнее

Презентация по предложению

Собираете информацию? Получите подробную презентацию в удобном формате!

БЕЗ КОМИССИИ ID: 6812 Рейтинг8.5 КлассB

Москва, шоссе Энтузиастов, 28

Авиамоторная → 420 м
~ 4 мин
Арендная плата в месяц 887 000 ₽ 12 000 ₽/м² в год С учётом НДС
Характеристики 887 м² 4 этаж Готово к въезду
Преимущества
  • Класс B
  • Пешком от метро
  • Кондиционирование и вентиляция
  • Свой паркинг

Предлагаем в долгосрочную прямую аренду офисное помещение класса B площадью 887 кв. метров в бизнес-центре "Компрессор"... подробнее

Презентация по предложению

Собираете информацию? Получите подробную презентацию в удобном формате!

БЕЗ КОМИССИИ ID: 264009 Рейтинг6.7 КлассB

Москва, проезд Энтузиастов, 11

Авиамоторная → 1.09 км
~ 11 мин
Арендная плата в месяц 1 000 000 ₽ 12 000 ₽/м² в год С учётом НДС
Характеристики 1 000 м² 1 - 7 этаж Готово к въезду
Преимущества
  • Класс B
  • Пешком от метро
  • Кондиционирование и вентиляция
  • Свой паркинг

Предлагается в долгосрочную прямую аренду офисное помещение класса B общей площадью 1000 квадр. метров в бизнес-центре... подробнее

Презентация по предложению

Собираете информацию? Получите подробную презентацию в удобном формате!

Посмотреть все похожие предложения
Отнеситесь рационально к процессу поиска нового офиса!

Просто ответьте на 3 вопроса, и наши специалисты сами предложат оптимальные варианты под ваш бюджет

.