8.2
Смотреть все фото
БЕЗ КОМИССИИ ID: 1372724 Рейтинг8.0 КлассА
Бизнес-центр «STROGINO by Parade Pro»

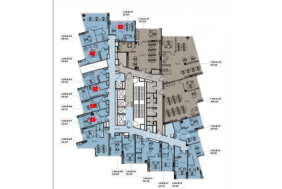
Продажа офиса 44 м²

Москва, улица Маршала Прошлякова, 21

Строгино → 2.73 км
~ 27 мин
Стоимость 20.79 млн ₽ 472 400 ₽/м²

Презентация по предложению

Собираете информацию? Получите подробную презентацию в удобном формате!

Площадь 44 м²
Состояние Под отделку
Планировка Открытая
Этаж 9

Описание

Преимущества
  • Класс А
  • Пешком от метро
  • Новое строительство
  • Кондиционирование и вентиляция
  • Свой паркинг
Продается офис площадью 44 квадратных метров в строящемся бизнес-центре "STROGINO by Parade Pro". Год ввода в экслуатацию 2027.

Помещение можно адаптировать под любой бизнес благодаря функциональной планировке - идеальный баланс комфорта и экономической выгоды. Оптимальное решение для стабильного бизнеса или выгодных инвестиций.

Офис класса А:
- Офис в состоянии shell & core
- Вентиляция: Приточно-вытяжная вентиляция
- Кондиционирование: сплит-системы

О офисном центре:
Москва, СЗАО, улица Маршала Прошлякова, 21

Характеристики местоположения:
- Автомобиль: близость транспортных магистралей, таких как МКАД, Проспект Маршала Жукова и других.
- Возможность аренды парковочных мест.
- Ближайшее метро: метро "Строгино", далее городской транспорт до здания



Если предложение предварительно Вам подходит:

1. Мы подготовили презентацию с информацией о помещении, фотографиями и планировкой, чтобы Вы могли поделиться ей с коллегами или руководством. Попросите об этом нашего менеджера по телефону в объявлении.
2. Задайте любые вопросы менеджеру по телефону, готовы обсуждать любые предложения по финансовым условиям договора продажи.

Звоните нам в любое время. По будням мы сможем ответить на Ваши вопросы до 19:00. В выходные или вечернее время мы передадим Ваш контакт нашему менеджеру.

О бизнес-центре

Класс А
Этажность 14
Лифты Есть
Общая площадь 28 390 м²
Год постройки 2027
Паркинг Подземный
Вентиляция приточно-вытяжная
Кондиционирование сплит-системы
Телекоммуникации Интернет/Телефония

Расположение

Подробная презентацию по предложению

Собираете информацию? Получите подробную презентацию в удобном формате, чтобы обсудить вариант с коллегами или переслать руководству!

Похожие предложения в других зданиях

БЕЗ КОМИССИИ ID: 1374149 Рейтинг8.0 КлассА

Москва, улица Маршала Прошлякова, 30

Строгино → 2.9 км
~ 12 мин
Стоимость 30 000 050 ₽ 130 400 ₽/м²
Характеристики 230 м² 3 этаж Готово к въезду
Преимущества
  • Класс А
  • Кондиционирование и вентиляция
  • Свой паркинг

Продается офис площадью 230 кв.м в бизнес-центре "Зенит Плаза". .. подробнее

Презентация по предложению

Собираете информацию? Получите подробную презентацию в удобном формате!

БЕЗ КОМИССИИ ID: 306430 Рейтинг5.5 КлассB

Москва, Волоколамское шоссе, 103

Мякинино → 1.86 км
~ 19 мин
Стоимость 528 539 697 ₽ 74 700 ₽/м²
Характеристики 5 800 м² 2 - 4 этаж Готово к въезду
Преимущества
  • Класс B
  • Пешком от метро
  • Кондиционирование и вентиляция

Продается офисный блок общей площадью 5800 кв.м в Офисно-торговом центре "Гвоздь". .. подробнее

Презентация по предложению

Собираете информацию? Получите подробную презентацию в удобном формате!

БЕЗ КОМИССИИ ID: 1313259 Рейтинг5.9 КлассB

Москва, Волоколамское шоссе, 87 с1

Тушинская → 1.65 км
~ 17 мин
Стоимость 1 219 997 926 ₽ 197 000 ₽/м²
Характеристики 5 075 м² -1 - 3 этаж Готово к въезду
Преимущества
  • Класс B
  • Пешком от метро
  • Кондиционирование и вентиляция
  • Свой паркинг

Продается офис площадью 5075 кв. метров в бизнес-центре. .. подробнее

Презентация по предложению

Собираете информацию? Получите подробную презентацию в удобном формате!

БЕЗ КОМИССИИ ID: 1329435 Рейтинг9.0 КлассА

Москва, Полесский проезд, 16

Щукинская → 564 м
~ 6 мин
Стоимость 203 739 000 ₽ 360 600 ₽/м²
Характеристики 565 м² 19 этаж Под отделку
Преимущества
  • Класс А
  • Пешком от метро
  • Новое строительство
  • Кондиционирование и вентиляция
  • Свой паркинг

В продаже офисное помещение площадью 565 кв. метров в строящемся бизнес-центре "JENGA". Год ввода в экслуатацию 42588. .. подробнее

Презентация по предложению

Собираете информацию? Получите подробную презентацию в удобном формате!

БЕЗ КОМИССИИ ID: 1329437 Рейтинг9.0 КлассА

Москва, Полесский проезд, 16

Щукинская → 564 м
~ 6 мин
Стоимость 181 967 500 ₽ 357 500 ₽/м²
Характеристики 509 м² 19 этаж Под отделку
Преимущества
  • Класс А
  • Пешком от метро
  • Новое строительство
  • Кондиционирование и вентиляция
  • Свой паркинг

В продаже офис площадью 509 квадратных метров в строящемся бизнес-центре "JENGA". Год ввода в экслуатацию 42588. .. подробнее

Презентация по предложению

Собираете информацию? Получите подробную презентацию в удобном формате!

Посмотреть все похожие предложения
Отнеситесь рационально к процессу поиска нового офиса!

Просто ответьте на 3 вопроса, и наши специалисты сами предложат оптимальные варианты под ваш бюджет

.