8.2
Смотреть все фото
БЕЗ КОМИССИИ ID: 233890 Рейтинг7.3 КлассB
Бизнес-центр «Сущёвский 31 с1»

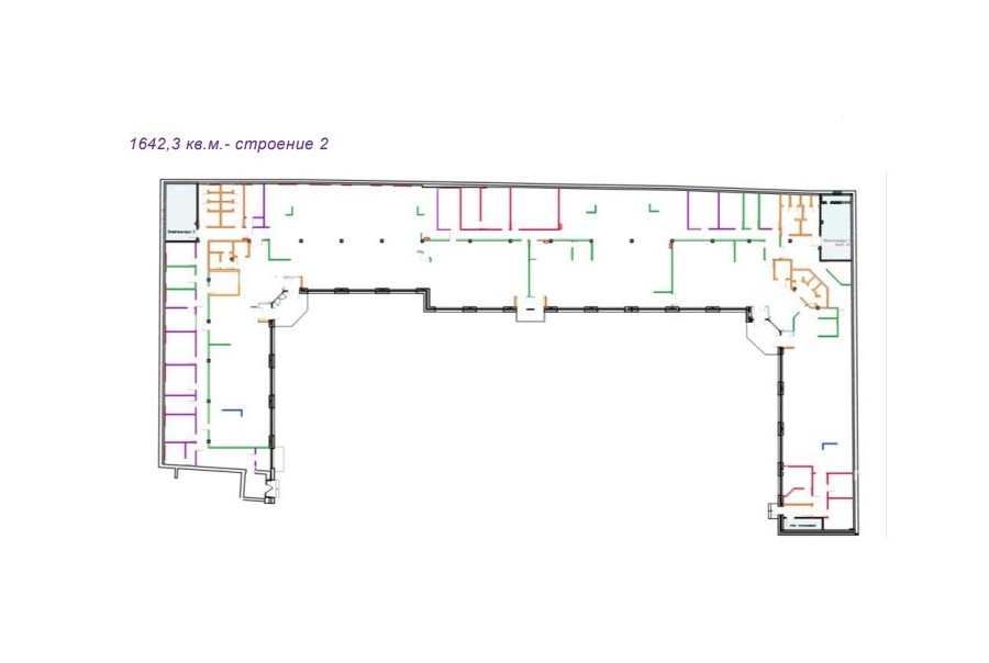
Аренда офиса 1642 м²

Москва, улица Сущёвский Вал, 31 с1

Марьина Роща → 910 м
~ 9 мин
Арендная плата в месяц 2 873 500 ₽ 21 000 ₽/м² в год С учётом НДС

Презентация по предложению

Собираете информацию? Получите подробную презентацию в удобном формате!

Площадь 1 642 м²
Состояние Готово к въезду
Планировка Смешанная
Этаж 1

Описание

Преимущества
  • Класс B
  • Пешком от метро
  • Кондиционирование и вентиляция
  • Свой паркинг
  • Развитая инфраструктура
Сдаем в прямую аренду офисный блок класса B общей площадью 1642 кв.м в бизнес-центре.

Москва, СВАО, улица Сущевский Вал, 31 с1

Удобная локация здания:
- Автомобиль: близость транспортных магистралей, таких как Третье Транспортное Кольцо, Проспект Мира, Бутырская улица и других.
- Возможность аренды парковочных мест.
- Ближайшее метро: от метро "Марьина Роща" всего 11 мин пешком

Офис класса B:
- Офис с отделкой, полностью готов к аренде
- Вентиляция: Приточно-вытяжная вентиляция
- Кондиционирование: центральное
- Круглосуточная охрана и видеонаблюдение
- Развитая инфраструктура внутри здания

Возможность заключения контракта в соответствии с 44ФЗ по госзакупкам.

Если данное предложение подходит Вашему запросу:

1. Получите презентацию в течение 10 минут в Whatsapp или на почту с фотографиями и планировкой, чтобы обсудить данный вариант с коллегами или переслать руководству. Для этого позвоните по телефону, указанному в объявлении.
2. Мы готовы ответить на любые Ваши вопросы о помещении и коммерческих условиях аренды.
3. Оперативно организуем просмотр помещения, договоримся на любое удобное время, подготовим виртуальный тур.

Вы можете позвонить нам в любое время. Мы ответим на Ваши вопросы по будням до 19:00, а поздно вечером или в выходные сможем передать Ваш контакт нашему менеджеру.

Коммерческие условия

Арендная плата 2 873 500 ₽
Ставка арендной платы 21 000 ₽ м²/год
Эксплуатационные расходы Включены в ставку
Налоги С учётом НДС
Тип договора Прямая аренда
Срок договора от 11 месяцев
Размер платежей 1 месяц
Обеспечительный платеж 2 месяц
Статус Сдан

О бизнес-центре

Класс B
Этажность 3
Лифты Нет
Общая площадь 9 087 м²
Год постройки 2011
Паркинг Наземный
Вентиляция приточно-вытяжная
Кондиционирование центральное
Телекоммуникации Интернет/Телефония

Расположение

Подробная презентацию по предложению

Собираете информацию? Получите подробную презентацию в удобном формате, чтобы обсудить вариант с коллегами или переслать руководству!

Похожие предложения в других зданиях

БЕЗ КОМИССИИ ID: 176985 Рейтинг7.7 КлассB+

Москва, улица Образцова, 21А

Марьина Роща → 676 м
~ 7 мин
Арендная плата в месяц 2 821 500 ₽ 18 000 ₽/м² в год С учётом НДС
Характеристики 1 881 м² 2 - 4 этаж Готово к въезду
Преимущества
  • Класс B+
  • Пешком от метро
  • Кондиционирование и вентиляция
  • Свой паркинг

Сдается в долгосрочную аренду помещение под офис класса B+ площадью 1881 квадратных метров в бизнес-центре "Образцова 21 а"... подробнее

Презентация по предложению

Собираете информацию? Получите подробную презентацию в удобном формате!

ВОЗМОЖНО ОСВОБОЖДЕНИЕ ID: 1290289 Рейтинг7.2 КлассB

Москва, улица Сущёвский Вал, 9

Савеловская → 361 м
~ 4 мин
Арендная плата в месяц 2 475 000 ₽ 19 800 ₽/м² в год С учётом НДС
Характеристики 1 500 м² 6 этаж Готово к въезду
Преимущества
  • Класс B
  • Пешком от метро
  • Кондиционирование и вентиляция
  • Свой паркинг
  • Несколько провайдеров связи
  • Развитая инфраструктура

Предлагается в долгосрочную аренду офисный блок класса B площадью 1500 квадратных метров в бизнес-центре "КАСКАД-МЕБЕЛЬ"... подробнее

>

Виртуальный тур

Презентация по предложению

Собираете информацию? Получите подробную презентацию в удобном формате!

БЕЗ КОМИССИИ ID: 4413 Рейтинг7.9 КлассB+

Москва, Октябрьская улица, 33

Марьина Роща → 682 м
~ 7 мин
Арендная плата в месяц 2 250 000 ₽ 18 000 ₽/м² в год С учётом НДС
Характеристики 1 500 м² 1 этаж Под отделку
Преимущества
  • Класс B+
  • Пешком от метро
  • Кондиционирование и вентиляция
  • Свой паркинг
  • Развитая инфраструктура

Сдаем в долгосрочную прямую аренду офисное помещение класса B+ общей площадью 1500 квадр. метров в бизнес-центре... подробнее

Презентация по предложению

Собираете информацию? Получите подробную презентацию в удобном формате!

БЕЗ КОМИССИИ ID: 326310 Рейтинг8.3 КлассB+

Москва, улица Образцова, 4А

Достоевская → 811 м
~ 8 мин
Арендная плата в месяц 2 805 250 ₽ 22 900 ₽/м² в год С учётом НДС
Характеристики 1 470 м² -1 - 7 этаж Готово к въезду
Преимущества
  • Класс B+
  • Пешком от метро
  • Кондиционирование и вентиляция
  • Свой паркинг

Сдается в долгосрочную прямую аренду офис класса B+ площадью 1470 кв.м в бизнес-центре... подробнее

>

Виртуальный тур

Презентация по предложению

Собираете информацию? Получите подробную презентацию в удобном формате!

БЕЗ КОМИССИИ ID: 4212 Рейтинг8.4 КлассB+

Москва, улица Бутырский Вал, 68/70 с1

Савёловская → 728 м
~ 7 мин
Арендная плата в месяц 2 533 333 ₽ 19 000 ₽/м² в год С учётом НДС
Характеристики 1 600 м² 4 этаж Готово к въезду
Преимущества
  • Класс B+
  • Пешком от метро
  • Кондиционирование и вентиляция
  • Свой паркинг
  • Несколько провайдеров связи

Сдаем в долгосрочную прямую аренду офис класса B+ общей площадью 1600 кв. метров в бизнес-центре "Бейкер Плаза"... подробнее

Презентация по предложению

Собираете информацию? Получите подробную презентацию в удобном формате!

Посмотреть все похожие предложения
Отнеситесь рационально к процессу поиска нового офиса!

Просто ответьте на 3 вопроса, и наши специалисты сами предложат оптимальные варианты под ваш бюджет

.