8.2
Смотреть все фото
БЕЗ КОМИССИИ ID: 1322055 Рейтинг8.0 КлассB
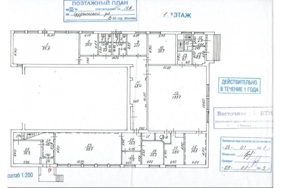
Бизнес-центр «Суздальская 14А»

Продажа офиса 1120 м²

Москва, Суздальская улица, 14А

Новокосино → 1.19 км
~ 12 мин
Стоимость 165 млн ₽ 147 300 ₽/м²

Презентация по предложению

Собираете информацию? Получите подробную презентацию в удобном формате!

Площадь 1 120 м²
Состояние Готово к въезду
Планировка По запросу
Этаж -1 - 1

Описание

Преимущества
  • Класс B
  • Пешком от метро
  • Кондиционирование и вентиляция
  • Свой паркинг
В продаже офисный блок общей площадью 1120 квадратных метров в бизнес-центре.

Помещение можно адаптировать под любой бизнес благодаря функциональной планировке - идеальный баланс комфорта и экономической выгоды. Оптимальное решение для стабильного бизнеса или выгодных инвестиций.

Офис класса B:
- Офис с отделкой, полностью готов к въезду
- Вентиляция: Приточно-вытяжная вентиляция
- Кондиционирование: центральное

О офисном центре:
Москва, ВАО, Суздальская улица, 14А

Характеристики местоположения:
- Возможность аренды парковочных мест.
- Ближайшее метро: от метро "Новокосино" всего 12 мин пешком



Если предложение предварительно Вам подходит:

1. Мы подготовили презентацию с информацией о помещении, фотографиями и планировкой, чтобы Вы могли поделиться ей с коллегами или руководством. Попросите об этом нашего менеджера по телефону в объявлении.
2. Мы готовы ответить на любые Ваши вопросы о помещении и коммерческих условиях продажи.

Вы можете позвонить нам в любое время. Мы ответим на Ваши вопросы по будням до 19:00, а поздно вечером или в выходные сможем передать Ваш контакт нашему менеджеру.

О бизнес-центре

Класс B
Этажность 2
Лифты Нет
Общая площадь 0 м²
Паркинг Наземный
Вентиляция приточно-вытяжная
Кондиционирование центральное
Телекоммуникации Интернет/Телефония

Расположение

Подробная презентацию по предложению

Собираете информацию? Получите подробную презентацию в удобном формате, чтобы обсудить вариант с коллегами или переслать руководству!

Похожие предложения в других зданиях

БЕЗ КОМИССИИ ID: 1319779 Рейтинг4.5 КлассB

Москва, Мартеновская улица, 39 к2

Новогиреево → 808 м
~ 8 мин
Стоимость 114 999 287 ₽ 63 600 ₽/м²
Характеристики 1 807 м² -1 - 2 этаж Готово к въезду
Преимущества
  • Класс B
  • Пешком от метро

Продается офис общей площадью 1807 кв. метров в жилом комплексе. .. подробнее

Презентация по предложению

Собираете информацию? Получите подробную презентацию в удобном формате!

БЕЗ КОМИССИИ ID: 1376503 Рейтинг6.5 КлассB

Москва, Рязанский проспект, 86/1 с1

Юго-Восточная → 1.24 км
~ 12 мин
Стоимость 20 610 000 ₽ 90 000 ₽/м²
Характеристики 229 м² 4 этаж Готово к въезду
Преимущества
  • Класс B
  • Пешком от метро
  • Кондиционирование и вентиляция
  • Свой паркинг
  • Несколько провайдеров связи
  • Развитая инфраструктура

В продаже офисный блок площадью 229 кв. метров в недавно отреконструированном бизнес-центре "Apple Tower". .. подробнее

Презентация по предложению

Собираете информацию? Получите подробную презентацию в удобном формате!

БЕЗ КОМИССИИ ID: 1319919 Рейтинг7.5 КлассА

Москва, Окская улица, 9

Окская → 522 м
~ 5 мин
Стоимость 48 480 000 ₽ 303 000 ₽/м²
Характеристики 160 м² 4 этаж Под отделку
Преимущества
  • Класс А
  • Пешком от метро
  • Новое строительство
  • Кондиционирование и вентиляция

В продаже офисное помещение общей площадью 160 квадратных метров в бизнес-центре "Noon". .. подробнее

Презентация по предложению

Собираете информацию? Получите подробную презентацию в удобном формате!

БЕЗ КОМИССИИ ID: 1319909 Рейтинг7.5 КлассА

Москва, Окская улица, 9

Окская → 522 м
~ 5 мин
Стоимость 48 000 000 ₽ 300 000 ₽/м²
Характеристики 160 м² 3 этаж Под отделку
Преимущества
  • Класс А
  • Пешком от метро
  • Новое строительство
  • Кондиционирование и вентиляция

Продается офис площадью 160 кв.м в бизнес-центре "Noon". .. подробнее

Презентация по предложению

Собираете информацию? Получите подробную презентацию в удобном формате!

БЕЗ КОМИССИИ ID: 1319932 Рейтинг7.5 КлассА

Москва, Окская улица, 9

Окская → 522 м
~ 5 мин
Стоимость 47 124 000 ₽ 306 000 ₽/м²
Характеристики 154 м² 5 этаж Под отделку
Преимущества
  • Класс А
  • Пешком от метро
  • Новое строительство
  • Кондиционирование и вентиляция

Продается офис площадью 154 кв. метров в бизнес-центре "Noon". .. подробнее

Презентация по предложению

Собираете информацию? Получите подробную презентацию в удобном формате!

Посмотреть все похожие предложения
Отнеситесь рационально к процессу поиска нового офиса!

Просто ответьте на 3 вопроса, и наши специалисты сами предложат оптимальные варианты под ваш бюджет

.