8.2
Смотреть все фото
БЕЗ КОМИССИИ ID: 304609 Рейтинг8.4 КлассB+
Бизнес-центр «Свежий ветер»

Аренда офиса 1182 м²

Москва, Дербеневская улица, 15Б

Павелецкая → 1.81 км
~ 18 мин
Арендная плата в месяц 1 773 000 ₽ 18 000 ₽/м² в год С учётом НДС

Презентация по предложению

Собираете информацию? Получите подробную презентацию в удобном формате!

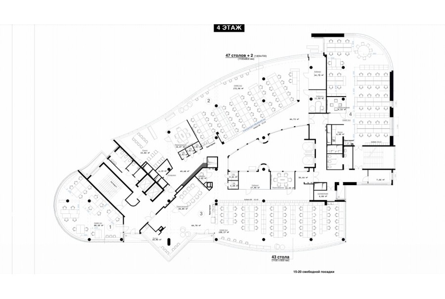
Площадь 1 182 м²
Состояние Готово к въезду
Планировка Смешанная
Этаж 4

Описание

Преимущества
  • Класс B+
  • Пешком от метро
  • Кондиционирование и вентиляция
  • Свой паркинг
Сдается в аренду офисный блок класса B+ площадью 1182 кв. метров в бизнес-центре "Свежий ветер".

Москва, ЮАО, Дербеневская улица, 15Б

Характеристики местоположения:
- Возможность аренды парковочных мест.
- Ближайшее метро: от метро "Павелецкая" можно добраться пешком или на городском транспорте

Офис класса B+:
- Офис с отделкой, полностью готов к аренде
- Вентиляция: Приточно-вытяжная вентиляция
- Кондиционирование: центральное
- Презентабельный центральный ресепшн
- Круглосуточная охрана и видеонаблюдение

Возможность заключения контракта в соответствии с 44ФЗ по госзакупкам.

Что еще можно узнать о предложении:

1. Получите презентацию в течение 10 минут в Whatsapp или на почту с фотографиями и планировкой, чтобы обсудить данный вариант с коллегами или переслать руководству. Для этого позвоните по телефону, указанному в объявлении.
2. Задайте любые вопросы менеджеру по телефону, готовы обсуждать любые предложения по финансовым условиям договора аренды.
3. Оперативно организуем просмотр помещения с менеджерами на объекте или подготовим виртуальный тур.

Вы можете позвонить нам в любое время. Мы ответим на Ваши вопросы по будням до 19:00, а поздно вечером или в выходные зафиксируем Ваш контакт и перезвоним в рабочее время.

Коммерческие условия

Арендная плата 1 773 000 ₽
Ставка арендной платы 18 000 ₽ м²/год
Эксплуатационные расходы Включены в ставку
Налоги С учётом НДС
Тип договора Субаренда
Срок договора Долгосрочный
Размер платежей 1 месяц
Обеспечительный платеж 1 месяц
Статус Сдан

О бизнес-центре

Класс B+
Этажность 8
Лифты Есть
Общая площадь 12 000 м²
Паркинг Подземный
Вентиляция приточно-вытяжная
Кондиционирование центральное
Телекоммуникации Интернет/Телефония

Расположение

Подробная презентацию по предложению

Собираете информацию? Получите подробную презентацию в удобном формате, чтобы обсудить вариант с коллегами или переслать руководству!

Похожие предложения в других зданиях

БЕЗ КОМИССИИ ID: 239449 Рейтинг8.5 КлассB+

Москва, Дербеневская улица, 11а с20

Павелецкая → 1.85 км
~ 18 мин
Арендная плата в месяц 1 843 250 ₽ 20 200 ₽/м² в год С учётом НДС
Характеристики 1 095 м² 1 - 3 этаж Готово к въезду
Преимущества
  • Класс B+
  • Пешком от метро
  • Кондиционирование и вентиляция
  • Свой паркинг

Сдаем в прямую аренду офисный блок класса B+ общей площадью 1095 квадратных метров в бизнес-центре "Диод"... подробнее

Презентация по предложению

Собираете информацию? Получите подробную презентацию в удобном формате!

БЕЗ КОМИССИИ ID: 301127 Рейтинг8.2 КлассB+

Москва, Дербеневская набережная, 7 с22

Павелецкая → 1.74 км
~ 17 мин
Арендная плата в месяц 1 730 000 ₽ 20 000 ₽/м² в год С учётом НДС
Характеристики 1 038 м² 3 этаж Под отделку
Преимущества
  • Класс B+
  • Пешком от метро
  • Кондиционирование и вентиляция
  • Свой паркинг
  • Несколько провайдеров связи
  • Развитая инфраструктура

Сдается в долгосрочную прямую аренду офис класса B+ площадью 1038 квадратных метров в недавно отреконструированном бизнес-центре "Новоспасский"... подробнее

Презентация по предложению

Собираете информацию? Получите подробную презентацию в удобном формате!

БЕЗ КОМИССИИ ID: 1181178 Рейтинг6.5 КлассB

Москва, Дербенёвская улица, 7 с2

Павелецкая → 1.39 км
~ 14 мин
Арендная плата в месяц 1 333 333 ₽ 16 000 ₽/м² в год С учётом НДС
Характеристики 1 000 м² 1 этаж Готово к въезду
Преимущества
  • Класс B
  • Пешком от метро
  • Кондиционирование и вентиляция

Предлагается в долгосрочную аренду офисное помещение класса B площадью 1000 квадратных метров в бизнес-центре... подробнее

Презентация по предложению

Собираете информацию? Получите подробную презентацию в удобном формате!

БЕЗ КОМИССИИ ID: 284586 Рейтинг6.0 КлассB

Москва, 2-й Кожевнический переулок, 12

Павелецкая → 1.31 км
~ 13 мин
Арендная плата в месяц 1 700 000 ₽ 17 000 ₽/м² в год С учётом НДС
Характеристики 1 200 м² 2 - 3 этаж Готово к въезду
Преимущества
  • Класс B
  • Пешком от метро
  • Кондиционирование и вентиляция
  • Свой паркинг
  • Несколько провайдеров связи
  • Развитая инфраструктура

Собственник сдает в долгосрочную прямую аренду офисное помещение класса B площадью 1200 квадратных метров в недавно отреконструированном бизнес-центре "Горизонт"... подробнее

Презентация по предложению

Собираете информацию? Получите подробную презентацию в удобном формате!

БЕЗ КОМИССИИ ID: 122806 Рейтинг7.9 КлассB+

Москва, Дубининская улица, 53 с5

Серпуховская → 1.22 км
~ 12 мин
Арендная плата в месяц 2 158 333 ₽ 20 000 ₽/м² в год С учётом НДС
Характеристики 1 295 м² 1 этаж Готово к въезду
Преимущества
  • Класс B+
  • Пешком от метро
  • Кондиционирование и вентиляция
  • Свой паркинг
  • Развитая инфраструктура

Предлагаем в долгосрочную аренду офис класса B+ общей площадью 1295 кв.м в недавно отреконструированном бизнес-центре "Квартал Сити"... подробнее

Презентация по предложению

Собираете информацию? Получите подробную презентацию в удобном формате!

Посмотреть все похожие предложения
Отнеситесь рационально к процессу поиска нового офиса!

Просто ответьте на 3 вопроса, и наши специалисты сами предложат оптимальные варианты под ваш бюджет

.